Perched on the northwest corner of the 10th floor, this exceptional residence captures breathtaking views of the San Francisco skyline, Mission Creek, and the iconic Bay Bridge. Floor-to-ceiling windows flood the home with natural light and frame the spectacular scenery, while the open-concept living and dining area seamlessly extends to a private patioan ideal setting to take in the sweeping vistas. The elegant SieMatic kitchen is designed for both everyday living and entertaining, featuring sleek quartz countertops and a premium Thermador appliance suite. Offered partially furnished, this home also includes central air conditioning, Hunter Douglas motorized shades in both bedrooms, and an in-unit washer/dryer. The Arden showcases two exquisitely designed lobbies with attentive staff, an inviting fireside lounge reminiscent of a luxury hotel, a stunning rooftop lap pool and hot tub spanning 75 feet, a fitness center, and an outdoor courtyard offering captivating city views, complete with BBQ grills and a fire pit. Arden is located in the vibrant Mission Bay neighborhood, adjacent to a dog park, children's playground, and the Channel, and just a short walk to Chase Center, Oracle Park, Social Sparks, tech HQs, cafes and restaurants, MUNI Caltrain, I280, and the UCSF campus.
MLS #
SF426110396
MLS Source
San Francisco Association of Realtors® MLS
Days on Site
3
Kitchen
Breakfast Nook, Island
Appliances
Dishwasher, Garbage Disposal, Hood Over Range, Oven - Built-In, Oven - Gas, Oven Range - Built-In, Gas, Washer/Dryer
Dining Room
Dining Area in Living Room
Flooring
Carpet, Wood
Laundry
In Closet
Cooling
Central Forced Air
Heating
Central Forced Air
Pool
Community Facility, Lap Only, Pool - Yes
Style
Luxury, Modern/High Tech
Garage/Parking
Assigned Spaces, Attached Garage, Parking Space(s), Side By Side, Garage: 0 Car(s)
Complex Amenities
Barbecue Area, Club House, Community Pool, Garden / Greenbelt/ Trails, Gym / Exercise Facility
Listing Agent
Milan Jezdimirovic
Compass
License #: 01975028
Phone: (415) 933-4364
Co-Listing Agent
Dunja Green
Compass
License #: 02038642
Phone: (415) 990-4883
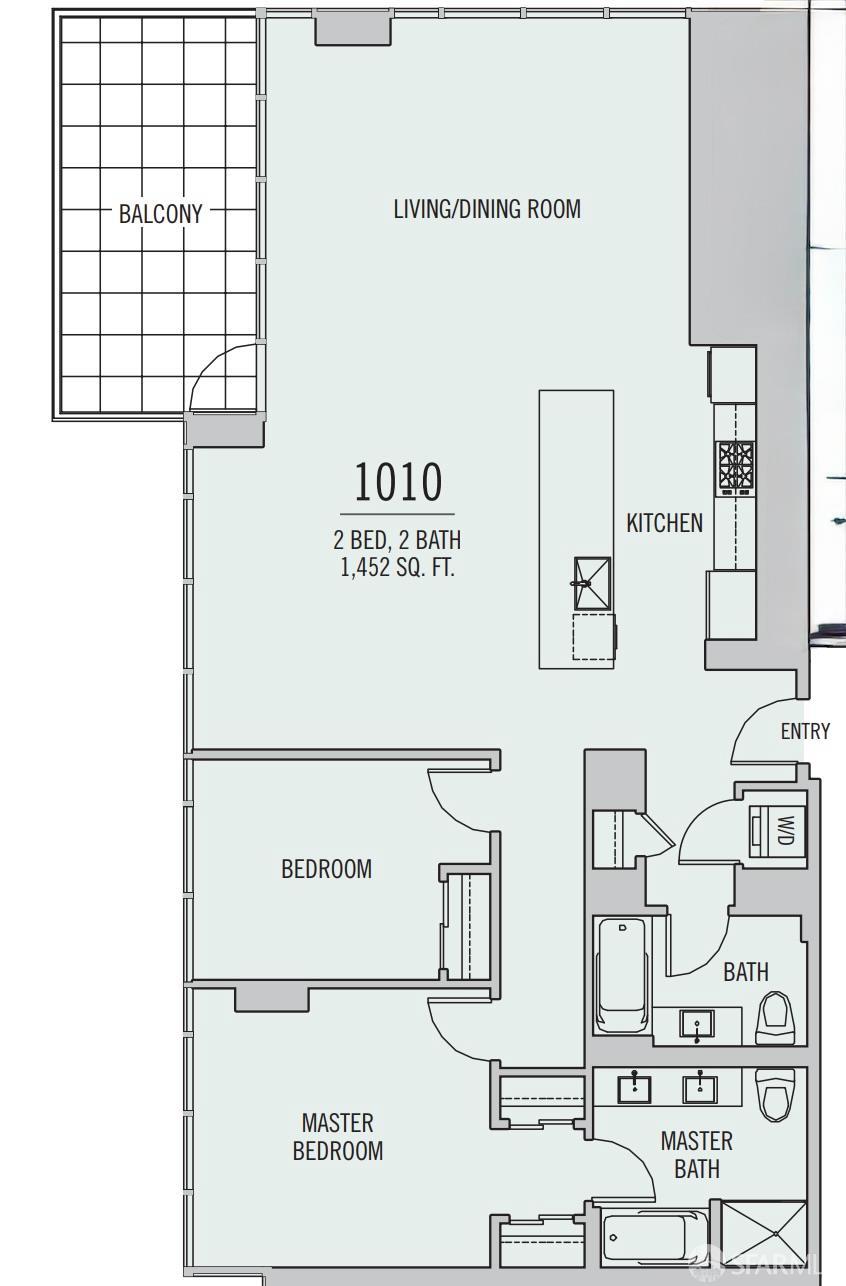
708 Long Bridge St 1010 is a Condominium for Rent in San Francisco, CA 94158. This 1,452 square foot property sits on a 1.948 Acres Lot and features 2 bedrooms & 2 full bathrooms. It is currently priced at $8,500 and was built in 2016. This address can also be written as 708 Long Bridge St #1010, San Francisco, CA 94158.
©2026 San Francisco Association of Realtors® MLS. All rights reserved. All data, including all measurements and calculations of area, is obtained from various sources and has not been, and will not be, verified by broker or MLS. All information should be independently reviewed and verified for accuracy. Properties may or may not be listed by the office/agent presenting the information. Information provided is for personal, non-commercial use by the viewer and may not be redistributed without explicit authorization from San Francisco Association of Realtors® MLS.
Presently MLSListings.com displays Active, Contingent, Pending, and Recently Sold listings. Recently Sold listings are properties which were sold within the last three years. After that period listings are no longer displayed in MLSListings.com. Pending listings are properties under contract and no longer available for sale. Contingent listings are properties where there is an accepted offer, and seller may be seeking back-up offers. Active listings are available for sale.
This listing information is up-to-date as of March 10, 2026. For the most current information, please contact Milan Jezdimirovic, (415) 933-4364