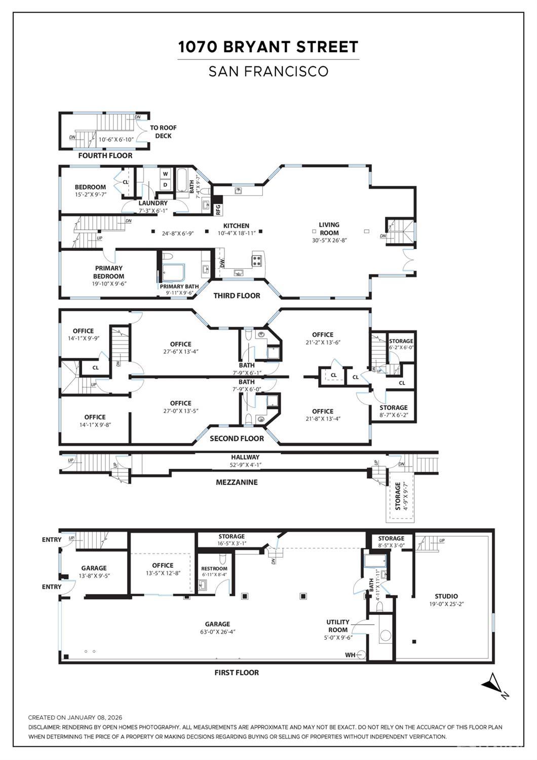
There is a certain kind of building that is associated only with creative, sophisticated city living - the live/work loft. They are occupied by sculptors, spooks and superheros. Going back in time to great San Francisco movies like Francis Ford Coppola's neo-noir masterpiece The Conversation, Robert Redford's suspenseful Sneakers, the artsy The Competition, or the family favorite NYC classic with Tom Hanks BIG, lofts embody a romantic, creative and urban lifestyle that cannot be achieved by any other type of home. The question is, if you had the space, what would you create? This VACANT live/work building is ready to help you. Starting from the ground level there is a huge 4+ car garage with laundry and bath, entry foyer and skylit rear commercial suite with a full bath. The 2nd level features two twin four room commercial suites each with a full bath. The top level is a stunning residence with panoramic city views, gleaming wood floors, two bedrooms and two full baths with sexy glass brick shower enclosures, a gourmet open kitchen and a full laundry. To top it all off, stairs flooded with light lead up to a greenhouse style pent room that opens to a huge roof deck with even more amazing city views. Come see for yourself and get ready to launch your imagination!
MLS #
SF426100311
MLS Source
San Francisco Association of Realtors® MLS
Days on Site
21
# Buildings / # Units
0 / 0
Parking Spaces
0
Present Use
Mixed, Office, Residential
| # Buildings | # Leased Units | # Total Units |
|---|---|---|
| 0 | – | 0 |
1066 Bryant St is a Commercial Sale in San Francisco, CA 94103. This 6,600 square foot property sits on a 2,520 Sq Ft Lot and features – bedrooms & – full bathrooms. It is currently priced at $3,498,000 and was built in 1906. This address can also be written as 1066 Bryant St, San Francisco, CA 94103.
©2026 San Francisco Association of Realtors® MLS. All rights reserved. All data, including all measurements and calculations of area, is obtained from various sources and has not been, and will not be, verified by broker or MLS. All information should be independently reviewed and verified for accuracy. Properties may or may not be listed by the office/agent presenting the information. Information provided is for personal, non-commercial use by the viewer and may not be redistributed without explicit authorization from San Francisco Association of Realtors® MLS.
Presently MLSListings.com displays Active, Contingent, Pending, and Recently Sold listings. Recently Sold listings are properties which were sold within the last three years. After that period listings are no longer displayed in MLSListings.com. Pending listings are properties under contract and no longer available for sale. Contingent listings are properties where there is an accepted offer, and seller may be seeking back-up offers. Active listings are available for sale.
This listing information is up-to-date as of February 18, 2026. For the most current information, please contact Jennifer Rosdail, (415) 269-4663