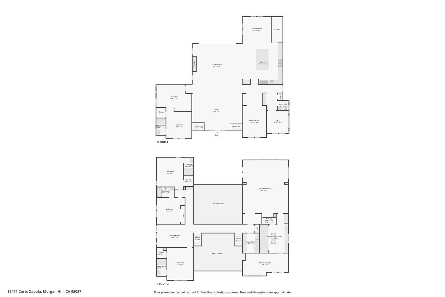
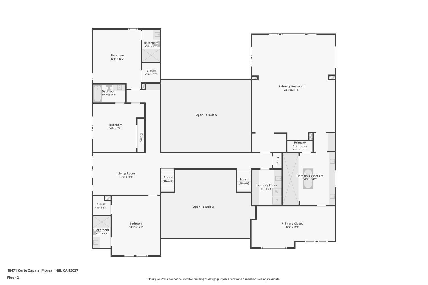
Completed August 2025, this pristine Toll Brothers Venice model in gated Borello Ranch Estates offers the rare combo buyers want: new construction, modern finishes, and the freedom to make it your own after closing. Set on a premium corner lot (~ acre), the home spans approximately 6,089 sq ft with a dramatic two-story great room, abundant natural light, and effortless indoor-outdoor flow built for entertaining and everyday comfort. The chef's kitchen anchors the main level with a quartz waterfall island, Super White shaker cabinetry, and a butler's pantry that keeps hosting polished and organized. A first-floor suite adds true flexibility for guests, extended family, or a high-functioning home office setup. Upstairs, the primary suite feels resort-level with Piedrafina Glacier White finishes, dual vanities, a soaking tub, and an oversized boutique-style closet. An airy loft flexes as office, gym, study lounge, or media spaceand every bedroom has its own bathroom, creating comfort and privacy for everyone. Step outside to a covered patio and a large, open yard with a blank canvas to create your ideal outdoor lifestyle, from outdoor dining to a fire lounge, play space, pool, tennis court or garden, tailored to your taste on your timeline. Practical upgrades are already
MLS #
SF426097657
MLS Source
San Francisco Association of Realtors® MLS
Days on Site
59
Bedrooms
Primary Bath, Primary Suite/Retreat, Primary Suite/Retreat - 2+
Bathrooms
Granite, Primary - Sunken Tub, Other, Shower(s) over Tub(s), Tile, Updated Bath(s)
Kitchen
Breakfast Nook, Breakfast Room, Countertop - Granite, Island, Island with Sink, Other, Pantry, Updated
Appliances
Cooktop - Gas, Dishwasher, Garbage Disposal, Hood Over Range, Ice Maker, Microwave, Other, Oven - Gas, Oven - Self Cleaning, Oven Range - Gas, Refrigerator, Dryer, Washer
Dining Room
Formal Area, Other
Flooring
Carpet, Tile, Wood
Laundry
220 Volt Outlet, Cabinets, In Closet, In Laundry Room, Laundry - Yes, Laundry Area, Upper Floor
Cooling
Central Forced Air, Multi Units, Multi-Zone
Heating
Central Forced Air, Fireplace Insert, Gas, Gas - Natural, Heating - 2+ Zones, Solar
Foundation
Slab
Pool
Community Facility
Style
Contemporary, Farm House, Luxury
Garage/Parking
Attached Garage, Electric Car Hookup, Gate/Door Opener, Other, Parking - Independent, Garage: 4 Car(s)
Sewer
Public Sewer
Water
Public
HOA Fee
$365
HOA Fee Frequency
Monthly
Complex Amenities
Barbecue Area, Club House, Community Pool, Community Security Gate, Other
| # Buildings | # Leased Units | # Total Units |
|---|---|---|
| 0 | – | – |
18471 Corte Zapala is a Single Family Residence in Morgan Hill, CA 95037. This 6,089 square foot property sits on a 0.339 Acres Lot and features 5 bedrooms & 5 full and 1 partial bathrooms. It is currently priced at $4,189,888 and was built in 2025. This address can also be written as 18471 Corte Zapala, Morgan Hill, CA 95037.
©2026 San Francisco Association of Realtors® MLS. All rights reserved. All data, including all measurements and calculations of area, is obtained from various sources and has not been, and will not be, verified by broker or MLS. All information should be independently reviewed and verified for accuracy. Properties may or may not be listed by the office/agent presenting the information. Information provided is for personal, non-commercial use by the viewer and may not be redistributed without explicit authorization from San Francisco Association of Realtors® MLS.
Presently MLSListings.com displays Active, Contingent, Pending, and Recently Sold listings. Recently Sold listings are properties which were sold within the last three years. After that period listings are no longer displayed in MLSListings.com. Pending listings are properties under contract and no longer available for sale. Contingent listings are properties where there is an accepted offer, and seller may be seeking back-up offers. Active listings are available for sale.
This listing information is up-to-date as of March 22, 2026. For the most current information, please contact Fred Glick, (213) 349-3301