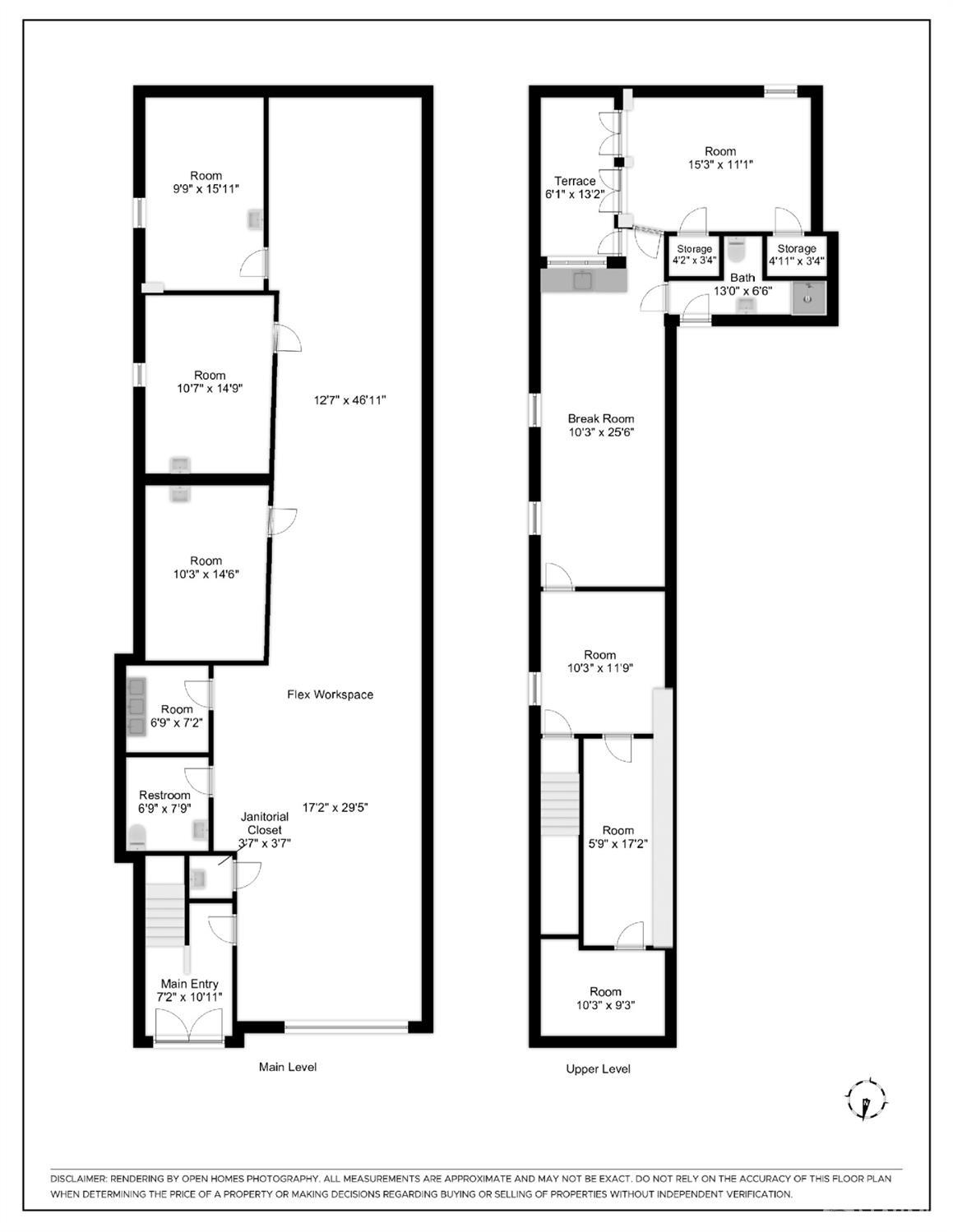
Enjoy the versatility of this end-unit, two-level industrial condo in San Francisco's Bayview district offering 1,882 sq ft of adaptable space. The main level features a flex workspace plus multiple offices or workshop rooms with sinks ideal for production assembly or creative projects. A janitorial closet and convenient 1/2 bath add functionality. Upstairs you'll find additional office space, a break room with kitchenette, a 3/4 bath, and an outdoor terrace for fresh air and team breaks. Generous windows fill the space with daylight, creating an inviting work environment. Two car parking and a small HOA with low dues make this property even more appealing. Built in 1990 and zoned PDR 2, this is a strategic location with easy access to major transit routes. A flexible space designed for businesses that value comfort and productivity. Delivered vacant, perfect for an owner/user or investor!
MLS #
SF426096804
MLS Source
San Francisco Association of Realtors® MLS
Days on Site
12
# Buildings / # Units
0 / 0
Parking Spaces
2
Listing Agent
Tim Brown
KW Advisors
License #: 00580970
Phone: (415) 594-9220
Co-Listing Agent
Mark Brown
KW Advisors
License #: 01850707
Phone: (415) 359-5576
| # Buildings | # Leased Units | # Total Units |
|---|---|---|
| 0 | – | 0 |
2250 Jerrold Ave 11 is a Commercial Sale in San Francisco, CA 94124. This 1,882 square foot property sits on a 1.172 Acres Lot and features – bedrooms & – full bathrooms. It is currently priced at $1,099,000 and was built in 1990. This address can also be written as 2250 Jerrold Ave #11, San Francisco, CA 94124.
©2026 San Francisco Association of Realtors® MLS. All rights reserved. All data, including all measurements and calculations of area, is obtained from various sources and has not been, and will not be, verified by broker or MLS. All information should be independently reviewed and verified for accuracy. Properties may or may not be listed by the office/agent presenting the information. Information provided is for personal, non-commercial use by the viewer and may not be redistributed without explicit authorization from San Francisco Association of Realtors® MLS.
Presently MLSListings.com displays Active, Contingent, Pending, and Recently Sold listings. Recently Sold listings are properties which were sold within the last three years. After that period listings are no longer displayed in MLSListings.com. Pending listings are properties under contract and no longer available for sale. Contingent listings are properties where there is an accepted offer, and seller may be seeking back-up offers. Active listings are available for sale.
This listing information is up-to-date as of January 19, 2026. For the most current information, please contact Tim Brown, (415) 594-9220