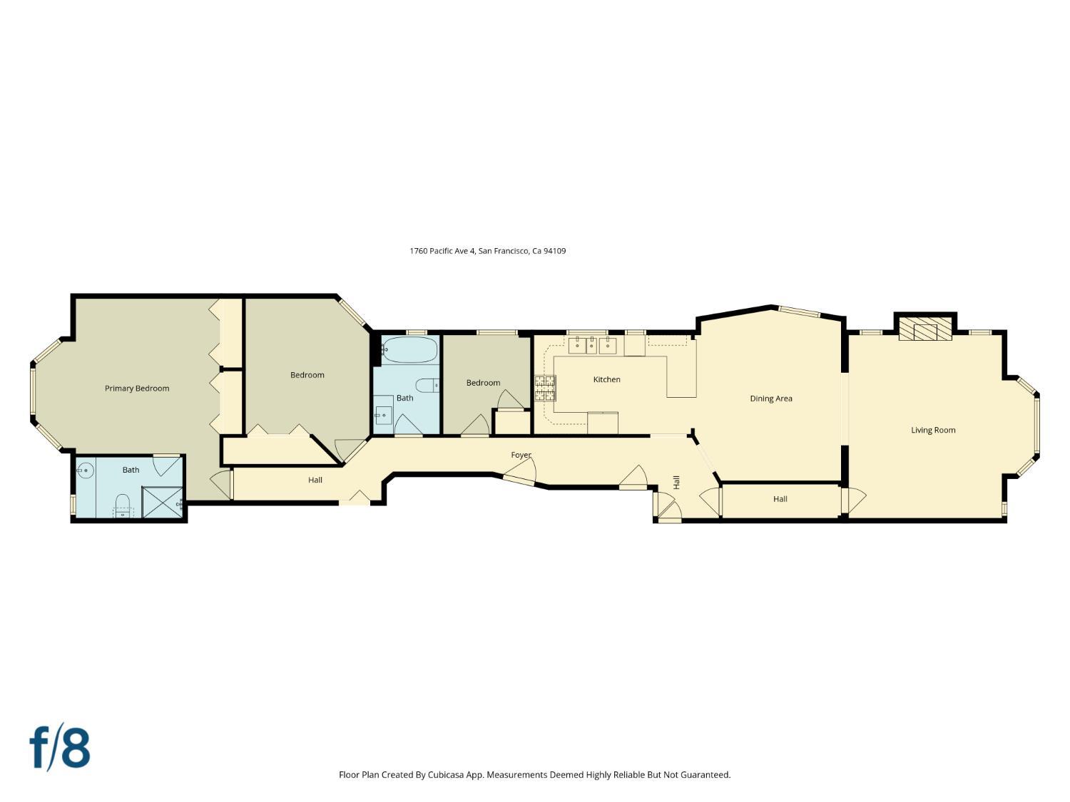
Situated in one of San Francisco's most coveted neighborhoods, this charming 3 bed 2 bath residence is located in a prestigious building offering the essence of a classic Edwardian with brick facade. With abundant natural light streaming in from multiple windows, this condo provides a warm, inviting space. The spacious layout includes 7 rooms, featuring a formal dining room perfect for hosting memorable dinners. The chef's kitchen is a culinary dream, complete with a breakfast bar, top-of-the-line finishes, and ample space for cooking and entertaining. Relax by the cozy gas fireplace in the main living area. Down the hall are 3 bedrooms, one smaller, but perfect for an office or nursery, and 2 other generous sized rooms- one en suite, and 2 bathrooms. Updates include, refreshed bathrooms, newer appliances, electrical updates, plumbed gas line for the fireplace, increased ceiling height and smoothed walls. Enjoy the added convenience of in-unit washer/dryer, secure garage parking, and large storage cage for all your needs. The building features a video intercom system as well as an elevator for easy access to this stunning home. Step outside to the shared common garden wind blocked, and a peaceful retreat in the heart of the city with room to dine, entertain or just relax. Sit
MLS #
SF426095108
MLS Source
San Francisco Association of Realtors® MLS
Days on Site
1
Appliances
Washer/Dryer
Fireplace
Gas Piped, Living Room
Flooring
Tile, Wood
Laundry
In Closet
Garage/Parking
Covered Parking, Enclosed, Gate/Door Opener, Other, Side By Side, Garage: 1 Car(s)
HOA Fee
$717
HOA Fee Frequency
Monthly
Listing Agent
Lisa Lyons
Compass
License #: 01501433
Phone: (415) 269-7018
Co-Listing Agent
Edie Narrido
Polaris Pacific
License #: 01373261
Phone: (415) 215-2384
| # Buildings | # Leased Units | # Total Units |
|---|---|---|
| 11 | – | – |
1760 Pacific Ave 4 is a Condominium in San Francisco, CA 94109. This 1,749 square foot property sits on a 6,065 Sq Ft Lot and features 3 bedrooms & 2 full bathrooms. It is currently priced at $2,195,000 and was built in 1905. This address can also be written as 1760 Pacific Ave #4, San Francisco, CA 94109.
©2026 San Francisco Association of Realtors® MLS. All rights reserved. All data, including all measurements and calculations of area, is obtained from various sources and has not been, and will not be, verified by broker or MLS. All information should be independently reviewed and verified for accuracy. Properties may or may not be listed by the office/agent presenting the information. Information provided is for personal, non-commercial use by the viewer and may not be redistributed without explicit authorization from San Francisco Association of Realtors® MLS.
Presently MLSListings.com displays Active, Contingent, Pending, and Recently Sold listings. Recently Sold listings are properties which were sold within the last three years. After that period listings are no longer displayed in MLSListings.com. Pending listings are properties under contract and no longer available for sale. Contingent listings are properties where there is an accepted offer, and seller may be seeking back-up offers. Active listings are available for sale.
This listing information is up-to-date as of January 30, 2026. For the most current information, please contact Lisa Lyons, (415) 269-7018