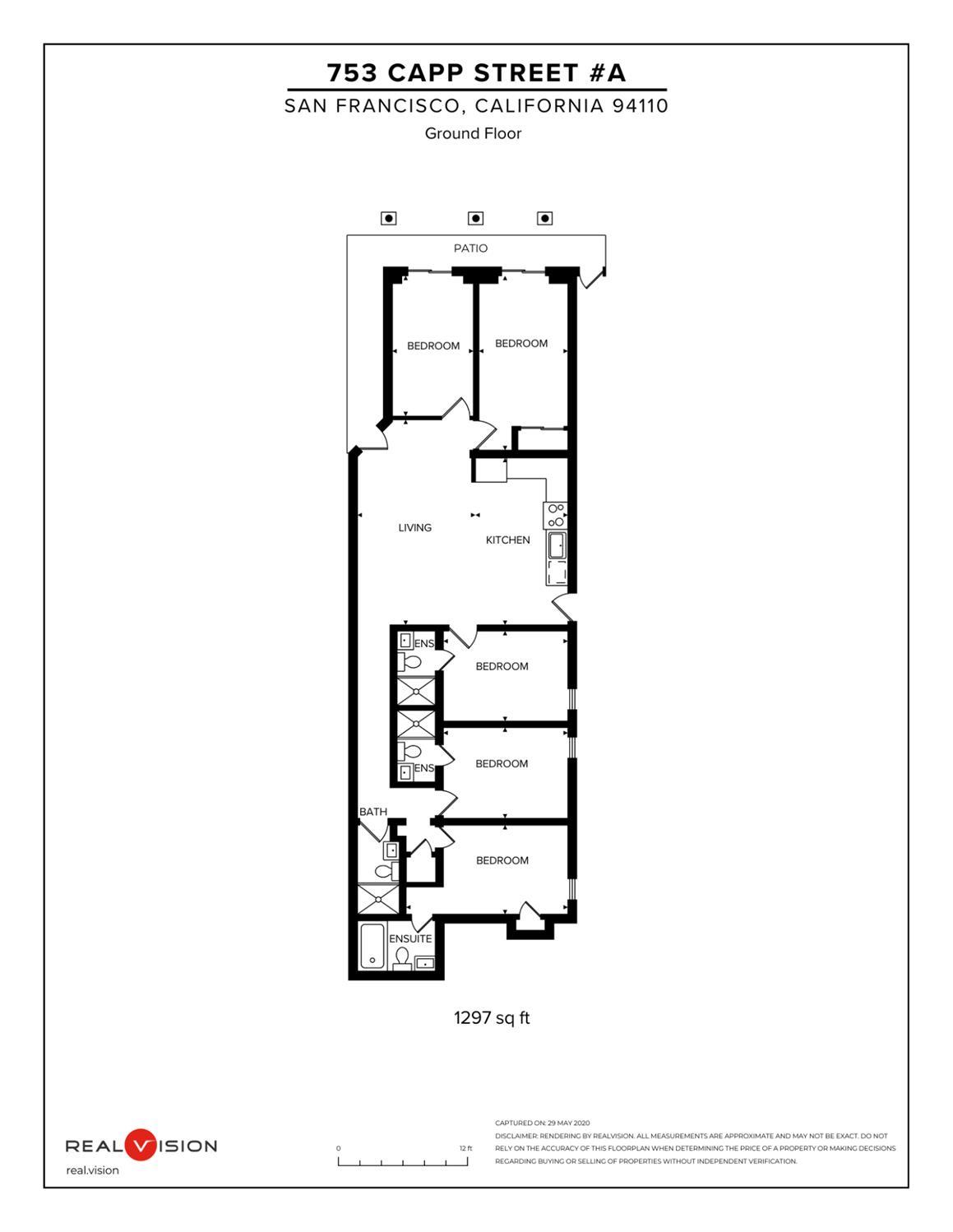
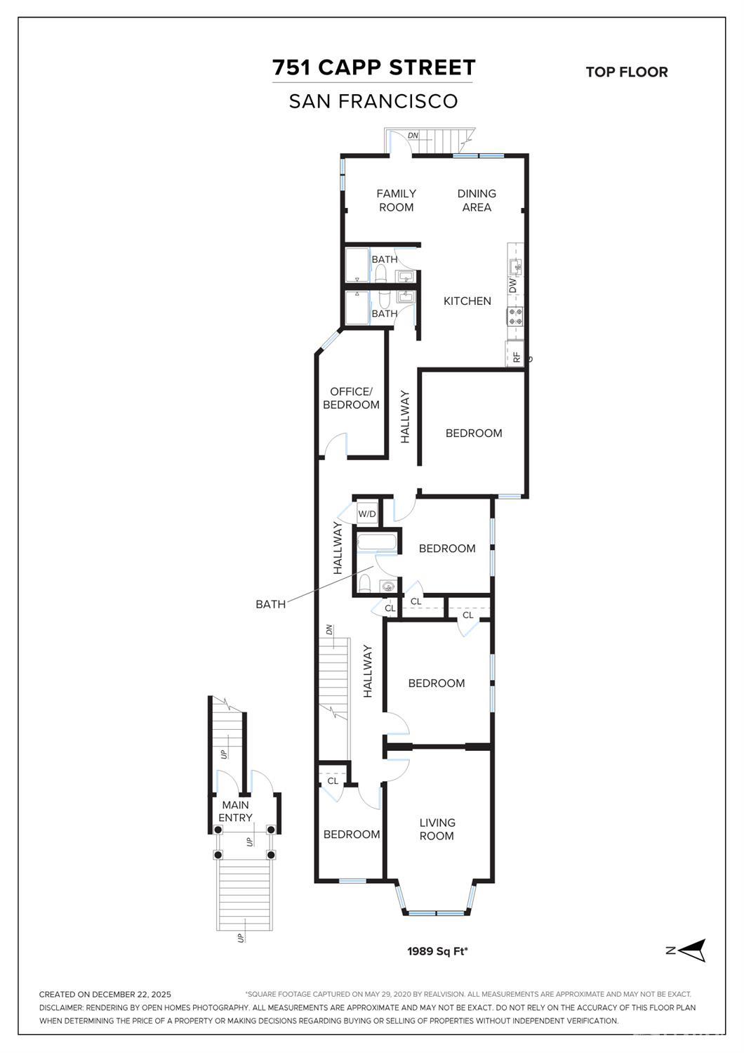
Mission District Triplex Perfect for Co-Housing, Friend Compound, Multigenerational Living, or Investment. Welcome to 751-753 Capp Street a rare opportunity to create your dream living situation in San Francisco's vibrant Mission District. This isn't just another triplex investment; it's your chance to build an intentional community with the people you love most. Picture This: You and your closest friends co-buying this renovated 3-unit Victorian building. Each household gets their own private home while sharing a backyard perfect for weekend BBQs and building the kind of village we all crave. Or, live in the spectacular vacant top unit yourself while rental income from the lower floors covers most of your mortgage. Whether you're creating a friend compound, multigenerational family living, or a smart investment property, this building delivers. Fully updated kitchens, bathrooms + ethernet, we've retained the gorgeous historic Stick/Eastlake style Victorian outside with modern systems inside! In-unit laundry, Sunny shared backyard with lemon tree, 1-car VACANT garage + storage. Top Floor (VACANT): approx 1,900 sf of sun-drenched perfection. 6 bedrooms, 3 bathrooms, original stained glass bay windows, soaring ceilings & skylights. Middle Unit: 6 bedrooms, 3 bathrooms, Victo
MLS #
SF425092543
MLS Source
San Francisco Association of Realtors® MLS
Days on Site
4
Appliances
Dishwasher, Garbage Disposal, Microwave, Oven Range - Gas, Refrigerator
Flooring
Laminate, Wood
Heating
Central Forced Air, Gas
Style
Victorian
Garage/Parking
Garage, Garage: 1 Car(s)
Sewer
Public Sewer
Water
Public
HOA Fee
$0
Zoning
RTO-M Residential Transit
| # Buildings | # Leased Units | # Total Units |
|---|---|---|
| 1 | 2 | 3 |
| Unit # | Sq Ft | Beds | Baths | Rent |
|---|---|---|---|---|
| 1 | 1,989 | 6 | 3/0 | – |
| 2 | 1,751 | 6 | 3/0 | $7,757 |
| 3 | 1,297 | 5 | 3/0 | $6,950 |
751 Capp St is a Triplex in San Francisco, CA 94110. This 5,500 square foot property sits on a 3,062 Sq Ft Lot and features – bedrooms & – full bathrooms. It is currently priced at $3,950,000 and was built in 1900. This address can also be written as 751 Capp St, San Francisco, CA 94110.
©2026 San Francisco Association of Realtors® MLS. All rights reserved. All data, including all measurements and calculations of area, is obtained from various sources and has not been, and will not be, verified by broker or MLS. All information should be independently reviewed and verified for accuracy. Properties may or may not be listed by the office/agent presenting the information. Information provided is for personal, non-commercial use by the viewer and may not be redistributed without explicit authorization from San Francisco Association of Realtors® MLS.
Presently MLSListings.com displays Active, Contingent, Pending, and Recently Sold listings. Recently Sold listings are properties which were sold within the last three years. After that period listings are no longer displayed in MLSListings.com. Pending listings are properties under contract and no longer available for sale. Contingent listings are properties where there is an accepted offer, and seller may be seeking back-up offers. Active listings are available for sale.
This listing information is up-to-date as of January 06, 2026. For the most current information, please contact Lisa Zahner, (415) 948-5747