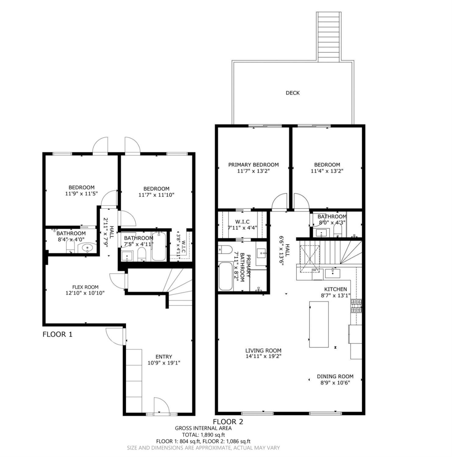
Move right in to this remodeled 4-bed, 4-bath home in the Central Sunset. Designed for indoor /outdoor living with a sleek modern design, open floor plan and walkout deck from the bedrooms leading to a large, landscaped, and usable backyard, complete with hot tub! The great room is spacious and welcoming, with the living and dining areas flowing seamlessly into the chef's kitchen with professional-grade appliances and center island. Two bedrooms, each accessing the large walkout deck, and two baths including a serene primary suite complete this level. The lower level is great for guests or in-laws and offers a versatile open space for media/flex room/home office/kids play area, plus two additional bedrooms and two baths (including a second primary ensuite) with direct access to the backyard. Skylights, in-garage laundry, recently installed roof (Dec. 2025), and much much more. Ideally located near Golden Gate Park, Ocean Beach, top-rated schools, Noriega restaurants and shopping, Judah & Irving streets, this Sunset home checks off all the boxes.
MLS #
SF425092486
MLS Source
San Francisco Association of Realtors® MLS
Days on Site
9
Fireplace
Living Room
Garage/Parking
Facing Front, Other, Parking - Independent, Garage: 0 Car(s)
| # Buildings | # Leased Units | # Total Units |
|---|---|---|
| 0 | – | – |
1822 27th Ave is a Single Family Residence in San Francisco, CA 94122. This 1,999 square foot property sits on a 2,962 Sq Ft Lot and features 4 bedrooms & 4 full bathrooms. It is currently priced at $1,850,000 and was built in 1938. This address can also be written as 1822 27th Ave, San Francisco, CA 94122.
©2026 San Francisco Association of Realtors® MLS. All rights reserved. All data, including all measurements and calculations of area, is obtained from various sources and has not been, and will not be, verified by broker or MLS. All information should be independently reviewed and verified for accuracy. Properties may or may not be listed by the office/agent presenting the information. Information provided is for personal, non-commercial use by the viewer and may not be redistributed without explicit authorization from San Francisco Association of Realtors® MLS.
Presently MLSListings.com displays Active, Contingent, Pending, and Recently Sold listings. Recently Sold listings are properties which were sold within the last three years. After that period listings are no longer displayed in MLSListings.com. Pending listings are properties under contract and no longer available for sale. Contingent listings are properties where there is an accepted offer, and seller may be seeking back-up offers. Active listings are available for sale.
This listing information is up-to-date as of January 10, 2026. For the most current information, please contact Pota Perimenis, (415) 407-2595