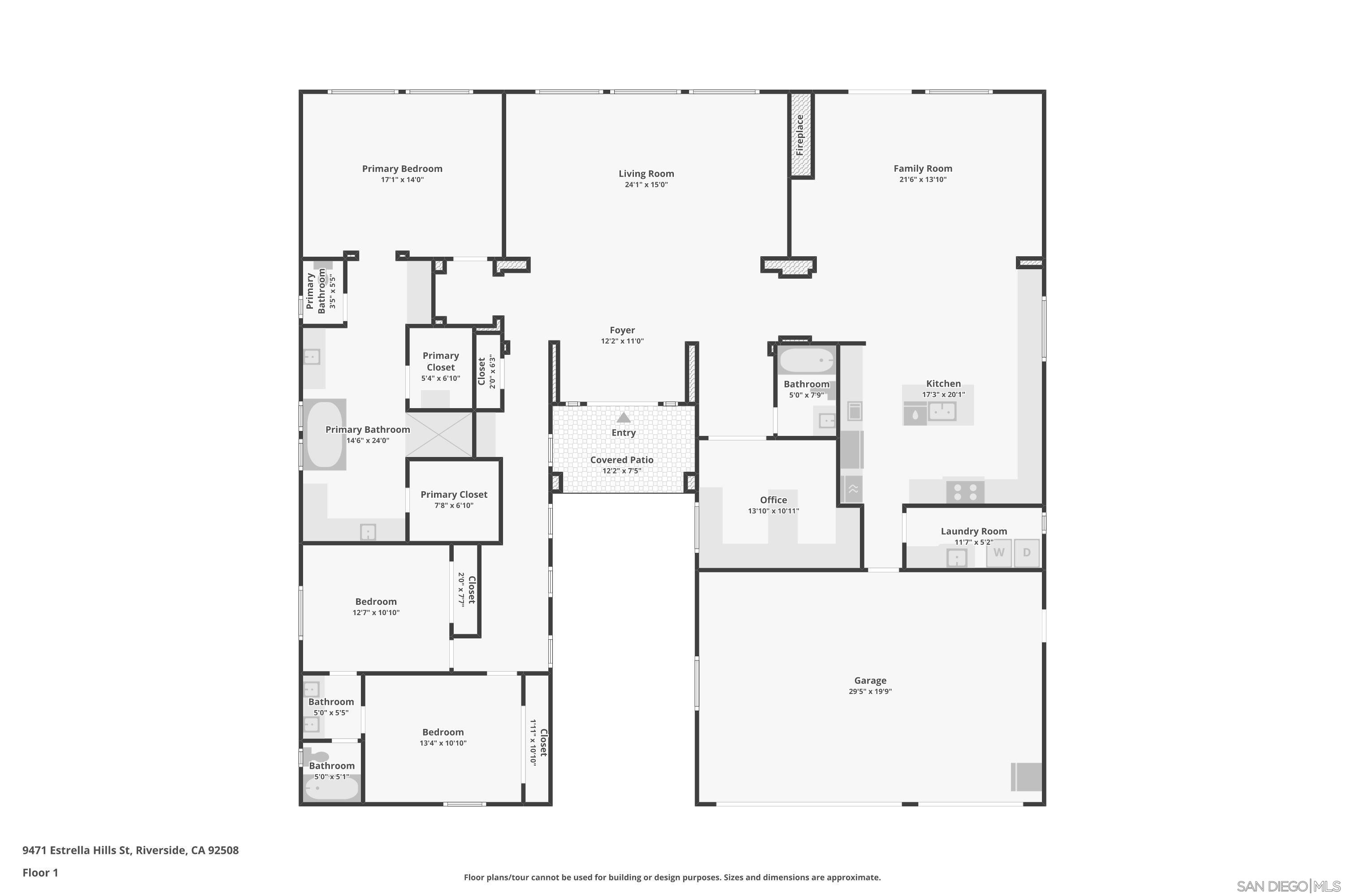
Located in the highly sought-after Orangecrest community, this exceptional single-story residence offers a thoughtfully designed layout with 3 bedrooms, plus a private, built-in office, soaring 13-foot ceilings, and formal living and dining rooms ideal for both entertaining and everyday living. The home’s unique floor plan provides outstanding privacy. The primary retreat is a true sanctuary, featuring a spa-inspired bath with a striking free-standing Jacuzzi soaking tub, walk-in shower, dual vanities with pull-out trash bins and pull-out shelving, and two customized walk-in closets. Two secondary bedrooms are thoughtfully positioned along a bright hallway and connected by a Jack-and-Jill bathroom, offering both functionality and separation. The private office is a standout feature—designed for productivity and flexibility—with extensive custom built-in cabinetry, generous counter space, and room for multiple workstations, making it ideal for remote work, creative projects, or a dedicated study. The large chef’s kitchen is both functional and refined, appointed with Caesarstone countertops, double ovens, a built-in wine refrigerator, Roman shades, and extensive pull-out shelving in both the pantry and cabinetry—designed to make everyday living effortless. Built-ins are thoughtfu
MLS #
SD2601113
MLS Source
San Diego MLS
Bathrooms
Shower and Tub, Shower over Tub - 1, Tub
Kitchen
Exhaust Fan, Island, Other
Appliances
Cooktop - Gas, Dishwasher, Exhaust Fan, Garbage Disposal, Hood Over Range, Ice Maker, Microwave, Other, Oven - Double, Oven - Self Cleaning, Oven Range, Refrigerator, Trash Compactor
Fireplace
Family Room
Flooring
Laminate, Tile
Laundry
Hookup - Electric, Hookups Only, In Laundry Room
Cooling
Ceiling Fan, Central Forced Air, Other
Heating
Fireplace, Forced Air, Gas - Natural, Other
Roof
Slate
Pool
Gunite, Heated - Gas, Heated - Solar, In Ground, Other
Garage/Parking
Attached Garage, Other, RV/Boat Parking, Garage: 3 Car(s)
Water
Other
HOA Fee
$25
HOA Fee Frequency
Monthly
9471 Estrella Hills St is a Single Family Residence in Riverside, CA 92508. This 2,979 square foot property sits on a 0.26 Acres Lot and features 4 bedrooms & 3 full bathrooms. It is currently priced at $915,000 and was built in 2005. This address can also be written as 9471 Estrella Hills St, Riverside, CA 92508.
©2026 San Diego MLS. All rights reserved. All data, including all measurements and calculations of area, is obtained from various sources and has not been, and will not be, verified by broker or MLS. All information should be independently reviewed and verified for accuracy. Properties may or may not be listed by the office/agent presenting the information. Information provided is for personal, non-commercial use by the viewer and may not be redistributed without explicit authorization from San Diego MLS.
Presently MLSListings.com displays Active, Contingent, Pending, and Recently Sold listings. Recently Sold listings are properties which were sold within the last three years. After that period listings are no longer displayed in MLSListings.com. Pending listings are properties under contract and no longer available for sale. Contingent listings are properties where there is an accepted offer, and seller may be seeking back-up offers. Active listings are available for sale.
This listing information is up-to-date as of February 24, 2026. For the most current information, please contact Elisa Hammer, (619) 277-5848