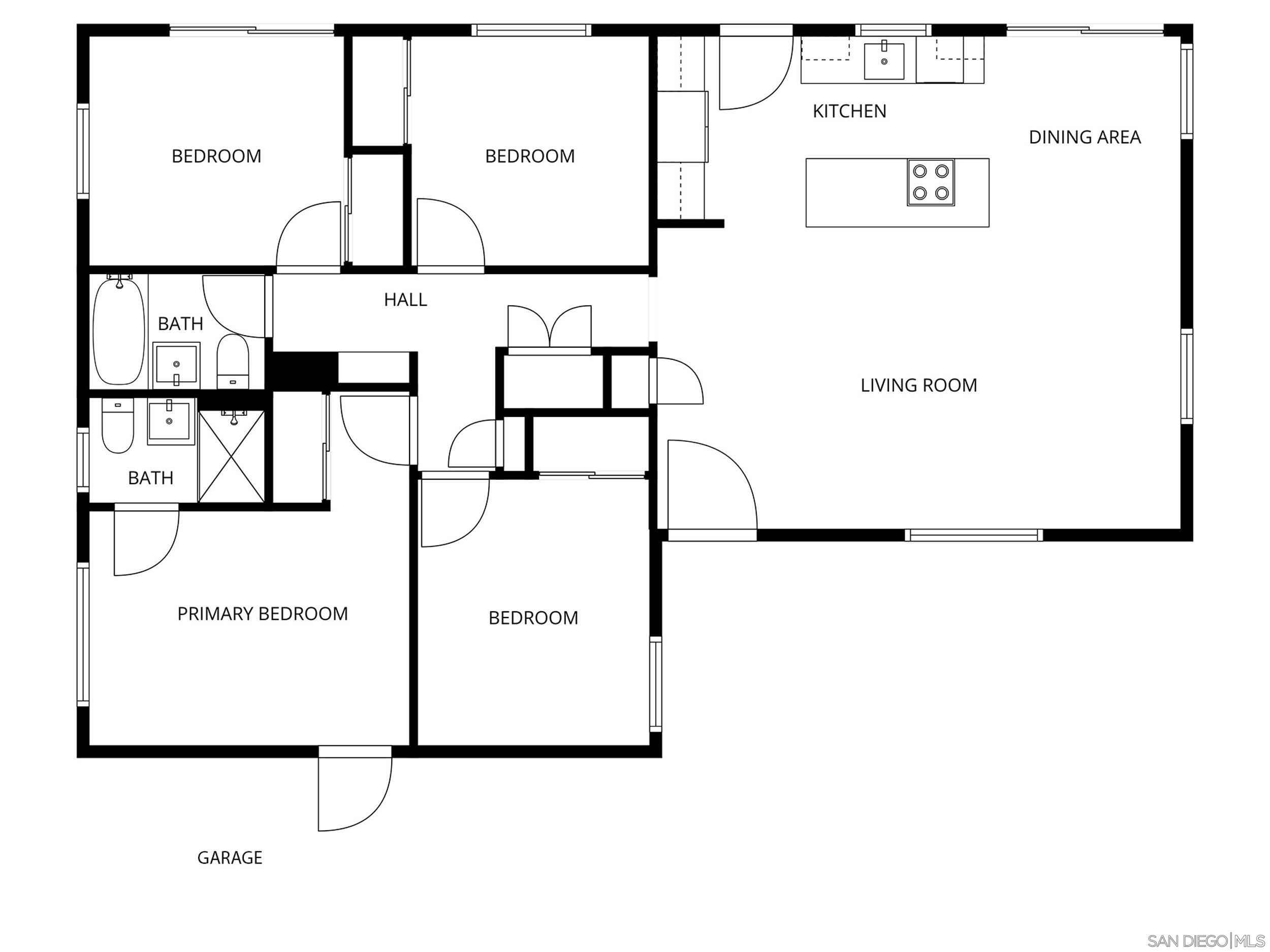
Welcome to this beautifully updated 4-bedroom, 2-bathroom home located on one of Clairemont’s most beloved streets—a place where neighbors know each other by name and community truly comes to life. Spanning 1,281 sq. ft., the home features an open-concept layout with a modernized kitchen that flows seamlessly into the dining and living areas, creating the perfect space for both everyday living and hosting. All four bedrooms are generously sized, and both bathrooms have been thoughtfully refreshed with clean, contemporary finishes. The two-car garage offers ample storage and exciting ADU or conversion potential, adding flexibility and long-term value. What truly sets this home apart is the street itself. Known throughout the neighborhood for its family-friendly atmosphere, this street regularly hosts holiday parades, block get-togethers, and spontaneous neighborhood gatherings—the kind of place where kids ride bikes freely, neighbors gather outside, and lifelong memories are made. It’s a rare sense of community you won’t find just anywhere. The backyard offers plenty of space to design your ideal outdoor retreat, whether that’s a play area, entertaining space, or future expansion. Ideally located near top-rated schools, parks, shopping, Mission Bay, beaches, and major freeways, th
MLS #
SD2600279
MLS Source
San Diego MLS
Days on Site
5
Kitchen
Countertop - Other, Exhaust Fan, Other
Appliances
Cooktop - Electric, Dishwasher, Exhaust Fan, Garbage Disposal, Other, Washer
Laundry
Hookup - Electric, Hookups Only, In Garage
Cooling
Central Forced Air
Heating
Electric, Forced Air
Roof
Composition
Pool
Other
Garage/Parking
Attached Garage, Other, Garage: 2 Car(s)
Water
Public
HOA Fee
$0
Zoning
RS-1-7
4915 Mount Gaywas is a Single Family Residence in San Diego, CA 92117. This 1,281 square foot property sits on a – Sq Ft Lot and features 4 bedrooms & 2 full bathrooms. It is currently priced at $1,172,000 and was built in 1959. This address can also be written as 4915 Mount Gaywas, San Diego, CA 92117.
©2026 San Diego MLS. All rights reserved. All data, including all measurements and calculations of area, is obtained from various sources and has not been, and will not be, verified by broker or MLS. All information should be independently reviewed and verified for accuracy. Properties may or may not be listed by the office/agent presenting the information. Information provided is for personal, non-commercial use by the viewer and may not be redistributed without explicit authorization from San Diego MLS.
Presently MLSListings.com displays Active, Contingent, Pending, and Recently Sold listings. Recently Sold listings are properties which were sold within the last three years. After that period listings are no longer displayed in MLSListings.com. Pending listings are properties under contract and no longer available for sale. Contingent listings are properties where there is an accepted offer, and seller may be seeking back-up offers. Active listings are available for sale.
This listing information is up-to-date as of January 10, 2026. For the most current information, please contact Taellor Hack, (916) 903-9286