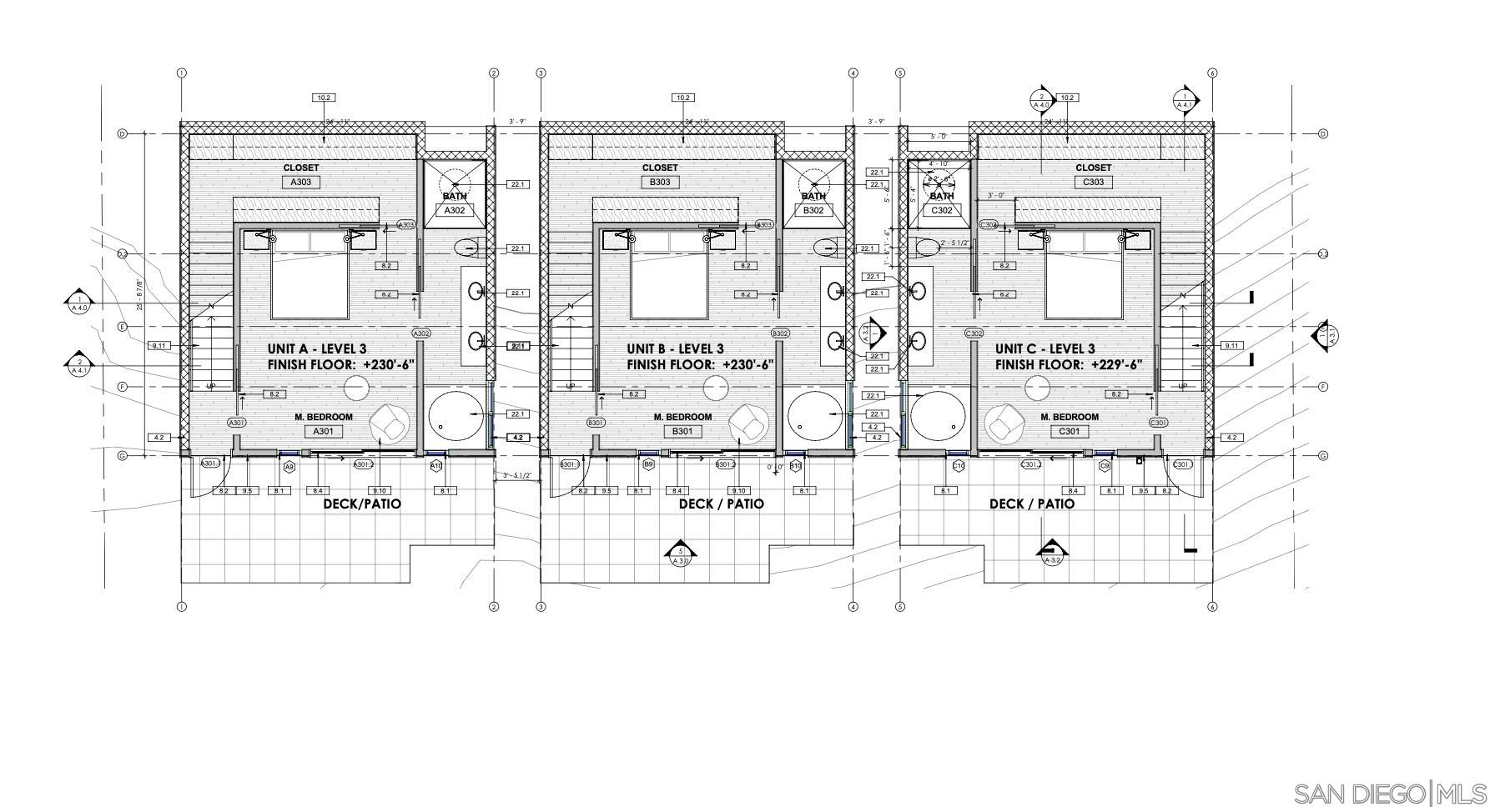
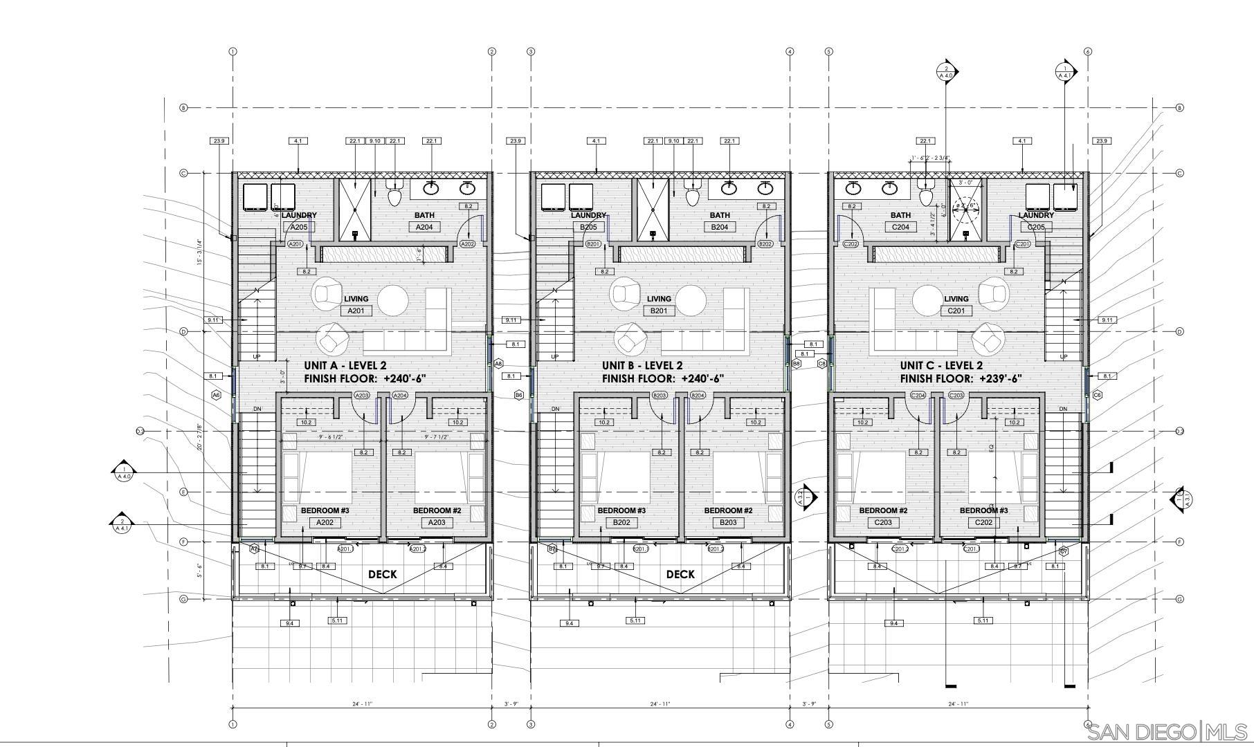
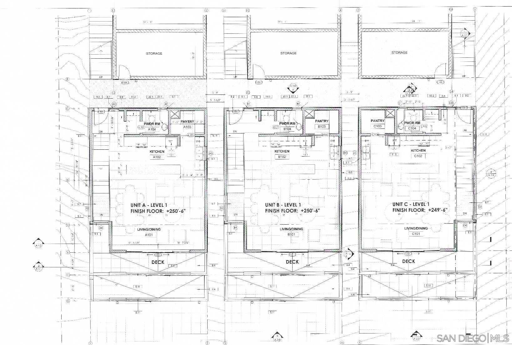
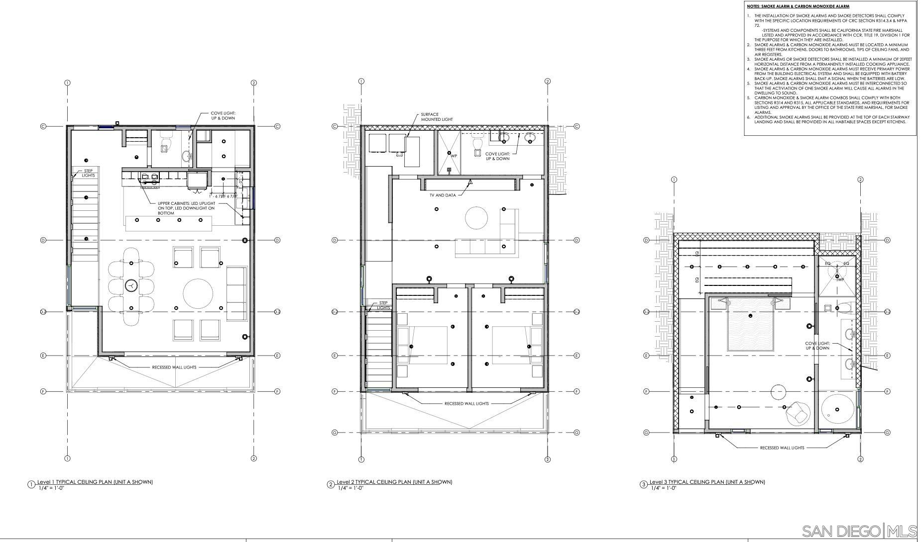
Mission Hills, San Diego, a fantastic development opportunity, especially given its location and potential for stunning views. Here are some key points and considerations for potential buyers or developers: Location and Neighborhood: Mission Hills is known for its historic charm, scenic views, and vibrant community. Its proximity to Downtown San Diego and other urban areas makes it a desirable location. Development Potential: The property offers the opportunity to build 3-6 three-story townhomes, and potentially more, depending on the revised plans. The fact that the lot can accommodate multiple units is a significant advantage for developers looking to maximize their investment. Architectural Plans: While the original architectural plans by Safdie Rabines Architects have expired, the fact that the architects are open to revisiting them provides flexibility for potential buyers. Developing new plans that take advantage of the views and the unique characteristics of the neighborhood could be an exciting prospect. Zoning and Regulations: The zoning designation of MCCPD-MR3000 suggests that the property is zoned for multi-residential development, which aligns with the proposed townhome project. Market and Demand: Understanding the demand for housing in Mission Hills and the broader
MLS #
SD260001606
MLS Source
San Diego MLS
Days on Site
3
Development Status
Other, Rough Grade
Existing Structures
Other
Fencing
None
Lot Description
Grade - Steep, Other
Present Use
Other
Utilities
Other, Other
Water
Other
HOA Fee
$0
Zoning
R-2 Minor
is in San Diego, CA 92103. This Land is currently priced at $1,199,900. This address can also be written as , San Diego, CA 92103.
©2026 San Diego MLS. All rights reserved. All data, including all measurements and calculations of area, is obtained from various sources and has not been, and will not be, verified by broker or MLS. All information should be independently reviewed and verified for accuracy. Properties may or may not be listed by the office/agent presenting the information. Information provided is for personal, non-commercial use by the viewer and may not be redistributed without explicit authorization from San Diego MLS.
Presently MLSListings.com displays Active, Contingent, Pending, and Recently Sold listings. Recently Sold listings are properties which were sold within the last three years. After that period listings are no longer displayed in MLSListings.com. Pending listings are properties under contract and no longer available for sale. Contingent listings are properties where there is an accepted offer, and seller may be seeking back-up offers. Active listings are available for sale.
This listing information is up-to-date as of January 29, 2026. For the most current information, please contact Javin Hope, (858) 922-2202