Great Location facing natural area of NPS and pond. Close to Baseball Park and not far from the Bay and Bike Trail. Close to one of the best sandwich shops in the area, especially Calamari Fridays!! Harwood floors, granite counters in the Kitchen with inside laundry and sink for extra water credits, seller had started plans to add a 2nd story but decided to sell. It has always been a rental with 2 separate bathrooms. Could put in slider to a deck on the end bedroom. If you want a Primary suite, you could access bathroom and expand into garage.
MLS #
ML82041506
MLS Source
MLSListings, Inc.
Days on Site
1
Bathrooms
Shower and Tub, Stall Shower
Kitchen
Countertop - Granite, Exhaust Fan
Appliances
Dishwasher, Exhaust Fan, Oven Range - Electric, Refrigerator, Washer/Dryer
Dining Room
Dining "L"
Family Room
No Family Room
Fireplace
Wood Burning
Flooring
Tile, Vinyl/Linoleum, Wood
Laundry
Inside
Cooling
None
Heating
Central Forced Air - Gas
Roof
Composition
Foundation
Raised
Garage/Parking
Attached Garage, Off-Site Parking, On Street, Garage: 2 Car(s)
Elementary District
Monterey Peninsula Unified
High School District
Monterey Peninsula Unified
Water
Public
Zoning
R!
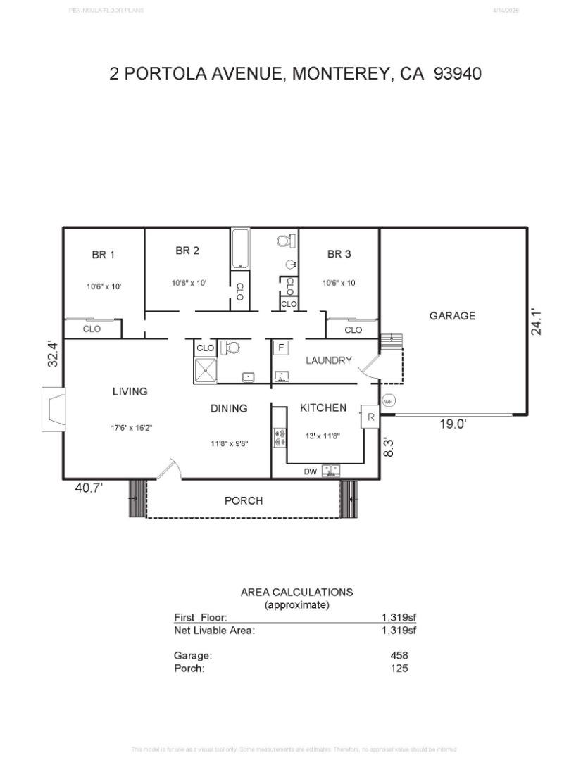
2 Portola Ave is a Single Family Residence in Monterey, CA 93940. This 1,332 square foot property sits on a 3,920 Sq Ft Lot and features 3 bedrooms & 2 full bathrooms. It is currently priced at $950,000 and was built in 1962. This address can also be written as 2 Portola Ave, Monterey, CA 93940.
©2026 MLSListings Inc. All rights reserved. All data, including all measurements and calculations of area, is obtained from various sources and has not been, and will not be, verified by broker or MLS. All information should be independently reviewed and verified for accuracy. Properties may or may not be listed by the office/agent presenting the information. Information provided is for personal, non-commercial use by the viewer and may not be redistributed without explicit authorization from MLSListings Inc.
Presently MLSListings.com displays Active, Contingent, Pending, and Recently Sold listings. Recently Sold listings are properties which were sold within the last three years. After that period listings are no longer displayed in MLSListings.com. Pending listings are properties under contract and no longer available for sale. Contingent listings are properties where there is an accepted offer, and seller may be seeking back-up offers. Active listings are available for sale.
This listing information is up-to-date as of April 17, 2026. For the most current information, please contact Dean Provence, (831) 277-8622