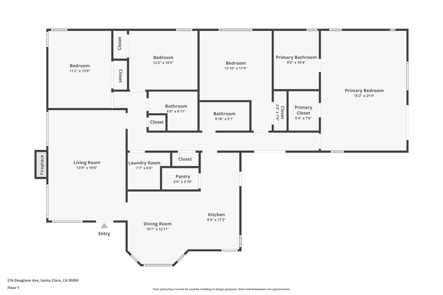
Freshly painted green siding with crisp white trim, a prominent brick chimney and a manicured front lawn creates a classic curb appeal for this charming home that offers an exceptional 4-bedroom, 3-full bath with 1,890 sq ft of thoughtfully redesigned living space on a generous 8,866 sq ft flat lot. Stepping into the beautiful living room with large multi-pane windows that bring in abundant natural light, remodeled kitchen features abundant cabinets, quartz countertops, and a huge walk-in pantry, the elegant dining room with bay window, crown molding and hardwood floors. Large master bedroom with a walk-in closet, updated bathroom (dual sinks, quartz countertops, shower with wave-style ceramic tiles), and French doors leading to the well-maintained backyard. Three additional bedrooms and two additional updated full baths provide comfort and functionality. Situated in a quiet neighborhood of Santa Clara with easy access to major Silicon Valley technology hubs, including Apple and NVIDIA and minutes from Santana Row and Valley Fair.
MLS #
ML82037718
MLS Source
MLSListings, Inc.
Days on Site
1
Bedrooms
Walk-in Closet, Primary Bedroom on Ground Floor, More than One Bedroom on Ground Floor
Bathrooms
Double Sinks, Showers over Tubs - 2+, Updated Bath(s), Full on Ground Floor
Kitchen
Pantry
Appliances
Dishwasher, Hood Over Range, Ice Maker, Oven Range - Gas, Refrigerator, Washer/Dryer
Dining Room
Formal Dining Room
Family Room
No Family Room
Fireplace
Living Room
Flooring
Carpet, Hardwood, Tile
Laundry
In Utility Room
Cooling
Central Forced Air
Heating
Central Forced Air - Gas
Roof
Composition, Shingle
Foundation
Concrete Perimeter
Style
Traditional
Garage/Parking
Detached, Electric Car Hookup, Gate/Door Opener, Off-Street Parking, Garage: 2 Car(s)
Elementary District
Campbell Union Elementary
High School District
Campbell Union High
Sewer
Public Sewer
E.V. Hookup
Electric Vehicle Hookup Level 2 (240 volts)
Water
Public
Zoning
R1BD
216 Douglane Ave is a Single Family Residence in Santa Clara, CA 95050. This 1,890 square foot property sits on a 8,866 Sq Ft Lot and features 4 bedrooms & 3 full bathrooms. It is currently priced at $2,490,000 and was built in 1949. This address can also be written as 216 Douglane Ave, Santa Clara, CA 95050.
©2026 MLSListings Inc. All rights reserved. All data, including all measurements and calculations of area, is obtained from various sources and has not been, and will not be, verified by broker or MLS. All information should be independently reviewed and verified for accuracy. Properties may or may not be listed by the office/agent presenting the information. Information provided is for personal, non-commercial use by the viewer and may not be redistributed without explicit authorization from MLSListings Inc.
Presently MLSListings.com displays Active, Contingent, Pending, and Recently Sold listings. Recently Sold listings are properties which were sold within the last three years. After that period listings are no longer displayed in MLSListings.com. Pending listings are properties under contract and no longer available for sale. Contingent listings are properties where there is an accepted offer, and seller may be seeking back-up offers. Active listings are available for sale.
This listing information is up-to-date as of March 09, 2026. For the most current information, please contact Karen Wu, (650) 291-2764