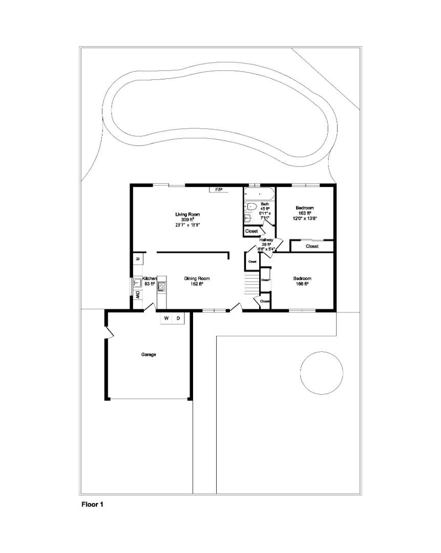
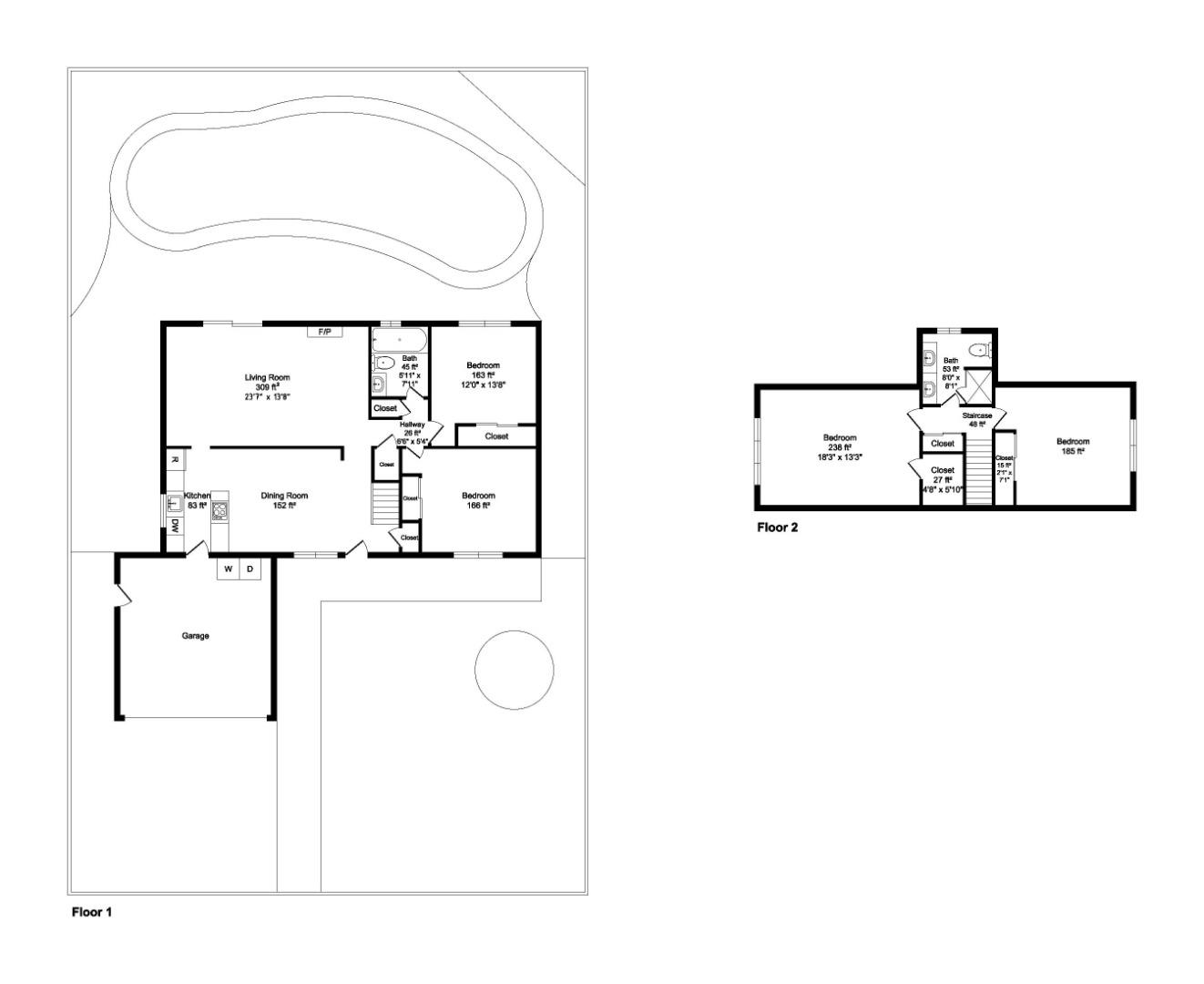
Welcome to this beautifully updated and maintained home in a prime location where pride of ownership shines. Spacious bedrooms and all newly installed flooring create a fresh, modern feel, while the inviting living area features a cozy fireplace with gas insert. A central HVAC system and brand-new water heater (2025) provide year-round comfort. The remodeled eat-in kitchen (2017) blends style and function with granite countertops, custom cabinetry, a Viking gas range, and 8-foot breakfast bar, complemented by tastefully remodeled bathrooms. The low-maintenance backyard offers a sparkling pool, a Japanese Yuzu tree, and palm trees in both front and back yards, creating a serene, resort-like setting. Ideally located just 8 minutes to Apple Park and 12 minutes to Nvidia, with easy access to Lawrence and San Tomas Expressways, walking distance to the library, close to multiple grocery stores, a future Costco 5 minutes away, and near Westfield Valley Fair, Santana Row, Westgate Center, and the future T&T Asian grocery. Excellent education options nearby include Harker, Stratford, Challenger, Action Day, and highly regarded Discovery Charter School (DCS), a top-rated public charter school that draws buyers to the neighborhood for its strong lottery advantage tied to local residency.
MLS #
ML82032984
MLS Source
MLSListings, Inc.
Days on Site
22
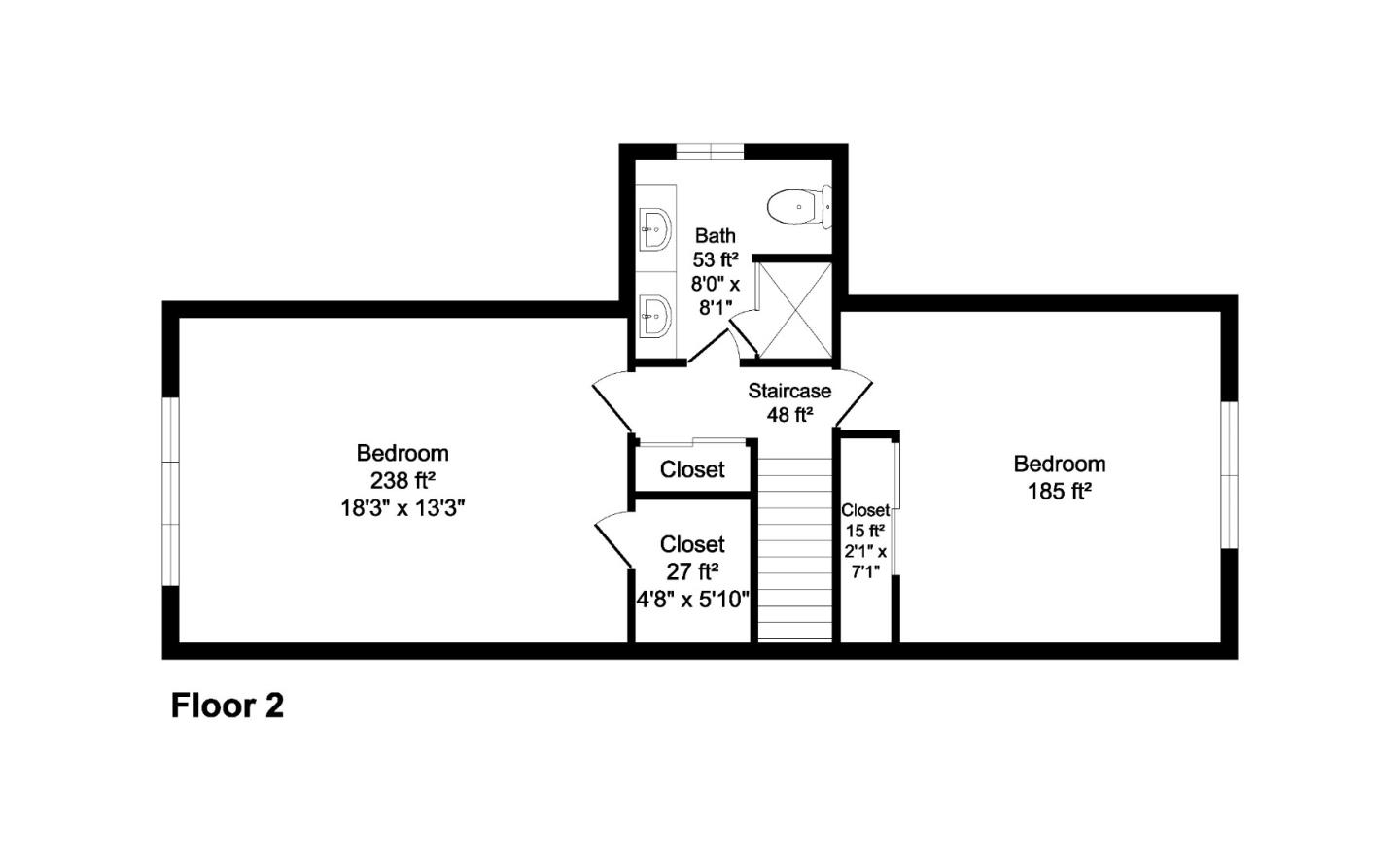
Bedrooms
More than One Bedroom on Ground Floor
Bathrooms
Granite, Showers over Tubs - 2+, Tile, Updated Bath(s)
Kitchen
Countertop - Granite
Appliances
Dishwasher, Garbage Disposal, Hood Over Range, Oven Range, Refrigerator
Dining Room
Eat in Kitchen
Family Room
No Family Room
Fireplace
Living Room
Flooring
Carpet, Hardwood, Tile
Laundry
In Garage
Cooling
Central Forced Air
Heating
Central Forced Air - Gas
Roof
Composition
Foundation
Concrete Perimeter
Pool
In Ground, Sweep
Garage/Parking
Attached Garage, Gate/Door Opener, Garage: 2 Car(s)
Elementary District
Moreland Elementary
High School District
Campbell Union High
Water
Public
Zoning
R1
4049 Payne Ave is a Single Family Residence in San Jose, CA 95117. This 1,769 square foot property sits on a 7,015 Sq Ft Lot and features 4 bedrooms & 2 full bathrooms. It is currently priced at $1,988,000 and was built in 1963. This address can also be written as 4049 Payne Ave, San Jose, CA 95117.
©2026 MLSListings Inc. All rights reserved. All data, including all measurements and calculations of area, is obtained from various sources and has not been, and will not be, verified by broker or MLS. All information should be independently reviewed and verified for accuracy. Properties may or may not be listed by the office/agent presenting the information. Information provided is for personal, non-commercial use by the viewer and may not be redistributed without explicit authorization from MLSListings Inc.
Presently MLSListings.com displays Active, Contingent, Pending, and Recently Sold listings. Recently Sold listings are properties which were sold within the last three years. After that period listings are no longer displayed in MLSListings.com. Pending listings are properties under contract and no longer available for sale. Contingent listings are properties where there is an accepted offer, and seller may be seeking back-up offers. Active listings are available for sale.
This listing information is up-to-date as of February 16, 2026. For the most current information, please contact Kathy Yue, (408) 406-8181