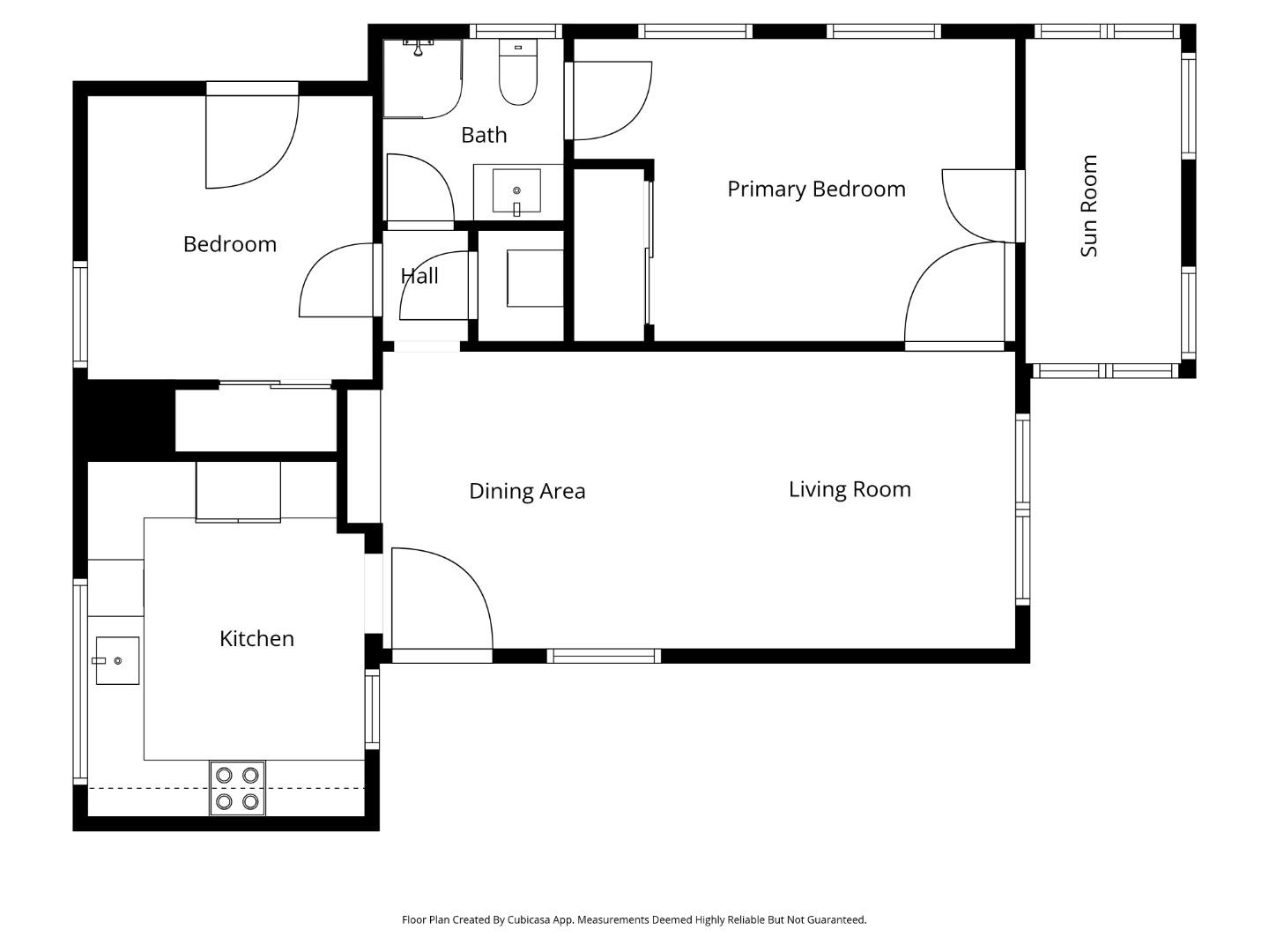
Tucked behind thoughtfully curated greenery, this charming Craftsman-style property offers a peaceful space in the heart of Santa Cruz. The main residence features two bedrooms and one bath. The primary bedroom features access to a south-facing sunroom that could be used as a home office, nursery, or yoga room. The home is complemented by a fully detached ADU with two separate entrances, creating exceptional curb appeal and flexible living options. The recent full-scale remodel includes oak hardwood floors throughout, faux beams accenting the living room, matching stainless steel appliances, Corian countertops, and space-saving stacked laundry. Original charm has been preserved with a refurbished built-in hutch featuring shelving and drawers. The fully detached ADU complements the Craftsman aesthetic and presents an ideal opportunity for rental income, guest accommodations, or extended living. Multiple patios invite you to enjoy Santa Cruzs nearly year-round mild climate, perfect for al fresco dining surrounded by the fragrant strawberry guava and camellia trees. Conveniently located near major commuter routes, popular restaurants, and local shops, with easy access to world-class recreation, including surfing at The Lane and golfing at DeLaveaga, this property truly has it all.
MLS #
ML82031538
MLS Source
MLSListings, Inc.
Days on Site
11
Bedrooms
More than One Bedroom on Ground Floor
Bathrooms
Stall Shower
Kitchen
Countertop - Formica
Appliances
Dishwasher, Oven Range, Refrigerator
Dining Room
Dining Area
Family Room
No Family Room
Flooring
Carpet
Laundry
In Garage
Cooling
Window/Wall Unit
Heating
Heat Pump, Wall Furnace
Roof
Shingle
Foundation
Crawl Space
Style
Spanish
Garage/Parking
Detached, On Street, Parking Area, Garage: 1 Car(s)
High School District
Santa Cruz City High
Sewer
Public Sewer
Water
Public
Zoning
R-15
133 Washburn Ave is a Single Family Residence in Santa Cruz, CA 95063. This 1,004 square foot property sits on a 3,302 Sq Ft Lot and features 2 bedrooms & 1 full bathrooms. It is currently priced at $1,350,000 and was built in 1933. This address can also be written as 133 Washburn Ave, Santa Cruz, CA 95063.
©2026 MLSListings Inc. All rights reserved. All data, including all measurements and calculations of area, is obtained from various sources and has not been, and will not be, verified by broker or MLS. All information should be independently reviewed and verified for accuracy. Properties may or may not be listed by the office/agent presenting the information. Information provided is for personal, non-commercial use by the viewer and may not be redistributed without explicit authorization from MLSListings Inc.
Presently MLSListings.com displays Active, Contingent, Pending, and Recently Sold listings. Recently Sold listings are properties which were sold within the last three years. After that period listings are no longer displayed in MLSListings.com. Pending listings are properties under contract and no longer available for sale. Contingent listings are properties where there is an accepted offer, and seller may be seeking back-up offers. Active listings are available for sale.
This listing information is up-to-date as of January 27, 2026. For the most current information, please contact The Madani Team, (831) 234-6683