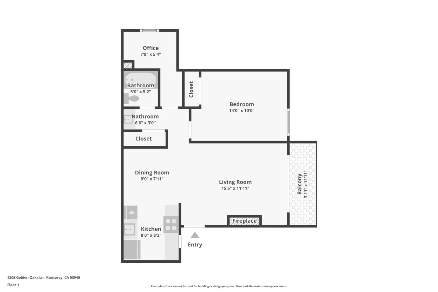
Welcome to a charming condo located in the beautiful city of Monterey. This cozy residence offers 560 square feet of comfortable living space. The well-appointed kitchen provides an inviting area for meal preparation and dining, opening into a designated dining area perfect for intimate gatherings. The separate family room is a warm and inviting space, featuring a gas fireplace that adds a touch of coziness to your evenings. The property includes a community laundry facility, making chores convenient and hassle-free. The home is situated within the Monterey Peninsula Unified Elementary School District. Flooring throughout the home complements its modern design, enhancing the overall ambiance. This unit is a one bedroom, one full bathroom, and has an extra bonus room! The convenience of a dedicated garage space, this home is perfect for those seeking simplicity and comfort. Don't miss this opportunity to own a piece of Monterey living.
MLS #
ML82028768
MLS Source
MLSListings, Inc.
Days on Site
104
Dining Room
Dining Area
Family Room
Separate Family Room
Fireplace
Gas Starter
Laundry
Community Facility
Cooling
None
Heating
Electric
Roof
Tile
Foundation
Other
Garage/Parking
Assigned Spaces, Covered Parking, Guest / Visitor Parking, Garage: 1 Car(s)
Elementary District
Monterey Peninsula Unified
High School District
Monterey Peninsula Unified
Sewer
Public Sewer
Water
Public
HOA Fee
$680
Zoning
.
4205 Golden Oaks Ln is a Condominium in Monterey, CA 93940. This 560 square foot property sits on a – Sq Ft Lot and features 1 bedrooms & 1 full bathrooms. It is currently priced at $429,000 and was built in 1980. This address can also be written as 4205 Golden Oaks Ln, Monterey, CA 93940.
©2026 MLSListings Inc. All rights reserved. All data, including all measurements and calculations of area, is obtained from various sources and has not been, and will not be, verified by broker or MLS. All information should be independently reviewed and verified for accuracy. Properties may or may not be listed by the office/agent presenting the information. Information provided is for personal, non-commercial use by the viewer and may not be redistributed without explicit authorization from MLSListings Inc.
Presently MLSListings.com displays Active, Contingent, Pending, and Recently Sold listings. Recently Sold listings are properties which were sold within the last three years. After that period listings are no longer displayed in MLSListings.com. Pending listings are properties under contract and no longer available for sale. Contingent listings are properties where there is an accepted offer, and seller may be seeking back-up offers. Active listings are available for sale.
This listing information is up-to-date as of December 29, 2025. For the most current information, please contact Christina Kim, (831) 717-7586