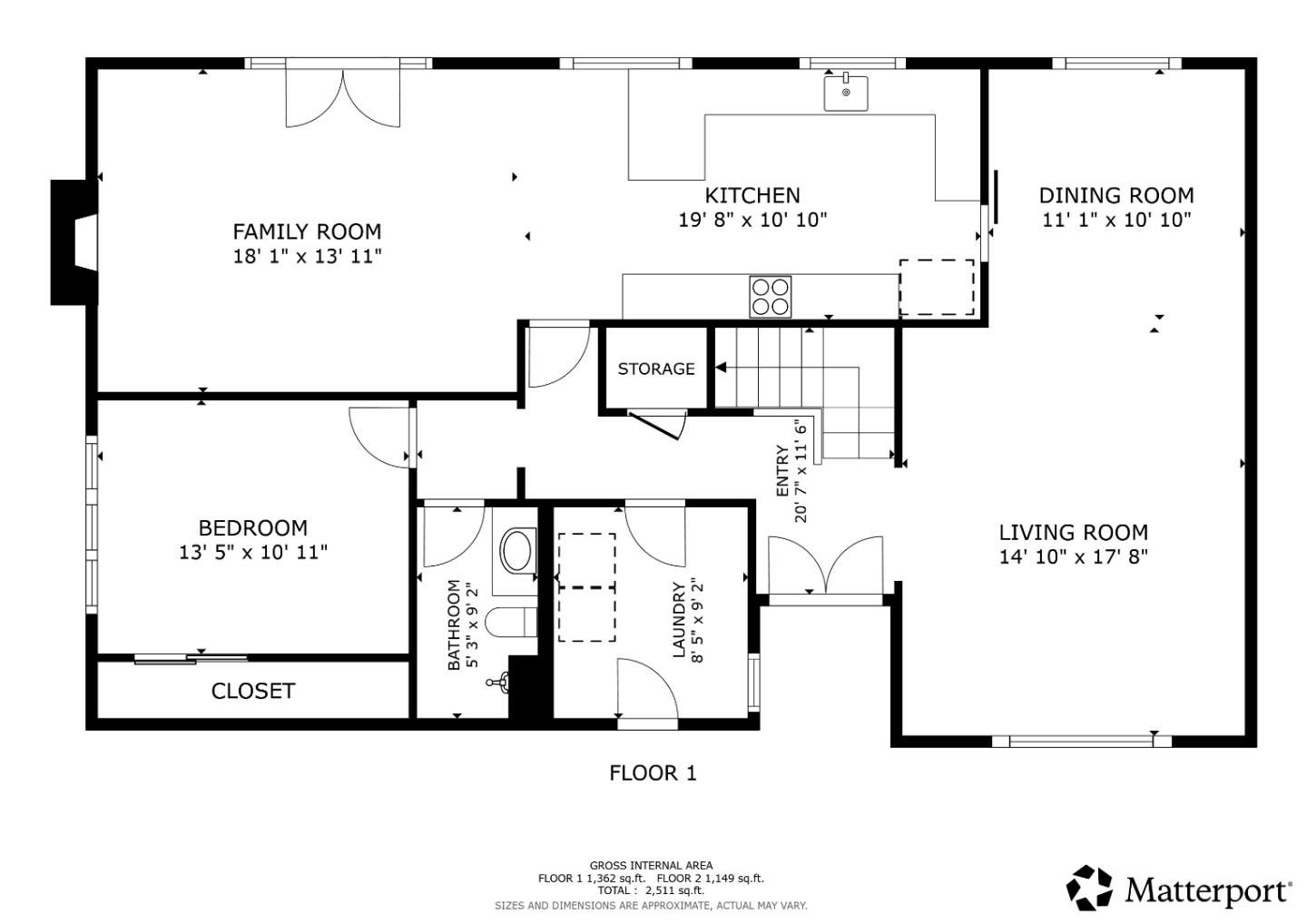
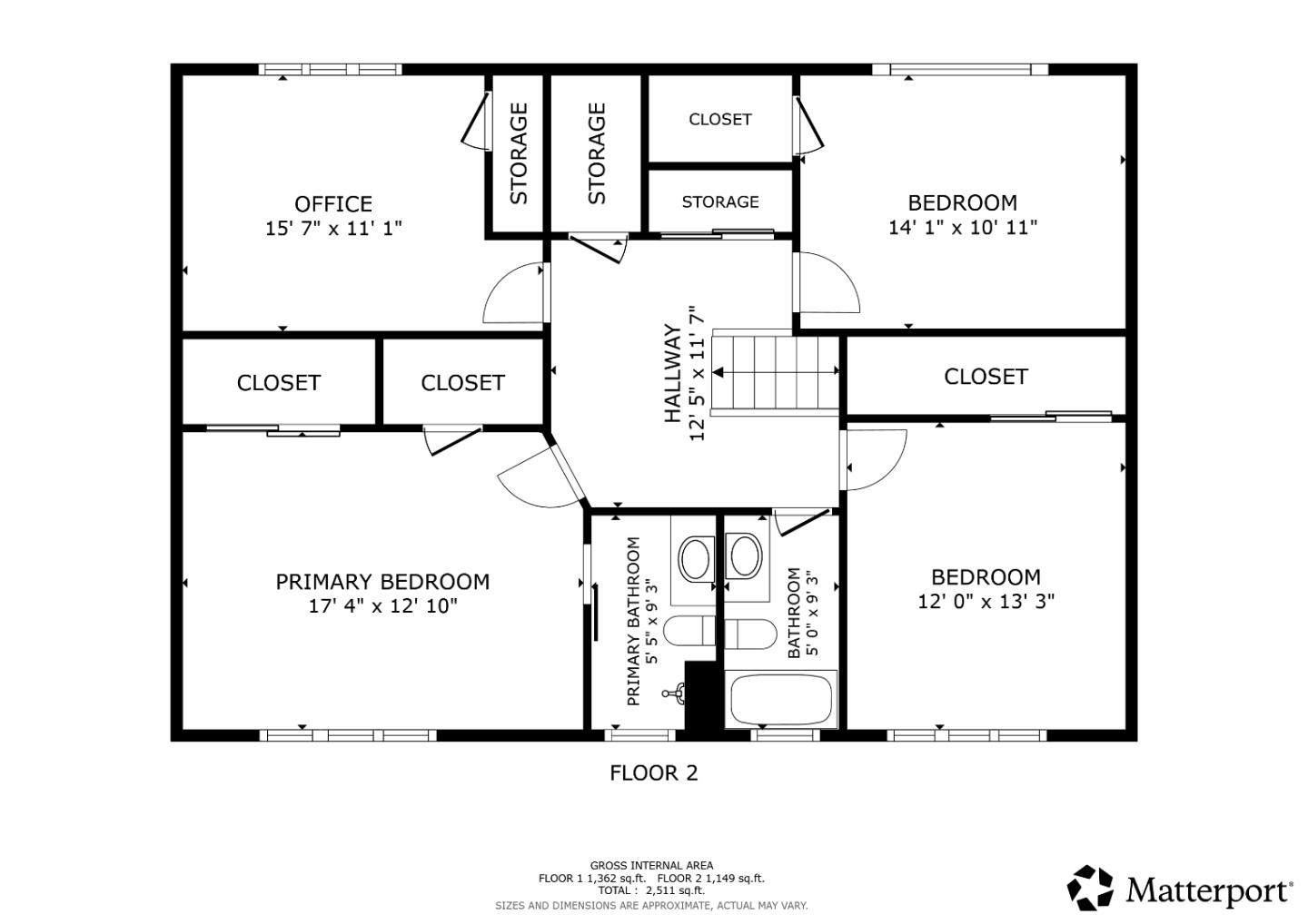
Welcome to 668 Potomac Court! A stunning, fully reimagined home that brings new life, warmth, and modern elegance to one of San Joses most desirable neighborhoods. Located at the end of a quiet cul-de-sac in Vista Park, this permitted, top-to-bottom renovation delivers an exceptional balance of luxury, functionality, and long-term potential. The flexible layout suits today's lifestyle, offering a convenient ground-floor bedroom ideal for guests, in-laws, or a home office. The spacious three-car garage provides ample storage and the option for a future J-ADU, while the expansive backyard offers room to relax, entertain, or build the ADU of your dreams. A dual-zone AC system ensures year-round comfort throughout the beautifully updated interior. This property stands out for its rare blend of move-in-ready quality and meaningful future possibilities, giving you the freedom to enjoy the home today while planning for tomorrow. Ideally positioned in the heart of Vista Park, youll enjoy close proximity to top-rated schools, parks, shopping, dining, and major commuter routes. Weekend outings at Martial Cottle Park, quick trips to Westfield Oakridge Mall, and easy access to light rail and key highways make everyday living a breeze.
MLS #
ML82028062
MLS Source
MLSListings, Inc.
Days on Site
15
Bedrooms
Ground Floor Bedroom
Bathrooms
Shower over Tub - 1, Stall Shower - 2+, Full on Ground Floor, Half on Ground Floor
Kitchen
Exhaust Fan
Appliances
Dishwasher, Exhaust Fan, Garbage Disposal, Oven Range - Gas, Refrigerator
Dining Room
Dining Area
Family Room
Kitchen/Family Room Combo
Fireplace
Family Room
Flooring
Laminate, Tile
Laundry
Inside, In Utility Room
Cooling
Central Forced Air, Multi-Zone
Heating
Central Forced Air - Gas
Roof
Composition
Foundation
Crawl Space
Garage/Parking
Attached Garage, On Street, Garage: 3 Car(s)
Elementary District
San Jose Unified
High School District
San Jose Unified
Sewer
Public Sewer
Water
Public
Zoning
R1-8P
Listing Agent
Luan Nguyen
Anchor Property Group Inc
License #: 02067839
Phone: (650) 750-8888
Co-Listing Agent
Paige Dung Nguyen
Anchor Property Group Inc
License #: 01938359
Phone: (408) 821-3228
668 Potomac Ct is a Single Family Residence in San Jose, CA 95136. This 2,743 square foot property sits on a 6,000 Sq Ft Lot and features 5 bedrooms & 3 full bathrooms. It is currently priced at $1,899,000 and was built in 1975. This address can also be written as 668 Potomac Ct, San Jose, CA 95136.
©2025 MLSListings Inc. All rights reserved. All data, including all measurements and calculations of area, is obtained from various sources and has not been, and will not be, verified by broker or MLS. All information should be independently reviewed and verified for accuracy. Properties may or may not be listed by the office/agent presenting the information. Information provided is for personal, non-commercial use by the viewer and may not be redistributed without explicit authorization from MLSListings Inc.
Presently MLSListings.com displays Active, Contingent, Pending, and Recently Sold listings. Recently Sold listings are properties which were sold within the last three years. After that period listings are no longer displayed in MLSListings.com. Pending listings are properties under contract and no longer available for sale. Contingent listings are properties where there is an accepted offer, and seller may be seeking back-up offers. Active listings are available for sale.
This listing information is up-to-date as of December 05, 2025. For the most current information, please contact Luan Nguyen, (650) 750-8888