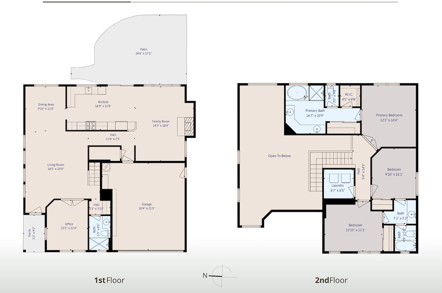
Welcome to this beautifully updated 4 bed, 3 bath home in the highly desirable Palmia community of South San Jose. Bright and inviting, the home features vaulted ceilings, an open and functional layout, and fresh interior updates including new paint and modern recessed lighting. The main level includes a full bedroom and bath perfect for guests, multigenerational living, or a home office. Upstairs, the spacious primary suite offers dual sinks and a walk-in closet, complemented by two additional bedrooms connected by a Jack & Jill bath, plus a convenient upstairs laundry room. The generous lot provides well-maintained landscaping, ample outdoor space for entertaining, and side access suitable for RV or boat parking. Ideally located minutes from shopping, dining, Costco, Target, parks, and major freeways, and within the sought-after Santa Teresa High School district, this turn-key home delivers the perfect blend of comfort, style, and everyday convenience in one of South San Joses most desirable neighborhoods.
MLS #
ML82027425
MLS Source
MLSListings, Inc.
Days on Site
24
Bedrooms
Primary Suite/Retreat
Bathrooms
Double Sinks, Full on Ground Floor
Kitchen
Countertop - Granite
Appliances
Cooktop - Gas, Dishwasher, Garbage Disposal, Washer/Dryer
Dining Room
Dining "L", Dining Area
Family Room
Separate Family Room
Fireplace
Family Room
Flooring
Carpet, Hardwood, Tile
Laundry
Upper Floor, Inside
Cooling
Central Forced Air
Heating
Central Forced Air
Roof
Tile
Foundation
Concrete Perimeter and Slab
Garage/Parking
Attached Garage, On Street, Room for Oversized Vehicle, Garage: 2 Car(s)
Elementary District
Oak Grove Elementary
High School District
East Side Union High
E.V. Hookup
Electric Vehicle Hookup Level 2 (240 volts)
Water
Public
Zoning
A-PD
5948 Sage Dr is a Single Family Residence in San Jose, CA 95123. This 2,048 square foot property sits on a 5,231 Sq Ft Lot and features 4 bedrooms & 3 full bathrooms. It is currently priced at $1,828,888 and was built in 2000. This address can also be written as 5948 Sage Dr, San Jose, CA 95123.
©2026 MLSListings Inc. All rights reserved. All data, including all measurements and calculations of area, is obtained from various sources and has not been, and will not be, verified by broker or MLS. All information should be independently reviewed and verified for accuracy. Properties may or may not be listed by the office/agent presenting the information. Information provided is for personal, non-commercial use by the viewer and may not be redistributed without explicit authorization from MLSListings Inc.
Presently MLSListings.com displays Active, Contingent, Pending, and Recently Sold listings. Recently Sold listings are properties which were sold within the last three years. After that period listings are no longer displayed in MLSListings.com. Pending listings are properties under contract and no longer available for sale. Contingent listings are properties where there is an accepted offer, and seller may be seeking back-up offers. Active listings are available for sale.
This listing information is up-to-date as of January 31, 2026. For the most current information, please contact Ravi Prakash, (408) 691-7621