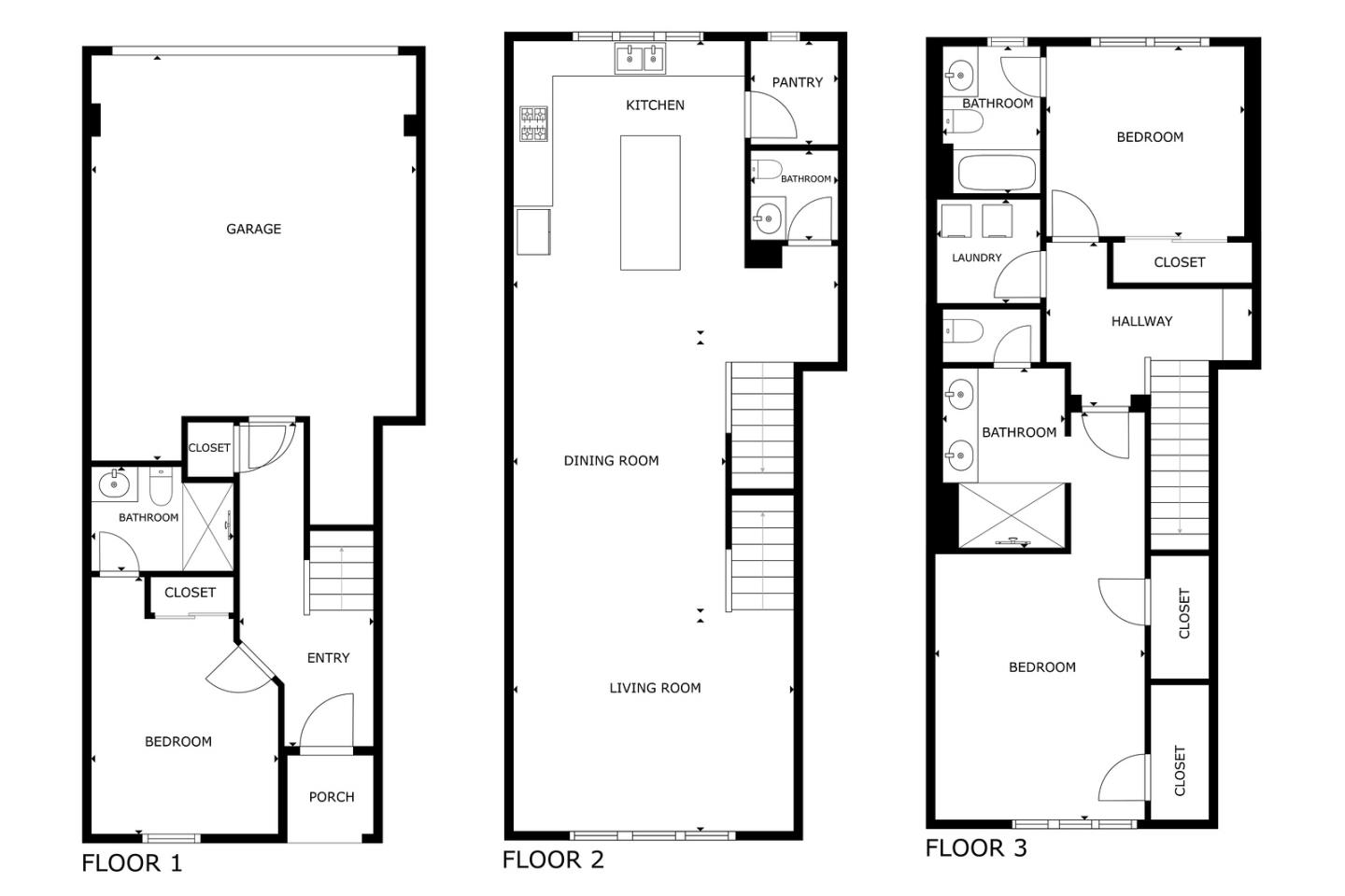
ENJOY DOWNTOWN PROXIMITY IN A WALK-UP SETTING | Built in 2017, this light-filled Sandalwood townhome showcases a prime walk-up location with the privacy of mature foliage only a mile away from downtown shopping and dining! Exquisitely maintained interiors reveal high ceilings, designer lighting, luxury floors, smart climate control, tankless hot water, and zoned AC. Open-concept gathering spaces wired for wall media unfold from a master chefs kitchen fitted with a grand island, elegant quartz countertops, Shaker cabinetry, walk-in pantry, and refrigerator and double-oven range by Cafe, All bedrooms are ensuite, including ground-level guest quarters/office and a primary retreat with dual vanities, a walk-in shower, and dual custom closets. Also enjoy fiber and Cat5E in every room, convenient upper laundry with smart LG appliances, and oversized two-car garage with finished walls and epoxy floors. Community amenities include luxuriant landscaping, private walking paths, a playground, clubhouse, and dog park. Steps from Apple and Google shuttles, and near Downtown Sunnyvale attractions like nightlife, Caltrain, the Farmers' Market, and more!
MLS #
ML82025827
MLS Source
MLSListings, Inc.
Days on Site
42
Bedrooms
Ground Floor Bedroom
Bathrooms
Double Sinks, Full on Ground Floor
Kitchen
Exhaust Fan, Island, Pantry
Appliances
Dishwasher, Exhaust Fan, Garbage Disposal, Hood Over Range, Microwave, Oven Range, Refrigerator, Washer/Dryer
Dining Room
Dining Area in Living Room, No Formal Dining Room
Family Room
Kitchen/Family Room Combo
Flooring
Carpet, Hardwood, Tile
Laundry
Upper Floor
Cooling
Central Forced Air, Multi-Zone
Heating
Central Forced Air
Roof
Other
Foundation
Slab
Garage/Parking
Attached Garage, Common Parking Area, On Street, Garage: 2 Car(s)
Elementary District
Santa Clara Unified
High School District
Santa Clara Unified
Sewer
Public Sewer
Water
Public
HOA Fee
$373
HOA Fee Frequency
Monthly
Complex Amenities
Club House, Putting Green
Zoning
M3
733 E Evelyn Ave is a Townhouse in Sunnyvale, CA 94086. This 1,735 square foot property sits on a – Sq Ft Lot and features 3 bedrooms & 3 full and 1 partial bathrooms. It is currently priced at $1,570,000 and was built in 2017. This address can also be written as 733 E Evelyn Ave, Sunnyvale, CA 94086.
©2025 MLSListings Inc. All rights reserved. All data, including all measurements and calculations of area, is obtained from various sources and has not been, and will not be, verified by broker or MLS. All information should be independently reviewed and verified for accuracy. Properties may or may not be listed by the office/agent presenting the information. Information provided is for personal, non-commercial use by the viewer and may not be redistributed without explicit authorization from MLSListings Inc.
Presently MLSListings.com displays Active, Contingent, Pending, and Recently Sold listings. Recently Sold listings are properties which were sold within the last three years. After that period listings are no longer displayed in MLSListings.com. Pending listings are properties under contract and no longer available for sale. Contingent listings are properties where there is an accepted offer, and seller may be seeking back-up offers. Active listings are available for sale.
This listing information is up-to-date as of November 24, 2025. For the most current information, please contact Katie Ruddell, (408) 712-5618