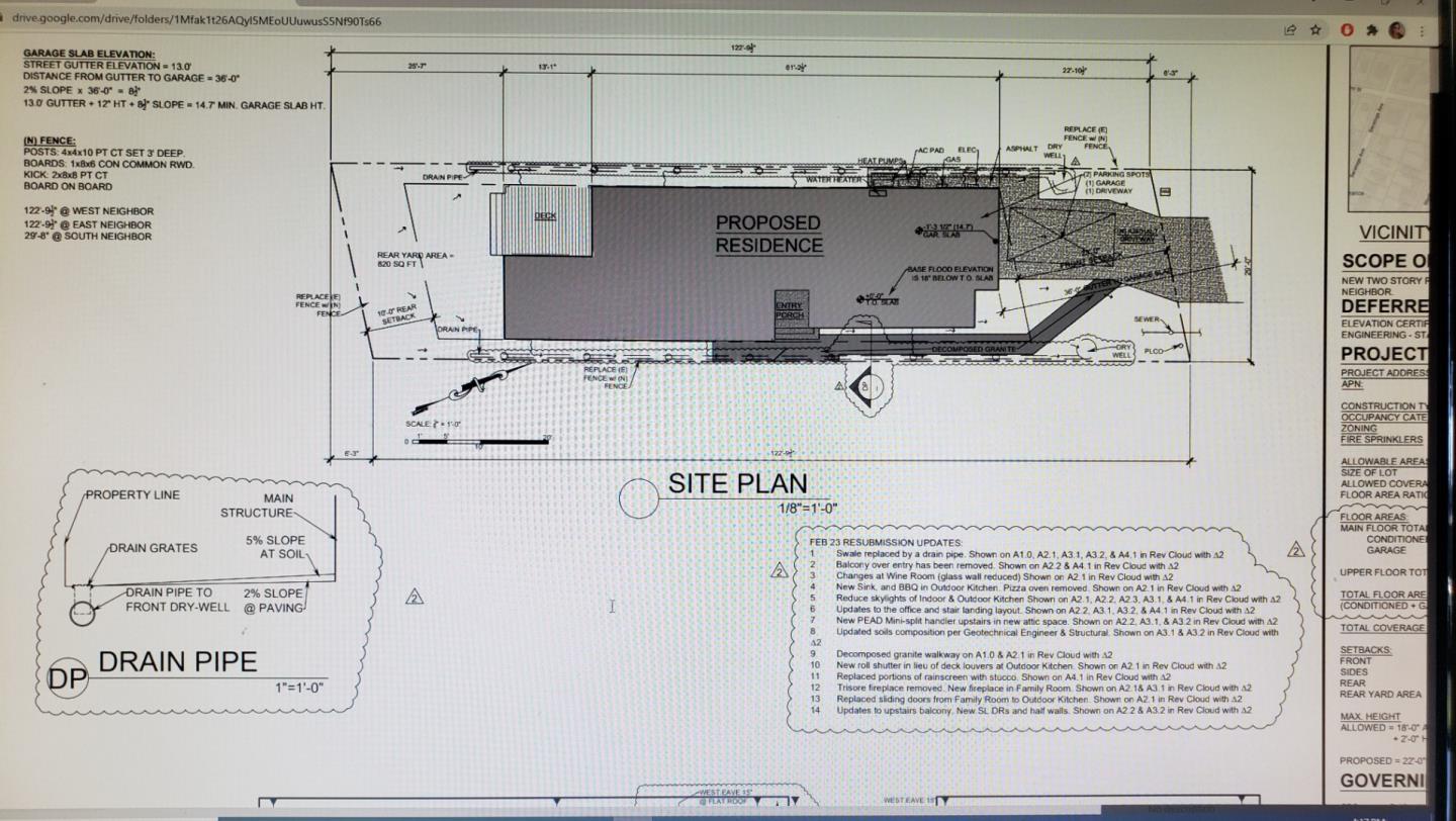
Unique opportunity to build a dream home tastefully designed on this flat vacant residential lot for single family house, in the heart of Bay Area, walking distance from Facebook, 1 block of Willow Rd. Plans fully approved by Building, Planning and Engineering division, permits will be issue when misc, impact fees are paid to the city of EPA. School and Sewage Fees are paid. City must have their first inspection within 120 day from approval date. No Utilities on the property. Permit No: BLD2019-0163
MLS #
ML82014625
MLS Source
MLSListings, Inc.
Development Status
Approved Building Plan, Building Site Cleared, Have Building Plans, Site Plan Approved
Existing Structures
None
Fencing
CompletePerimeter
Lot Description
Grade - Level
Present Use
Residential
Utilities
None, Water - Public
Elementary District
Ravenswood City Elementary
High School District
Sequoia Union High
Sewer
Public Sewer
Water
Public
Zoning
R10006
1002 Alberni St is in East Palo Alto, CA 94303. This Land is currently priced at $366,000. This address can also be written as 1002 Alberni St, East Palo Alto, CA 94303.
©2026 MLSListings Inc. All rights reserved. All data, including all measurements and calculations of area, is obtained from various sources and has not been, and will not be, verified by broker or MLS. All information should be independently reviewed and verified for accuracy. Properties may or may not be listed by the office/agent presenting the information. Information provided is for personal, non-commercial use by the viewer and may not be redistributed without explicit authorization from MLSListings Inc.
Presently MLSListings.com displays Active, Contingent, Pending, and Recently Sold listings. Recently Sold listings are properties which were sold within the last three years. After that period listings are no longer displayed in MLSListings.com. Pending listings are properties under contract and no longer available for sale. Contingent listings are properties where there is an accepted offer, and seller may be seeking back-up offers. Active listings are available for sale.
This listing information is up-to-date as of December 18, 2025. For the most current information, please contact Lily Govea, (650) 826-0242