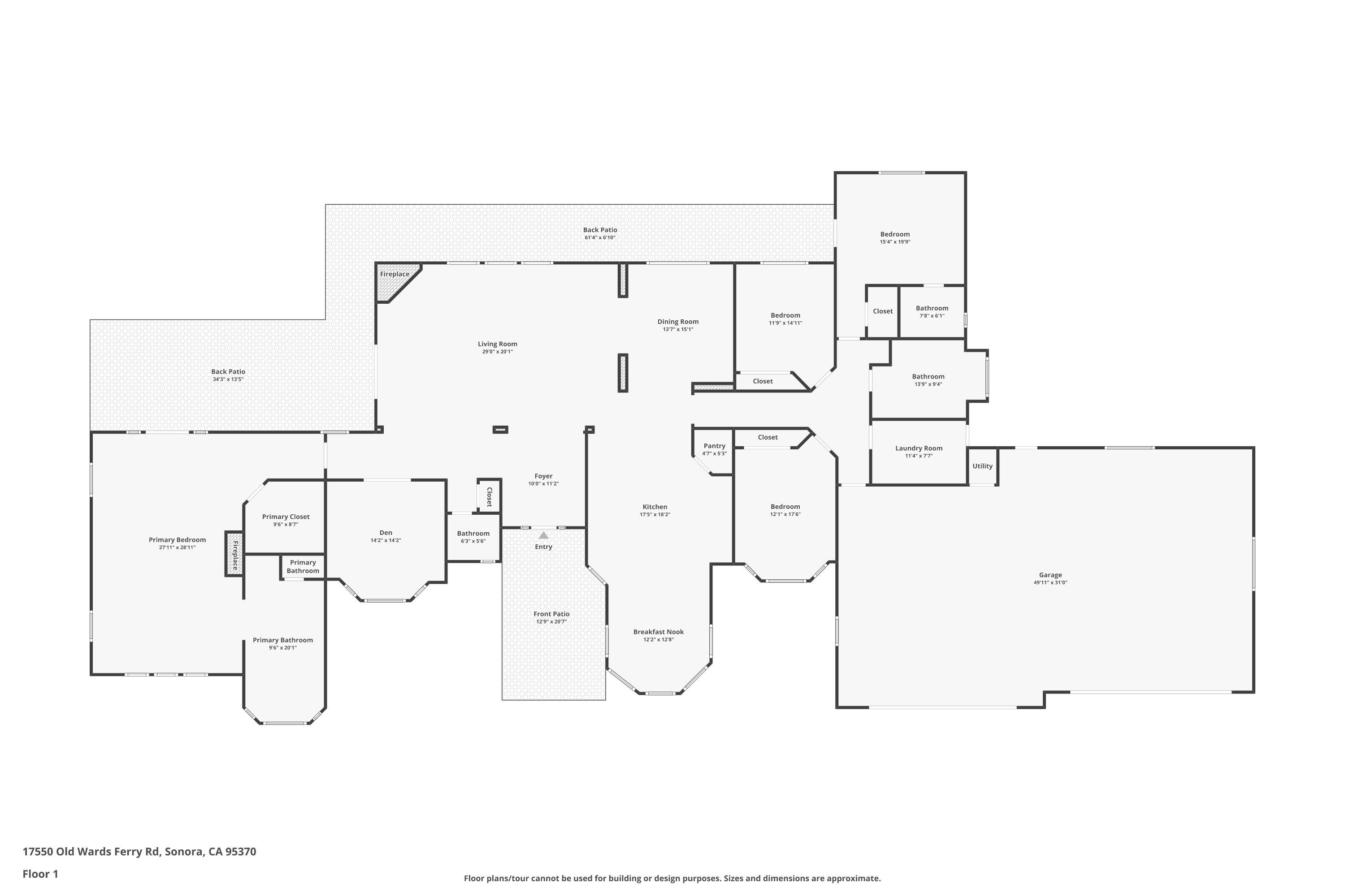
ROMANTIC SUNSET VIEWS with 3,707 Sq Ft Of Luxury for this Gated, Contemporary, Single Level Home, on Nearly Five, Fully Fenced, Flat Acres & Owned Solar! Quiet, private, country location, close to town, the home sits gently above & overlooking the pasture, featuring 4 bedrooms including a primary & a junior suite, 3.5 baths, den/office, gourmet kitchen that is fit for a chef, large breakfast bar/nook area, indoor laundry room, & the added bonus of a finished 4 car garage. The spacious layout features soaring ceilings with an open concept great room with propane fireplace, creating a relaxing & perfect space for entertaining. The expansive, primary suite is on one side of the home featuring a propane fireplace, walk-in closet, & private entrance/access to outside patio, making it ideal for an in-law quarter. The oversized, primary bathroom has double sinks, make-up vanity, jetted tub, large standing shower, & closeted commode. The other side of the home, is the spacious junior suite equipped with a tub/shower combo bath & walk-in closet, 2 ample sized guest bedrooms, large hall bath, & indoor laundry room. Outside features mature landscaping, paved circular driveway, 50 amp RV plug, 10x12' barn with hay feeder. Zoned RE-5 for animals, public water, septic system, & hydrant nearby
MLS #
EB41120500
MLS Source
Bridge MLS
Days on Site
1
Bathrooms
Double Sinks, Primary - Shower(s) over Tub(s), Primary - Sunken Tub, Primary - Tile, Tile, Window
Kitchen
Breakfast Bar, Breakfast Nook, Countertop - Tile, Island, Pantry
Appliances
Dishwasher, Garbage Disposal, Microwave, Oven - Double, Oven Range - Gas, Refrigerator
Fireplace
Gas Burning, Living Room, Primary Bedroom
Flooring
Carpet - Wall to Wall, Hardwood, Tile
Laundry
220 Volt Outlet, Hookups Only, In Laundry Room
Cooling
Ceiling Fan, Central -1 Zone
Heating
Heating - 2+ Zones
Roof
Composition
Foundation
Slab
Pool
None, Pool - No
Style
Contemporary
Garage/Parking
Access - Interior, Attached Garage, Garage, RV/Boat Parking, Garage: 4 Car(s)
Sewer
Septic Tank
Water
Public
Listing Agent
Stacy Siville
KW Sierra Foothills
License #: 01984956
Phone: (209) 566-4756
Co-Listing Agent
Pam Holly
KW Sierra Foothills
License #: 01264256
Phone: (209) 588-6291
17550 Old Wards Ferry Rd is a Single Family Residence in Sonora, CA 95370. This 3,707 square foot property sits on a 4.81 Acres Lot and features 4 bedrooms & 3 full and 1 partial bathrooms. It is currently priced at $949,000 and was built in 2004. This address can also be written as 17550 Old Wards Ferry Rd, Sonora, CA 95370.
©2026 Bridge MLS. All rights reserved. All data, including all measurements and calculations of area, is obtained from various sources and has not been, and will not be, verified by broker or MLS. All information should be independently reviewed and verified for accuracy. Properties may or may not be listed by the office/agent presenting the information. Information provided is for personal, non-commercial use by the viewer and may not be redistributed without explicit authorization from Bridge MLS.
Presently MLSListings.com displays Active, Contingent, Pending, and Recently Sold listings. Recently Sold listings are properties which were sold within the last three years. After that period listings are no longer displayed in MLSListings.com. Pending listings are properties under contract and no longer available for sale. Contingent listings are properties where there is an accepted offer, and seller may be seeking back-up offers. Active listings are available for sale.
This listing information is up-to-date as of January 10, 2026. For the most current information, please contact Stacy Siville, (209) 566-4756