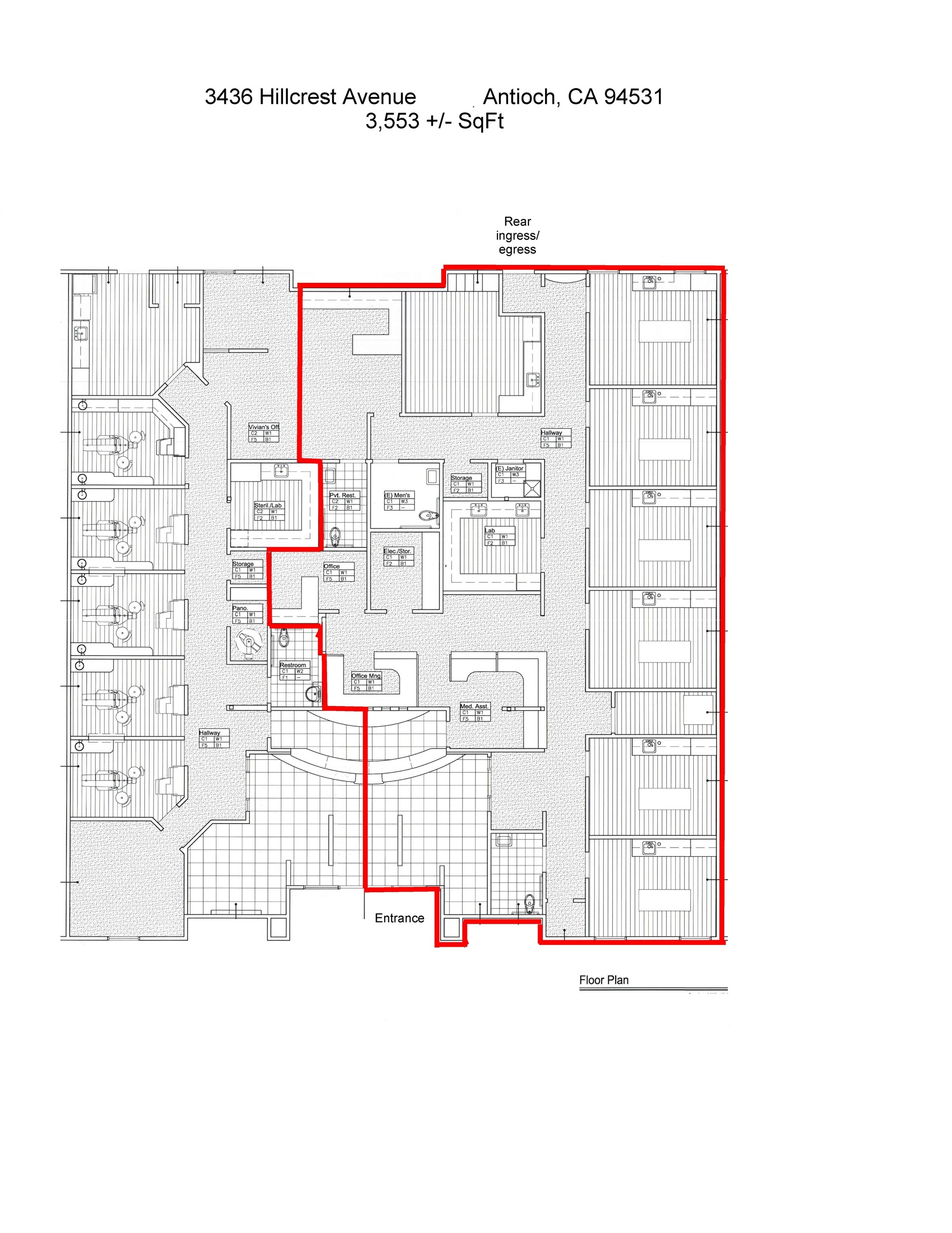
Exceptional opportunity for medical professionals to occupy a spacious 3,606 SF turn-key medical suite. This well-configured office in the heart of Antioch. Positioned in a high-visibility medical/office complex with excellent access to major arterials. The space is ideal for Aesthetic Medicine, Plastic Surgery, ENT, Dermatology, Surgery Center, and more. The 3,406 SF suite is turn-key and conducive to clinics & healthcare services. With (6) oversized exam/procedure rooms plus two (2) private offices, Reception/waiting area designed for patient flow and comfort, Staff support spaces including employee lounge, storage, and staff lockers, (3) restrooms, Lab, Front and Rear Access, ADA compliant, Plenty of natural light and modern finishes, Ample parking for patients and staff. All in a well-maintained professional complex with medical tenants (including John Muir, and Delta Association of Realtors), and Easy access to Highway 4, public transit, and surrounding business amenities.
MLS #
EB41119793
MLS Source
Bridge MLS
Days on Site
30
Parking Spaces
8
Present Use
Office
Flooring
Carpet - Partial, Ceramic Tile, Concrete
Roof
Rolled/Hot Mop
3436 Hillcrest Avenue is a Commercial Lease in Antioch, CA 94531-1111. This 5,640 square foot property sits on a 0.35 Acres Lot and features – bedrooms & – full bathrooms. It is currently priced at $10,048 and was built in 2006. This address can also be written as 3436 Hillcrest Avenue, Antioch, CA 94531-1111.
©2026 Bridge MLS. All rights reserved. All data, including all measurements and calculations of area, is obtained from various sources and has not been, and will not be, verified by broker or MLS. All information should be independently reviewed and verified for accuracy. Properties may or may not be listed by the office/agent presenting the information. Information provided is for personal, non-commercial use by the viewer and may not be redistributed without explicit authorization from Bridge MLS.
Presently MLSListings.com displays Active, Contingent, Pending, and Recently Sold listings. Recently Sold listings are properties which were sold within the last three years. After that period listings are no longer displayed in MLSListings.com. Pending listings are properties under contract and no longer available for sale. Contingent listings are properties where there is an accepted offer, and seller may be seeking back-up offers. Active listings are available for sale.
This listing information is up-to-date as of January 23, 2026. For the most current information, please contact Kelly Klingler, (925) 550-9540