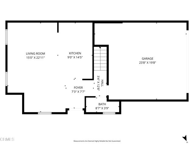
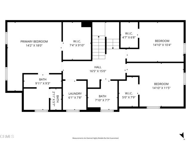
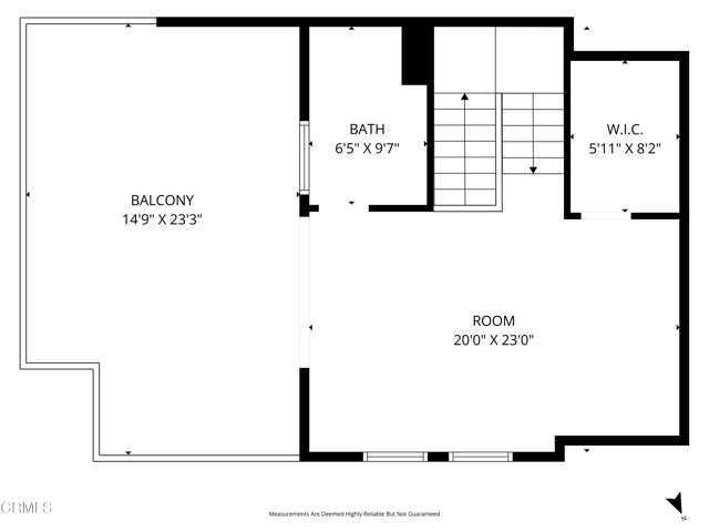
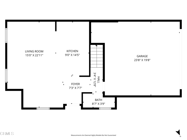
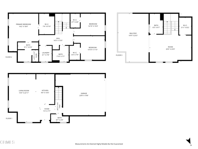
Beautiful newer townhome featuring 3 bedrooms, 4 bathrooms, plus a large multi-functional bonus room/optional 4th bedroom with its own bathroom and direct access to a spacious private deck, perfect for entertaining, lounging, or a home office setup.The light and bright kitchen offers an island bar and seamlessly opens to the family room, creating an inviting and modern open-concept living space. All bedrooms are conveniently located upstairs, including the spacious primary suite with en-suite bathroom and generous closet space.Additional features include an attached two-car garage, smart climate control for year-round comfort, and solar panels for energy efficiency and cost savings. A dedicated laundry room is located on 2nd floor. Only one shared wall offers added privacy.Conveniently located near freeway access and just moments from a local strip mall as well as the acclaimed 'Collection' offering premier shopping, dining, entertainment, and lifestyle amenities.with shopping and dining options, making everyday errands quick and easy.A stylish and well-designed townhome that checks all the boxes. Move-in ready, efficient, and perfectly set up for today's lifestyle.
MLS #
CRV1-33299
MLS Source
California Regional MLS
Days on Site
114
Bedrooms
Primary Suite/Retreat, Other
Appliances
Dishwasher, Oven - Gas
Dining Room
Breakfast Bar, In Kitchen, Other
Family Room
Other
Fireplace
None
Laundry
Hookup - Gas Dryer, In Laundry Room
Cooling
Central Forced Air
Heating
Forced Air
Pool
None
Garage/Parking
Off-Street Parking, Garage: 2 Car(s)
HOA Fee
$225
HOA Fee Frequency
Monthly
Complex Amenities
Barbecue Area
Listing Agent
Anna Hansen
Village Properties
License #: 01712742
Phone: (805) 901-0248
Co-Listing Agent
Marcia Ribeiro
Village Properties
License #: 02203936
Phone: (805) 245-4550
611 Winchester Dr is a Townhouse in Oxnard, CA 93036. This 2,071 square foot property sits on a 965 Sq Ft Lot and features 3 bedrooms & 3 full and 1 partial bathrooms. It is currently priced at $760,000 and was built in 2022. This address can also be written as 611 Winchester Dr, Oxnard, CA 93036.
©2026 California Regional MLS. All rights reserved. All data, including all measurements and calculations of area, is obtained from various sources and has not been, and will not be, verified by broker or MLS. All information should be independently reviewed and verified for accuracy. Properties may or may not be listed by the office/agent presenting the information. Information provided is for personal, non-commercial use by the viewer and may not be redistributed without explicit authorization from California Regional MLS.
Presently MLSListings.com displays Active, Contingent, Pending, and Recently Sold listings. Recently Sold listings are properties which were sold within the last three years. After that period listings are no longer displayed in MLSListings.com. Pending listings are properties under contract and no longer available for sale. Contingent listings are properties where there is an accepted offer, and seller may be seeking back-up offers. Active listings are available for sale.
This listing information is up-to-date as of March 02, 2026. For the most current information, please contact Anna Hansen, (805) 901-0248