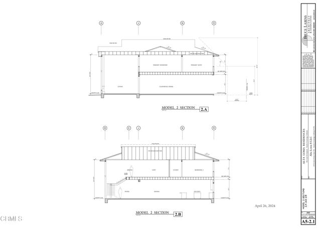
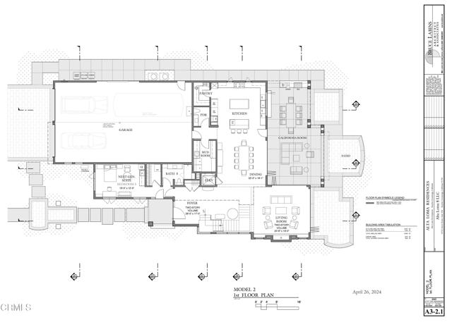
Located in beautiful Alta Loma, CA with panoramic city and mountain views, this brand new subdivision of eight luxury estates on half acres lots will be situated on a newly developed cul de sac. With four models to choose from, these big garage homes include features such as 20' x 50' RV garages with an option for a finished mezzanine, indoor/outdoor living with beautiful 500 SF covered California rooms, multi-generational living accommodation with NextGen/Guest suites, high ceilings, beautiful staircases, ensuite bathrooms for all bedrooms, and options for a swimming pool and private gated driveway. Curbs and sidewalks with city sewer are included even though the site has access to an equestrian trail and miles of walkable nature trails directly from each property. This is in a coveted quiet Alta Loma neighborhood which boasts California distinguished elementary and middle schools as well as a nationally recognized high school. Imagine snowboarding and surfing the same day as you're only 45 min from both the beach and mountain resorts. Los Angeles night life and restaurants are under an hour away! See attached Site Plan, Renderings & Elevations, Floor Plans, and Key Features available for the model being placed on this specific lot (subject to adjustments as required via fina
MLS #
CRV1-32557
MLS Source
California Regional MLS
Days on Site
152
Bedrooms
Ground Floor Bedroom
Appliances
Other
Fireplace
Living Room
Laundry
In Laundry Room, Other
Roof
Metal
Pool
None
Style
Custom
Garage/Parking
RV Access, Garage: 6 Car(s)
9210 Camellia Ct is a Single Family Residence in Rancho Cucamonga, CA 91737. This 4,948 square foot property sits on a 0.544 Acres Lot and features 5 bedrooms & 5 full and 1 partial bathrooms. It is currently priced at $2,790,000 and was built in 2025. This address can also be written as 9210 Camellia Ct, Rancho Cucamonga, CA 91737.
©2026 California Regional MLS. All rights reserved. All data, including all measurements and calculations of area, is obtained from various sources and has not been, and will not be, verified by broker or MLS. All information should be independently reviewed and verified for accuracy. Properties may or may not be listed by the office/agent presenting the information. Information provided is for personal, non-commercial use by the viewer and may not be redistributed without explicit authorization from California Regional MLS.
Presently MLSListings.com displays Active, Contingent, Pending, and Recently Sold listings. Recently Sold listings are properties which were sold within the last three years. After that period listings are no longer displayed in MLSListings.com. Pending listings are properties under contract and no longer available for sale. Contingent listings are properties where there is an accepted offer, and seller may be seeking back-up offers. Active listings are available for sale.
This listing information is up-to-date as of February 11, 2026. For the most current information, please contact Janet Meier, (805) 701-1978