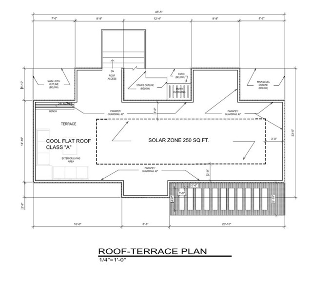
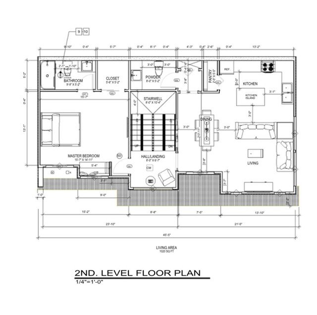
Offered at $295,000 — Seller may finance up to $200,000 for well-qualified buyers. The owner is also prepared to assist with permitting as needed. Elevate your vision in the Hollywood Hills. This exceptional vacant lot sits atop coveted Mannix Drive, commanding 180-degree, unobstructed views of the LA Basin, canyons, and mountains—an extraordinary canvas for your dream estate. Preliminary architectural and structural plans are included for a stunning modern masterpiece: three spacious bedrooms, three and a half designer baths, a private two-car garage, and a showstopping rooftop deck that captures the city’s endless skyline (see supplements). Surrounded by sleek, multi-million dollar contemporary homes, this address places you in the company of Hollywood’s elite. Much of the groundwork is already complete—soils reports approved, road improvements finished, and setbacks secured. While the plans are not yet RTI, the seller—who is a licensed contractor—stands ready to help bring the property to permit-ready status, smoothing the way for a seamless build. This is a truly rare opportunity: build and acquire a premier Hollywood Hills lot for under $1.5 million all-in, an offering nearly unheard of in this exclusive enclave. Opportunities of this caliber don’t last. Create a
MLS #
CRTR26023176
MLS Source
California Regional MLS
Days on Site
36
Water
Other
HOA Fee
$0
Zoning
D0
8220 Mannix Dr is in Los Angeles, CA 90046. This Land is currently priced at $295,000. This address can also be written as 8220 Mannix Dr, Los Angeles, CA 90046.
©2026 California Regional MLS. All rights reserved. All data, including all measurements and calculations of area, is obtained from various sources and has not been, and will not be, verified by broker or MLS. All information should be independently reviewed and verified for accuracy. Properties may or may not be listed by the office/agent presenting the information. Information provided is for personal, non-commercial use by the viewer and may not be redistributed without explicit authorization from California Regional MLS.
Presently MLSListings.com displays Active, Contingent, Pending, and Recently Sold listings. Recently Sold listings are properties which were sold within the last three years. After that period listings are no longer displayed in MLSListings.com. Pending listings are properties under contract and no longer available for sale. Contingent listings are properties where there is an accepted offer, and seller may be seeking back-up offers. Active listings are available for sale.
This listing information is up-to-date as of February 09, 2026. For the most current information, please contact Richard Furstenberg, (909) 973-5959