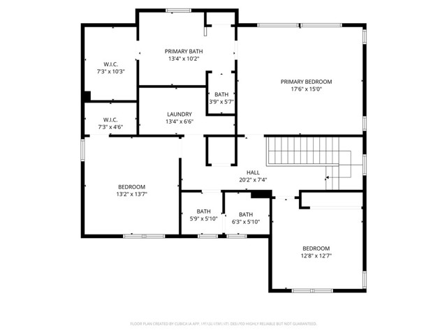
Constructed in 2017, this residence is located within the Stonehaven neighborhood developed by CalAtlantic Homes and offers a flexible layout designed for modern living. The home features four well-sized bedrooms, including a bedroom on the first floor that accommodates a variety of lifestyle needs. The interior is filled with natural light and enhanced by newly installed elegant luxury vinyl flooring throughout, adding both style and durability. The open living and dining areas flow effortlessly, creating an inviting setting for everyday living and entertaining. The kitchen is both functional and refined, showcasing granite countertops, stainless steel appliances, and ample pantry storage. Upstairs, the spacious primary suite serves as a comfortable retreat with a well-appointed bathroom featuring dual sinks and a generous walk-in closet. Two additional bedrooms are thoughtfully positioned nearby, along with a full secondary bathroom and a conveniently located laundry room, offering privacy and practicality. The property is located within the Etiwanda School District, with nearby schools serving the community (buyers to independently verify school assignments and availability) and is ideally situated near Falcon Ridge Town Center, the property provides close proximity t
MLS #
CRTR25277163
MLS Source
California Regional MLS
Days on Site
1
Bedrooms
Ground Floor Bedroom
Appliances
Other
Fireplace
None
Laundry
Other, Upper Floor
Cooling
Central Forced Air
Heating
Central Forced Air
Pool
None
Garage/Parking
Garage: 2 Car(s)
Elementary District
Etiwanda Elementary
HOA Fee
$130
HOA Fee Frequency
Monthly
6341 Waterstone is a Single Family Residence in Fontana, CA 92336. This 2,288 square foot property sits on a 3,999 Sq Ft Lot and features 4 bedrooms & 3 full bathrooms. It is currently priced at $773,000 and was built in 2017. This address can also be written as 6341 Waterstone, Fontana, CA 92336.
©2025 California Regional MLS. All rights reserved. All data, including all measurements and calculations of area, is obtained from various sources and has not been, and will not be, verified by broker or MLS. All information should be independently reviewed and verified for accuracy. Properties may or may not be listed by the office/agent presenting the information. Information provided is for personal, non-commercial use by the viewer and may not be redistributed without explicit authorization from California Regional MLS.
Presently MLSListings.com displays Active, Contingent, Pending, and Recently Sold listings. Recently Sold listings are properties which were sold within the last three years. After that period listings are no longer displayed in MLSListings.com. Pending listings are properties under contract and no longer available for sale. Contingent listings are properties where there is an accepted offer, and seller may be seeking back-up offers. Active listings are available for sale.
This listing information is up-to-date as of December 17, 2025. For the most current information, please contact Alice Cernea