OWNED PAID-OFF SOLAR | UPGRADED | MAIN-FLOOR BEDROOM WITH FULL BATH | TEMECULA VALLEY SCHOOL DISTRICT | SOMMERS BEND HOME! Welcome to this beautifully upgraded 4-bedroom home in Sommers Bend, Temecula, featuring a highly sought-after layout with a main-floor bedroom and full bathroom, plus three additional bedrooms and two baths upstairs, making it ideal for multigenerational living, guests, or a home office. The interior showcases luxury vinyl plank flooring, upgraded carpet, and a custom kitchen featuring a designer backsplash, modern finishes, and enhanced functionality. Custom light fixtures throughout add a clean, contemporary feel. Step outside to a low-maintenance, hardscaped backyard with private direct access to parking, offering both convenience and privacy. Additional highlights include owned (paid-off) solar, which provides energy efficiency and long-term savings. Located in the highly desirable Sommers Bend master-planned community, just minutes from the clubhouse, residents enjoy resort-style amenities including pools, fitness center, walking trails, sports parks, and more; all near Temecula Wine Country, top-rated schools, shopping, and dining.
MLS #
CRSW26079343
MLS Source
California Regional MLS
Days on Site
0
Kitchen
Other
Appliances
Microwave, Other, Oven - Gas, Refrigerator
Fireplace
Living Room
Flooring
Laminate
Laundry
Other, Upper Floor
Cooling
Central Forced Air
Heating
Central Forced Air
Roof
Tile
Pool
Community Facility, Spa - Community Facility
Garage/Parking
Garage, Garage: 2 Car(s)
Elementary District
Temecula Valley Unified
High School District
Temecula Valley Unified
HOA Fee Frequency
Monthly
Complex Amenities
Community Pool, Playground
Listing Agent
Eric Ciotola
Redfin Corporation
License #: 02144910
Phone: –
Co-Listing Agent
Marcia Sattelmaier
Redfin Corporation
License #: 01971548
Phone: (951) 704-6657
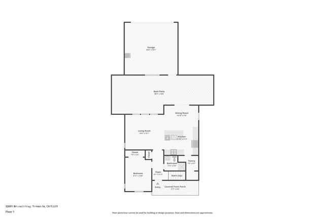
32691 Brunello Way is a Single Family Residence in Temecula, CA 92591. This 1,691 square foot property sits on a 1691 Acres Lot and features 4 bedrooms & 3 full bathrooms. It is currently priced at $665,000 and was built in 2023. This address can also be written as 32691 Brunello Way, Temecula, CA 92591.
©2026 California Regional MLS. All rights reserved. All data, including all measurements and calculations of area, is obtained from various sources and has not been, and will not be, verified by broker or MLS. All information should be independently reviewed and verified for accuracy. Properties may or may not be listed by the office/agent presenting the information. Information provided is for personal, non-commercial use by the viewer and may not be redistributed without explicit authorization from California Regional MLS.
Presently MLSListings.com displays Active, Contingent, Pending, and Recently Sold listings. Recently Sold listings are properties which were sold within the last three years. After that period listings are no longer displayed in MLSListings.com. Pending listings are properties under contract and no longer available for sale. Contingent listings are properties where there is an accepted offer, and seller may be seeking back-up offers. Active listings are available for sale.
This listing information is up-to-date as of April 15, 2026. For the most current information, please contact Eric Ciotola