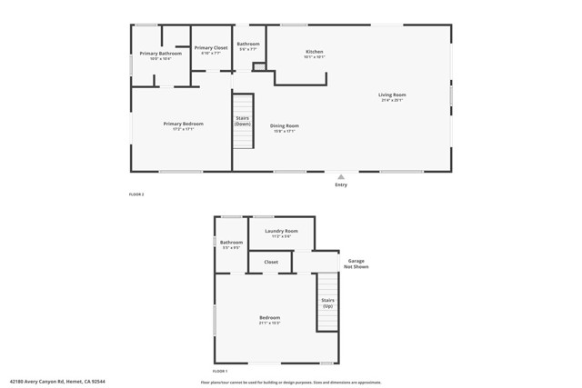
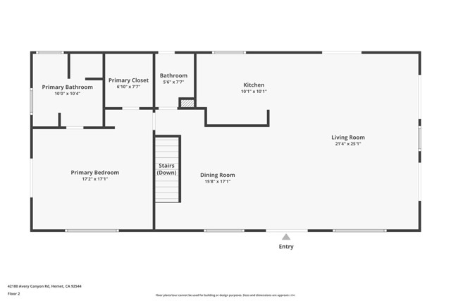
Welcome to your own secluded, picturesque retreat, where peaceful country living meets everyday convenience. Tucked behind a private gate shared by only nine homes, this custom-built residence is nestled on 5 serene acres in the hills of Hemet, offering privacy, natural beauty, and a true escape from the hustle of city life, yet still just minutes to shopping and dining, and a little over 20 miles to Temecula. This unique home is rich with natural rustic charm, featuring stunning cedar ceilings, beautiful tile flooring throughout, and a welcoming living room centered around a top-of-the-line wood-burning stove. The thoughtfully designed floor plan includes two spacious ensuite bedrooms, each with its own private bathroom, ideal for comfort, guests, or multigenerational living. The gourmet kitchen is both functional and inviting, highlighting tile countertops, gorgeous cabinetry, and modern stainless-steel appliances, including a double oven, perfect for entertaining or everyday living. Step outside to an 1,100 square foot wraparound deck, where you can relax and take in breathtaking views of mature trees, abundant wildlife, and a seasonal stream that enhances the property’s tranquil setting. Below the home, an 884 square foot garage/workshop provides ample space for vehicles, hob
MLS #
CRSW26032060
MLS Source
California Regional MLS
Days on Site
1
Bedrooms
Ground Floor Bedroom
Kitchen
Other
Appliances
Dishwasher, Garbage Disposal, Hood Over Range, Microwave, Other, Oven - Double, Oven - Electric, Oven Range - Built-In, Oven Range - Gas
Dining Room
Breakfast Bar, Other
Family Room
Other, Separate Family Room
Fireplace
Free Standing, Living Room, Wood Burning
Laundry
In Laundry Room, Other
Cooling
Ceiling Fan, Central Forced Air, Central Forced Air - Electric
Heating
Central Forced Air
Roof
Composition
Pool
None
Horse Property
Yes
Garage/Parking
Carport, Covered Parking, Garage, Other, Garage: 2 Car(s)
Elementary District
Hemet Unified
High School District
Hemet Unified
Sewer
Septic Tank
Water
Well
HOA Fee
$0
42180 Avery Canyon is a Single Family Residence in Hemet, CA 92544. This 2,028 square foot property sits on a 4.71 Acres Lot and features 2 bedrooms & 2 full and 1 partial bathrooms. It is currently priced at $550,000 and was built in 1999. This address can also be written as 42180 Avery Canyon, Hemet, CA 92544.
©2026 California Regional MLS. All rights reserved. All data, including all measurements and calculations of area, is obtained from various sources and has not been, and will not be, verified by broker or MLS. All information should be independently reviewed and verified for accuracy. Properties may or may not be listed by the office/agent presenting the information. Information provided is for personal, non-commercial use by the viewer and may not be redistributed without explicit authorization from California Regional MLS.
Presently MLSListings.com displays Active, Contingent, Pending, and Recently Sold listings. Recently Sold listings are properties which were sold within the last three years. After that period listings are no longer displayed in MLSListings.com. Pending listings are properties under contract and no longer available for sale. Contingent listings are properties where there is an accepted offer, and seller may be seeking back-up offers. Active listings are available for sale.
This listing information is up-to-date as of February 14, 2026. For the most current information, please contact Jennifer Murphy