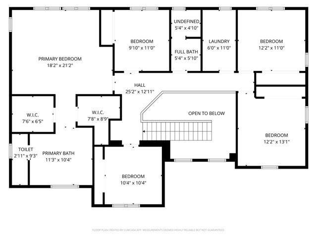
Welcome home to this beautifully upgraded, turn-key pool and spa property in the highly desirable Morningstar One community. This bright and spacious 6-bedroom, 3-bath home offers an exceptional layout with room for everyone, all within the highly regarded Temecula Valley Unified School District. Step inside to an open and inviting floor plan featuring a main-floor multi-generational suite conveniently located next to a full bathroom, ideal for guests, extended family, or private office space. The gourmet kitchen boasts a large island, double oven, extensive cabinetry, and upgraded appliances, all opening to a generous family room with views of the backyard. The oversized primary suite includes two walk-in closets and a spa-like ensuite bathroom with a soaking tub, separate shower, and dual sinks. Upstairs are four additional bedrooms, each with ceiling fans and ample closet space, plus a full bathroom. Enjoy resort-style living in the private backyard with no rear neighbors, a beautiful pool and spa, a recently installed pool heater, well-maintained pool equipment, lush landscaping, and a pergola spanning nearly the length of the home, perfect for relaxing or entertaining. Additional upgrades include dual-zone air conditioning with separate units for each floor, T
MLS #
CRSW25267037
MLS Source
California Regional MLS
Days on Site
7
Bedrooms
Ground Floor Bedroom, Primary Suite/Retreat
Appliances
Built-in BBQ Grill, Dishwasher, Ice Maker, Microwave, Oven - Double, Refrigerator, Dryer, Washer
Family Room
Other
Fireplace
Living Room
Cooling
Ceiling Fan, Central Forced Air
Heating
Central Forced Air
Roof
Tile
Pool
Pool - Yes, Spa - Private
Garage/Parking
Garage, Gate/Door Opener, Other, Garage: 2 Car(s)
Elementary District
Temecula Valley Unified
High School District
Temecula Valley Unified
HOA Fee
$14
HOA Fee Frequency
Monthly
Complex Amenities
Playground
35181 Begonia Ln is a Single Family Residence in Winchester, CA 92596. This 2,947 square foot property sits on a 7,841 Sq Ft Lot and features 6 bedrooms & 3 full bathrooms. It is currently priced at $785,000 and was built in 2004. This address can also be written as 35181 Begonia Ln, Winchester, CA 92596.
©2025 California Regional MLS. All rights reserved. All data, including all measurements and calculations of area, is obtained from various sources and has not been, and will not be, verified by broker or MLS. All information should be independently reviewed and verified for accuracy. Properties may or may not be listed by the office/agent presenting the information. Information provided is for personal, non-commercial use by the viewer and may not be redistributed without explicit authorization from California Regional MLS.
Presently MLSListings.com displays Active, Contingent, Pending, and Recently Sold listings. Recently Sold listings are properties which were sold within the last three years. After that period listings are no longer displayed in MLSListings.com. Pending listings are properties under contract and no longer available for sale. Contingent listings are properties where there is an accepted offer, and seller may be seeking back-up offers. Active listings are available for sale.
This listing information is up-to-date as of December 15, 2025. For the most current information, please contact Amy Sotis, (763) 245-7221