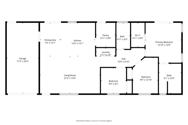
Built in 2020 and set on a spacious 0.82-acre lot, this designed Paradise home offers modern comfort, room to spread out, and a year-round creek with a charming walking bridge. With 1,388 sq. ft. of living space, this 3-bedroom, 2-bathroom home blends thoughtful details with a layout designed for everyday living. The charm begins at the inviting front porch. A unique Dutch-style front door allows the top half to open independently, letting in fresh air and light, while a ceiling outlet above the porch makes it easy to add a little extra magic during the holidays. Inside, the home opens to a bright living space where the open layout connects the living room, dining area, and kitchen. A tray ceiling with inset lighting draws the eye upward while wood-look tile flooring runs throughout the home, tying the spaces together with both durability and style. The kitchen sits at the center of it all with stainless appliances including a commercial-style gas range, generous counter space, and a large movable island that can shift to fit the way you cook and entertain. Just beyond the kitchen is a spacious pantry with shelving, exterior access, and a convenient dog door. Down the hall are two guest bedrooms, a full bathroom, and a laundry closet with included washer and dryer. At the end of
MLS #
CRSN26048191
MLS Source
California Regional MLS
Days on Site
5
Bedrooms
Primary Suite/Retreat
Kitchen
Exhaust Fan, Pantry
Appliances
Dishwasher, Exhaust Fan, Garbage Disposal, Hood Over Range, Microwave, Other, Oven - Gas, Oven - Self Cleaning, Oven Range, Oven Range - Gas, Refrigerator, Dryer, Washer
Dining Room
In Kitchen, Other
Fireplace
None
Laundry
In Closet, Other
Cooling
Ceiling Fan, Central Forced Air
Heating
Central Forced Air
Roof
Composition
Foundation
Concrete Perimeter
Pool
None
Garage/Parking
Garage, Gate/Door Opener, Other, Storage - RV, Garage: 1 Car(s)
Elementary District
Paradise Unified
High School District
Paradise Unified
Sewer
Septic Tank
Water
Other
HOA Fee
$0
5600 Scottwood Rd is a Single Family Residence in Paradise, CA 95969. This 1,388 square foot property sits on a 0.82 Acres Lot and features 3 bedrooms & 2 full bathrooms. It is currently priced at $369,000 and was built in 2020. This address can also be written as 5600 Scottwood Rd, Paradise, CA 95969.
©2026 California Regional MLS. All rights reserved. All data, including all measurements and calculations of area, is obtained from various sources and has not been, and will not be, verified by broker or MLS. All information should be independently reviewed and verified for accuracy. Properties may or may not be listed by the office/agent presenting the information. Information provided is for personal, non-commercial use by the viewer and may not be redistributed without explicit authorization from California Regional MLS.
Presently MLSListings.com displays Active, Contingent, Pending, and Recently Sold listings. Recently Sold listings are properties which were sold within the last three years. After that period listings are no longer displayed in MLSListings.com. Pending listings are properties under contract and no longer available for sale. Contingent listings are properties where there is an accepted offer, and seller may be seeking back-up offers. Active listings are available for sale.
This listing information is up-to-date as of March 09, 2026. For the most current information, please contact Alisha Simpkins