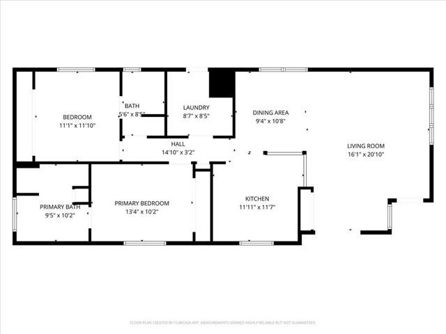
Well maintained 2-bedroom, 2-bath manufactured home located in a River Oaks senior park where you own your own land! Enjoy low monthly HOA dues of just $105, which include access to the community pool, water, sewer, and clubhouse. Inside, you’ll find a spacious great room perfect for comfortable living and entertaining, complete with blackout shades for added privacy and comfort. The kitchen offers a convenient breakfast bar, and there’s a dedicated laundry/mud room for storage and everyday functionality. The main bath features both a walk-in tub and separate shower, along with a dual-sink vanity. Covered carport, storage shed, inviting front deck, and a low-maintenance yard, ideal for easy, relaxed living.
MLS #
CRSN26039470
MLS Source
California Regional MLS
Days on Site
22
Appliances
Dishwasher, Garbage Disposal, Hood Over Range, Microwave, Other, Refrigerator
Flooring
Laminate
Laundry
Other
Cooling
Central Forced Air
Heating
Central Forced Air
Roof
Composition
Pool
Community Facility, In Ground
Garage/Parking
Carport, Other, Garage: 1 Car(s)
High School District
Red Bluff Joint Union High
Unit Levels
One
HOA Fee
$0
350 Gilmore Rd 16 is a Manufactured In Park in Red Bluff, CA 96080. This 1,440 square foot property sits on a 0 Sq Ft Lot and features 2 bedrooms & 2 full bathrooms. It is currently priced at $199,000 and was built in 1981. This address can also be written as 350 Gilmore Rd #16, Red Bluff, CA 96080.
©2026 California Regional MLS. All rights reserved. All data, including all measurements and calculations of area, is obtained from various sources and has not been, and will not be, verified by broker or MLS. All information should be independently reviewed and verified for accuracy. Properties may or may not be listed by the office/agent presenting the information. Information provided is for personal, non-commercial use by the viewer and may not be redistributed without explicit authorization from California Regional MLS.
Presently MLSListings.com displays Active, Contingent, Pending, and Recently Sold listings. Recently Sold listings are properties which were sold within the last three years. After that period listings are no longer displayed in MLSListings.com. Pending listings are properties under contract and no longer available for sale. Contingent listings are properties where there is an accepted offer, and seller may be seeking back-up offers. Active listings are available for sale.
This listing information is up-to-date as of March 11, 2026. For the most current information, please contact Barbara Dancel, (530) 529-2700