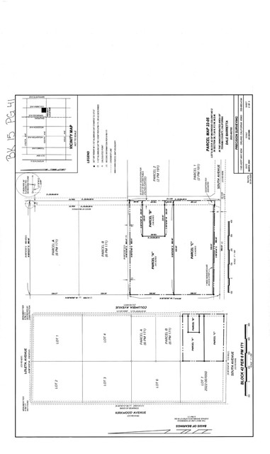
Zoned M-1 Light Industrial. Opportunity to acquire Parcel A, consisting of approximately 3.61 flat, usable acres, located at 3781 Columbia Avenue in Corning. Please note: Tehama County has not yet updated the newly created parcel numbers. The property for sale is the U-shaped parcel located behind the existing residence and does not include the home. The original 8.58-acre parcel has been split into three separate parcels. This offering is for Parcel A only. Zoned M-1, this property offers a range of potential commercial and industrial uses, subject to buyer verification with Tehama County. The parcel is generally level and accessible, with the south side open and driveable and the north side secured by gate. A drainage ditch runs through a portion of the property. With visibility from Highway 99 and convenient access to Columbia Avenue, this parcel may present opportunities for various industrial or commercial applications consistent with M-1 zoning. Buyer to verify zoning, allowable uses, utilities, access, and all development requirements with the appropriate governing agencies.
MLS #
CRSN26038397
MLS Source
California Regional MLS
Days on Site
21
Fencing
ChainLink
Lot Description
Grade - Level
HOA Fee
$0
Zoning
LZ, LL
3781 Columbia is in Corning, CA 96021. This Land is currently priced at $190,000. This address can also be written as 3781 Columbia, Corning, CA 96021.
©2026 California Regional MLS. All rights reserved. All data, including all measurements and calculations of area, is obtained from various sources and has not been, and will not be, verified by broker or MLS. All information should be independently reviewed and verified for accuracy. Properties may or may not be listed by the office/agent presenting the information. Information provided is for personal, non-commercial use by the viewer and may not be redistributed without explicit authorization from California Regional MLS.
Presently MLSListings.com displays Active, Contingent, Pending, and Recently Sold listings. Recently Sold listings are properties which were sold within the last three years. After that period listings are no longer displayed in MLSListings.com. Pending listings are properties under contract and no longer available for sale. Contingent listings are properties where there is an accepted offer, and seller may be seeking back-up offers. Active listings are available for sale.
This listing information is up-to-date as of February 20, 2026. For the most current information, please contact Jenna Johnson