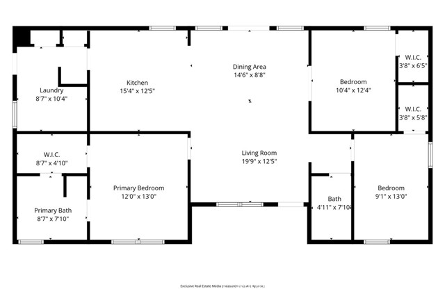
Tucked near the beauty and recreation of Lake Oroville, this well-maintained 3 bedroom, 2 bath manufactured home offers comfort, space, and functionality in a peaceful setting. Vaulted ceilings and large windows fill the home with natural light, creating an open and airy feel while showcasing views of the surrounding foothills and mature trees across the street. The open-concept layout flows seamlessly from the living area into the kitchen, which features granite countertops, glass front cabinetry, and ample storage perfect for everyday living or entertaining. The private primary suite includes a spacious walk through closet, soaking tub, and separate shower, offering a relaxing retreat at the end of the day. Two additional bedrooms also feature walk-in closets. Enjoy the convenience of an indoor laundry room with extra storage, plus ceiling fans throughout for added comfort. Step outside to covered front and back decks, ideal for enjoying the peaceful outdoor setting year round. A large detached two car garage with built-in cabinets provides excellent storage and workspace. Located just minutes from Lake Oroville, hiking trails, fishing, and camping, this home offers the perfect blend of comfort, functionality, and outdoor lifestyle. Come take a look and see all this
MLS #
CRSN26021979
MLS Source
California Regional MLS
Days on Site
1
Bedrooms
Ground Floor Bedroom, Primary Suite/Retreat
Kitchen
Pantry
Appliances
Dishwasher, Microwave, Other, Oven - Electric, Refrigerator, Dryer, Washer
Laundry
In Laundry Room, Other
Cooling
Central Forced Air
Heating
Central Forced Air
Roof
Composition
Pool
Community Facility
Garage/Parking
Other, Garage: 2 Car(s)
High School District
Oroville Union High
Unit Levels
One
HOA Fee
$775
HOA Fee Frequency
Monthly
Complex Amenities
Club House, Community Pool
Listing Agent
Alisha Fickert
Keller Williams Realty Chico Area
License #: 01764899
Phone: (530) 809-3474
Co-Listing Agent
Keith Fickert
Keller Williams Realty Chico Area
License #: 02098476
Phone: –
427 Summerwood Pkwy is a Manufactured In Park in Oroville, CA 95966. This 1,352 square foot property sits on a – Sq Ft Lot and features 3 bedrooms & 2 full bathrooms. It is currently priced at $125,000 and was built in 2000. This address can also be written as 427 Summerwood Pkwy, Oroville, CA 95966.
©2026 California Regional MLS. All rights reserved. All data, including all measurements and calculations of area, is obtained from various sources and has not been, and will not be, verified by broker or MLS. All information should be independently reviewed and verified for accuracy. Properties may or may not be listed by the office/agent presenting the information. Information provided is for personal, non-commercial use by the viewer and may not be redistributed without explicit authorization from California Regional MLS.
Presently MLSListings.com displays Active, Contingent, Pending, and Recently Sold listings. Recently Sold listings are properties which were sold within the last three years. After that period listings are no longer displayed in MLSListings.com. Pending listings are properties under contract and no longer available for sale. Contingent listings are properties where there is an accepted offer, and seller may be seeking back-up offers. Active listings are available for sale.
This listing information is up-to-date as of February 01, 2026. For the most current information, please contact Alisha Fickert, (530) 809-3474