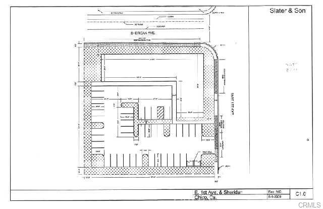
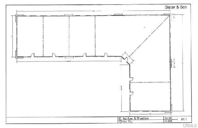
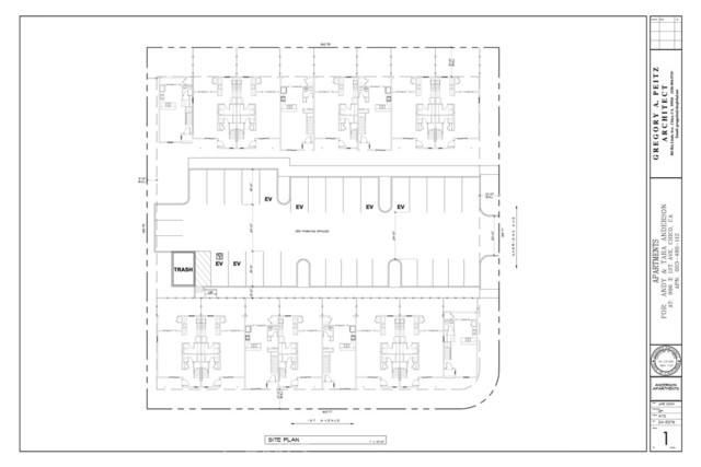
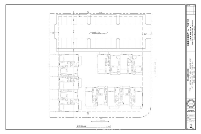
Arguably one of the best corner lots in Chico for traffic count and visibility! Near the intersection of E 1st Avenue and Hwy 99. Power onsite and city services on street. The property is zoned OR (Office Residential) and is primarily intended to implement the Office Mixed Use land use designation. Permitted uses can include: medical offices, churches, fitness clubs, museums, schools, assisted living, live/work, convalescent care homes, drug stores/pharmacies, grocery stores, restaurants, banks, bed and breakfast, day care facilities, financial services, community gardens, dental offices, medical services, and more. Photos include a floor plan concept similar to the location at 1350 E 9th Street in Chico, which can be for single tenant or multi-tenant. With a Use Permit, you may build an apartment complex and photos have been included for that concept as well.
MLS #
CRSN25277667
MLS Source
California Regional MLS
Days on Site
22
Water
Other
HOA Fee
$0
Zoning
LV
996 E 1st is in Chico, CA 95926. This Land is currently priced at $549,000. This address can also be written as 996 E 1st, Chico, CA 95926.
©2026 California Regional MLS. All rights reserved. All data, including all measurements and calculations of area, is obtained from various sources and has not been, and will not be, verified by broker or MLS. All information should be independently reviewed and verified for accuracy. Properties may or may not be listed by the office/agent presenting the information. Information provided is for personal, non-commercial use by the viewer and may not be redistributed without explicit authorization from California Regional MLS.
Presently MLSListings.com displays Active, Contingent, Pending, and Recently Sold listings. Recently Sold listings are properties which were sold within the last three years. After that period listings are no longer displayed in MLSListings.com. Pending listings are properties under contract and no longer available for sale. Contingent listings are properties where there is an accepted offer, and seller may be seeking back-up offers. Active listings are available for sale.
This listing information is up-to-date as of December 18, 2025. For the most current information, please contact Tara Anderson