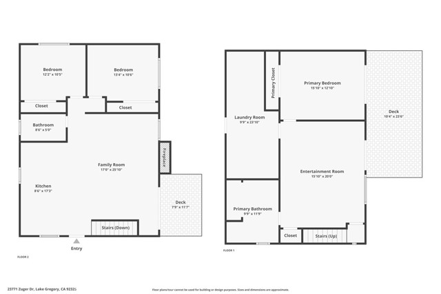
Welcome to this inviting three-bedroom, two full-bathroom home nestled among the pines of Crestline, offering 1,872 sq ft of living space on a 6,350 sq ft lot. Designed for comfort and versatility, the home features a desirable south facing orientation with multiple decks to enjoy the year round sunshine and tranquil forest views, and a completely Level 3 car parking deck attached to the property. Step inside to a spacious family room where soaring wood-beamed ceilings, tongue and groove wood paneling, and a stunning rock cladded center fireplace create a warm mountain ambiance. Just off the main living area, double doors open to a covered upper patio...perfect for relaxing or entertaining. The kitchen offers ample cabinetry, updated lighting, and included appliances. Upstairs, you’ll find two cozy bedrooms, each with ceiling fans, and a full bathroom that serves the level. Downstairs extends the living potential with a large game room currently outfitted with a pool table and dart area, with another opening to a second expansive south-facing deck. The lower level also features the primary suite with charming wood cladded walls, a ceiling fan, and a beautifully updated bath showcasing a subway tiled soaking tub and separate shower. Convenient laundry room access leads direc
MLS #
CRSB26000954
MLS Source
California Regional MLS
Days on Site
22
Bedrooms
Ground Floor Bedroom, Primary Suite/Retreat
Kitchen
Other
Appliances
Dishwasher, Other, Oven - Gas, Oven Range - Gas
Dining Room
Dining Area in Living Room, Formal Dining Room, In Kitchen
Family Room
Other, Separate Family Room
Fireplace
Den, Family Room, Gas Starter, Living Room, Wood Burning
Laundry
In Laundry Room, Other
Cooling
Central Forced Air
Heating
Central Forced Air, Forced Air
Foundation
Pillar/Post/Pier, Raised
Pool
None
Style
Colonial, Cottage, Craftsman
Garage/Parking
Other, Parking Area, Parking Deck, Private / Exclusive, Garage: 0 Car(s)
Elementary District
Rim of the World Unified
High School District
Rim of the World Unified
HOA Fee
$0
Zoning
CF/RS-14M
Listing Agent
Tyler Kruse
First Team Real Estate
License #: 02045268
Phone: –
Co-Listing Agent
Andre Kruse
First Team Real Estate
License #: 02044830
Phone: (310) 606-0588
23771 Zuger Dr is a Single Family Residence in Crestline, CA 92325. This 1,872 square foot property sits on a 6,350 Sq Ft Lot and features 3 bedrooms & 2 full bathrooms. It is currently priced at $415,000 and was built in 1980. This address can also be written as 23771 Zuger Dr, Crestline, CA 92325.
©2026 California Regional MLS. All rights reserved. All data, including all measurements and calculations of area, is obtained from various sources and has not been, and will not be, verified by broker or MLS. All information should be independently reviewed and verified for accuracy. Properties may or may not be listed by the office/agent presenting the information. Information provided is for personal, non-commercial use by the viewer and may not be redistributed without explicit authorization from California Regional MLS.
Presently MLSListings.com displays Active, Contingent, Pending, and Recently Sold listings. Recently Sold listings are properties which were sold within the last three years. After that period listings are no longer displayed in MLSListings.com. Pending listings are properties under contract and no longer available for sale. Contingent listings are properties where there is an accepted offer, and seller may be seeking back-up offers. Active listings are available for sale.
This listing information is up-to-date as of January 21, 2026. For the most current information, please contact Tyler Kruse