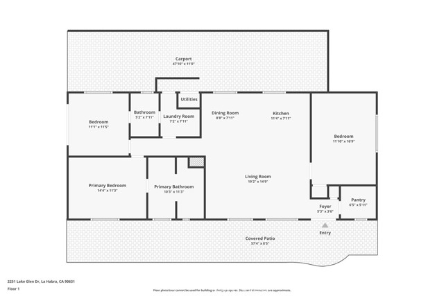
Welcome to Lake Park La Habra 55+ senior community. This is a recently completely remodeled rare 3 bedroom 2 bath home located along the green belt. Beautiful landscaped garden with a covered patio to enjoy. Inside the home features an open concept kitchen and family room, laundry room and pantry. Central air and heat, plumbing and roof were recent upgrades. Two car carport and storage on the west side of the home. Community features numerous walking paths, clubhouse, heated pool, inside spa and lake for fishing.
MLS #
CRPW25275397
MLS Source
California Regional MLS
Days on Site
0
Bedrooms
Ground Floor Bedroom
Kitchen
Pantry
Appliances
Dishwasher, Microwave, Other, Oven Range - Gas
Family Room
Other
Flooring
Laminate
Laundry
In Laundry Room, Other
Cooling
Central Forced Air
Heating
Central Forced Air
Roof
Composition
Foundation
Pillar/Post/Pier
Pool
Community Facility, Spa - Community Facility
Garage/Parking
Carport, Garage: 0 Car(s)
High School District
Fullerton Joint Union High
Unit Levels
One
HOA Fee
$0
Complex Amenities
Club House, Community Pool
2251 Lake Glen Dr is a Manufactured In Park in La Habra, CA 90631. This 1,536 square foot property sits on a 22.177 Acres Lot and features 3 bedrooms & 2 full bathrooms. It is currently priced at $339,000 and was built in 1975. This address can also be written as 2251 Lake Glen Dr, La Habra, CA 90631.
©2025 California Regional MLS. All rights reserved. All data, including all measurements and calculations of area, is obtained from various sources and has not been, and will not be, verified by broker or MLS. All information should be independently reviewed and verified for accuracy. Properties may or may not be listed by the office/agent presenting the information. Information provided is for personal, non-commercial use by the viewer and may not be redistributed without explicit authorization from California Regional MLS.
Presently MLSListings.com displays Active, Contingent, Pending, and Recently Sold listings. Recently Sold listings are properties which were sold within the last three years. After that period listings are no longer displayed in MLSListings.com. Pending listings are properties under contract and no longer available for sale. Contingent listings are properties where there is an accepted offer, and seller may be seeking back-up offers. Active listings are available for sale.
This listing information is up-to-date as of December 19, 2025. For the most current information, please contact Gerald Glomboske, (714) 928-6289