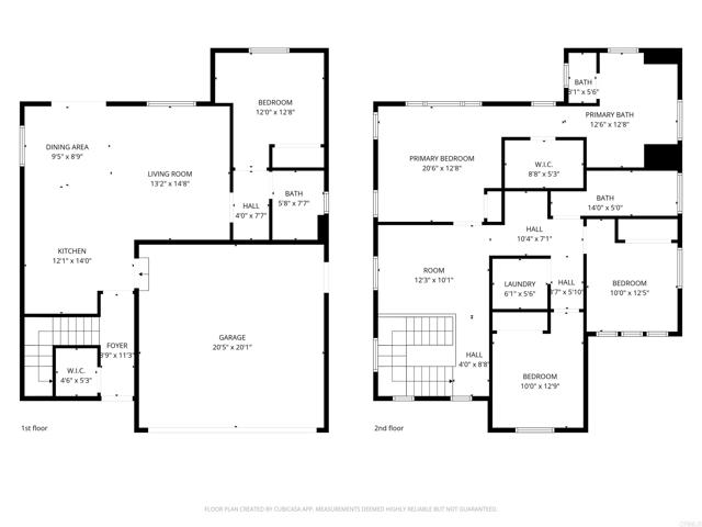
Set within one of Fallbrook’s most beloved neighborhoods - Horse Creek Ridge - 35461 Brown Galloway Ln offers more than beautiful interiors. It offers a feeling of community where neighbors walk their dogs until sunset, kids ride bikes, and weekend gatherings are held at the resort-style amenities. Thoughtfully designed in 2018, this corner lot home is complete with modern finishes, open concept living and energy-efficient solar. On the first floor, your kitchen is equipped with white cabinetry, granite countertops, stainless steel appliances and a functional eat-in island. A sizable living room flows into the dining room and outside to your private patio and yard, great for indoor/outdoor San Diego living. First floor bedroom with full hallway bathroom is perfect for guests or parents. Two-car garage features plenty of storage. Upstairs is a flexible loft space for office, playroom or movie watching, as well as 3 bedrooms, 2 bathrooms and laundry room. Primary bedroom contains walk-in closet and large ensuite with dual sink vanity, separate water closet, shower and spa-like bathtub. Step outside and you’ll quickly understand why Horse Creek Ridge is so special. Surrounded by an iconic mountain backdrop, residents enjoy multiple parks, scenic hiking and biking trails, a clubhouse
MLS #
CRPTP2600545
MLS Source
California Regional MLS
Days on Site
3
Bedrooms
Ground Floor Bedroom, Primary Suite/Retreat
Fireplace
None
Laundry
In Garage
Cooling
Central Forced Air
Pool
Community Facility
Garage/Parking
Garage: 2 Car(s)
Elementary District
Fallbrook Union Elementary
HOA Fee
$269
HOA Fee Frequency
Monthly
Complex Amenities
Barbecue Area, Club House, Community Pool, Playground
Zoning
R-1
35461 Brown Galloway Ln is a Single Family Residence in Fallbrook, CA 92028. This 1,911 square foot property sits on a 0 Sq Ft Lot and features 4 bedrooms & 3 full bathrooms. It is currently priced at $720,000 and was built in 2018. This address can also be written as 35461 Brown Galloway Ln, Fallbrook, CA 92028.
©2026 California Regional MLS. All rights reserved. All data, including all measurements and calculations of area, is obtained from various sources and has not been, and will not be, verified by broker or MLS. All information should be independently reviewed and verified for accuracy. Properties may or may not be listed by the office/agent presenting the information. Information provided is for personal, non-commercial use by the viewer and may not be redistributed without explicit authorization from California Regional MLS.
Presently MLSListings.com displays Active, Contingent, Pending, and Recently Sold listings. Recently Sold listings are properties which were sold within the last three years. After that period listings are no longer displayed in MLSListings.com. Pending listings are properties under contract and no longer available for sale. Contingent listings are properties where there is an accepted offer, and seller may be seeking back-up offers. Active listings are available for sale.
This listing information is up-to-date as of January 31, 2026. For the most current information, please contact Malena Boetel, (619) 535-8026