Stunning contemporary custom built waterfront residence located on Humboldt Island. Prime waterfront location with exceptional tri channel views. Encompassing 82 feet of expansive water frontage with a private 70-foot dock. Construction was just completed on this magnificent property that was taken down to the studs and completely rebuilt with all the finest finishes. As you enter the home you are greeted by a massive iron and glass pivot door that leads into the foyer with high volume ceilings. The beautiful water views are immediately in sight as your move into the living space with its open intuitive flowing floor plan. The Italian Bonelli bi fold doors stretch throughout the back side of the residence creating a seamless connection from the interior to the outdoor waterside deck. The great room style of this floor plan captures every inch of the waterfront views. Fabulous kitchen features a center island adorned with Taj Mahal quartzite counters. Rich white oak custom cabinetry with designer selected hardware offers ample storage and dual pantries. High end appliances featuring Thermador Freedom built in French door refrigerator and THOR Gordon Ramsey series double oven and range will be a true delight for the new homeowner. Rich white oak hardwood flooring complements the en
MLS #
CROC26020055
MLS Source
California Regional MLS
Bedrooms
Ground Floor Bedroom
Kitchen
Other, Pantry
Appliances
Dishwasher, Hood Over Range, Microwave, Other, Oven - Double, Oven - Gas, Oven Range - Built-In, Oven Range - Gas, Refrigerator
Dining Room
Breakfast Bar, Formal Dining Room, Other
Fireplace
None
Laundry
In Garage
Cooling
Central Forced Air
Heating
Central Forced Air
Foundation
Slab
Pool
None
Style
Contemporary
Garage/Parking
Garage, Garage: 2 Car(s)
High School District
Huntington Beach Union High
HOA Fee
$0
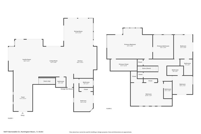
16471 Barnstable is a Single Family Residence in Huntington Beach, CA 92649. This 3,979 square foot property sits on a 5,166 Sq Ft Lot and features 5 bedrooms & 5 full and 1 partial bathrooms. It is currently priced at $6,500,000 and was built in 1965. This address can also be written as 16471 Barnstable, Huntington Beach, CA 92649.
©2026 California Regional MLS. All rights reserved. All data, including all measurements and calculations of area, is obtained from various sources and has not been, and will not be, verified by broker or MLS. All information should be independently reviewed and verified for accuracy. Properties may or may not be listed by the office/agent presenting the information. Information provided is for personal, non-commercial use by the viewer and may not be redistributed without explicit authorization from California Regional MLS.
Presently MLSListings.com displays Active, Contingent, Pending, and Recently Sold listings. Recently Sold listings are properties which were sold within the last three years. After that period listings are no longer displayed in MLSListings.com. Pending listings are properties under contract and no longer available for sale. Contingent listings are properties where there is an accepted offer, and seller may be seeking back-up offers. Active listings are available for sale.
This listing information is up-to-date as of February 26, 2026. For the most current information, please contact Debbie Neugebauer