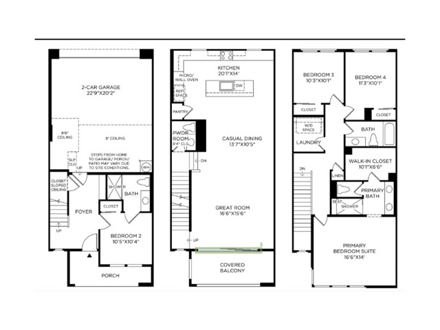
Welcome to the Elm Collection, a new community located in Great Park, which is close to Great Park Ice and the Great Park Sports. Homesite 57 is a new construction home that is situated in an interior location within the community. The Sorrel floorplan features 4 bedrooms, with 3.5 bathrooms, and is 2,132 sq. ft, with a 2-car garage. Upon entering the home, you are welcomed by an expansive foyer and secondary bedroom with a full bath on the first level. On the second level, you will see a chef inspired kitchen complete with generous counterspace, ample cabinetry, and a pantry with an open floor plan. Sliding doors on the second level open to a large, covered balcony. The third level offers a spacious primary suite with a luxurious ensuite bath and walk in closet and dual vanities. There are two additional well sized bedrooms, a full secondary bath, and a dedicated laundry room. Located in a desirable community close to shopping, dining, and the 5 freeway. Homesite 57 is under construction and has an estimated completion of Fall 2026. Photos provided are of the renderings for the Sorrel floor plan.
MLS #
CROC25278825
MLS Source
California Regional MLS
Days on Site
0
Bedrooms
Ground Floor Bedroom, Primary Suite/Retreat
Kitchen
Other, Pantry
Appliances
Dishwasher, Garbage Disposal, Hood Over Range, Microwave, Other, Oven - Double, Oven - Self Cleaning, Oven Range, Oven Range - Gas
Fireplace
None
Flooring
Other
Laundry
In Laundry Room, Other, Upper Floor
Cooling
Central Forced Air, Central Forced Air - Electric, Central Forced Air - Gas, Other
Heating
Electric, Heat Pump, Other, Solar
Roof
Concrete, Tile
Foundation
Slab
Pool
Community Facility, Other, Spa - Community Facility
Style
Contemporary
Garage/Parking
Common Parking Area, Garage, Gate/Door Opener, Garage: 2 Car(s)
Elementary District
Irvine Unified
High School District
Irvine Unified
HOA Fee
$560
HOA Fee Frequency
Monthly
Complex Amenities
Barbecue Area, Club House, Community Pool, Conference Facilities, Game Room, Picnic Area, Playground
Zoning
RES
136 Palisades is a Condominium in Irvine, CA 92618. This 2,132 square foot property sits on a – Sq Ft Lot and features 4 bedrooms & 3 full and 1 partial bathrooms. It is currently priced at $1,570,000 and was built in 2026. This address can also be written as 136 Palisades, Irvine, CA 92618.
©2025 California Regional MLS. All rights reserved. All data, including all measurements and calculations of area, is obtained from various sources and has not been, and will not be, verified by broker or MLS. All information should be independently reviewed and verified for accuracy. Properties may or may not be listed by the office/agent presenting the information. Information provided is for personal, non-commercial use by the viewer and may not be redistributed without explicit authorization from California Regional MLS.
Presently MLSListings.com displays Active, Contingent, Pending, and Recently Sold listings. Recently Sold listings are properties which were sold within the last three years. After that period listings are no longer displayed in MLSListings.com. Pending listings are properties under contract and no longer available for sale. Contingent listings are properties where there is an accepted offer, and seller may be seeking back-up offers. Active listings are available for sale.
This listing information is up-to-date as of December 22, 2025. For the most current information, please contact Jennifer Robertson