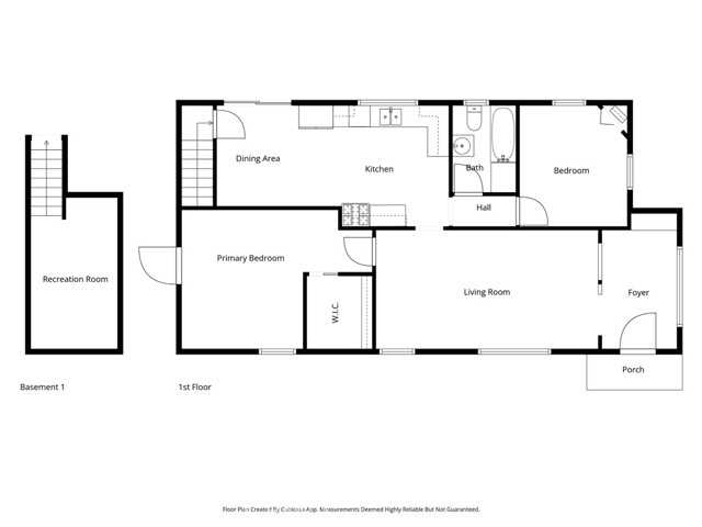
Set along a peaceful creek on approximately 0.4 acres, this rare Garden Farms property blends historic charm, modern functionality, and flexible living options in one of Atascadero’s most beloved neighborhoods. Originally built in 1917, the 2-bedroom, 1-bath main home offers a warm cottage feel with thoughtful updates throughout. The chef’s kitchen is a true highlight, featuring a built-in refrigerator and a Wolf 6-burner range—designed for those who love to cook and gather. Fresh exterior paint enhances the home’s curb appeal, while numerous upgrades provide comfort and confidence for the next owner. A small basement adds options for a root cellar, bonus room, or creative space. Outdoor living is just as inviting, with an outdoor kitchen ideal for entertaining under the oaks and enjoying the serene creekside setting. Mature fruit trees dot the property, adding both beauty and seasonal bounty. A Tesla charger provides added convenience for electric vehicle owners. Adding exceptional versatility is the detached 1-bedroom, 1-bath unit, built in 1950. With its own address, separate yard, storage shed, and chicken coop, it lives independently from the main home. The unit includes a full kitchen, laundry hookups, an electrical submeter, and a newly installed ceiling, allowing
MLS #
CRNS26033299
MLS Source
California Regional MLS
Days on Site
24
Bedrooms
Ground Floor Bedroom
Kitchen
Other
Appliances
Other, Oven - Double, Oven Range - Gas
Dining Room
In Kitchen
Fireplace
None
Flooring
Laminate
Laundry
Other
Cooling
Ceiling Fan, None
Heating
Wall Furnace
Roof
Composition
Foundation
Block
Pool
None
Garage/Parking
Other, Garage: 0 Car(s)
Elementary District
Atascadero Unified
High School District
Atascadero Unified
Sewer
Septic Tank
HOA Fee
$0
17480 Pine is a Single Family Residence in Atascadero, CA 93422. This 1,409 square foot property sits on a 0.4 Acres Lot and features 3 bedrooms & 2 full bathrooms. It is currently priced at $975,000 and was built in 1917. This address can also be written as 17480 Pine, Atascadero, CA 93422.
©2026 California Regional MLS. All rights reserved. All data, including all measurements and calculations of area, is obtained from various sources and has not been, and will not be, verified by broker or MLS. All information should be independently reviewed and verified for accuracy. Properties may or may not be listed by the office/agent presenting the information. Information provided is for personal, non-commercial use by the viewer and may not be redistributed without explicit authorization from California Regional MLS.
Presently MLSListings.com displays Active, Contingent, Pending, and Recently Sold listings. Recently Sold listings are properties which were sold within the last three years. After that period listings are no longer displayed in MLSListings.com. Pending listings are properties under contract and no longer available for sale. Contingent listings are properties where there is an accepted offer, and seller may be seeking back-up offers. Active listings are available for sale.
This listing information is up-to-date as of February 28, 2026. For the most current information, please contact Risa Brown, (805) 549-0899