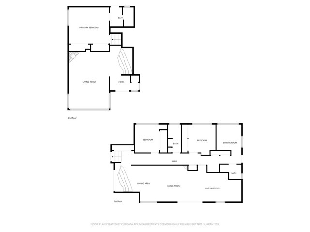
Truly iconic within the Mid-Century Modern tradition, this architectural treasure was designed by renowned architect J. Arthur Drielsma and is being offered for the first time in nearly 50 years—a rare opportunity to own a genuine design showpiece. Ideally positioned on a generous corner parcel, 395 Meadow Lane embodies timeless design and effortless flow. From the moment you arrive, the home’s commitment to its architectural roots is unmistakable, with floor-to-ceiling glass and clerestory windows that flood the interiors with natural light. A dramatic double-door entry welcomes you inside, where an interior fountain and pond set a serene tone. The raised living area features open-beam and tongue-and-groove ceilings, anchored by a striking fireplace that creates both warmth and visual impact. Just beyond, the private primary suite offers vaulted ceilings, generous closet space, and a well-appointed en suite bath. Two additional bedrooms, a full bath with period-appropriate tile and fixtures, and a dedicated office space provide flexibility for modern living. Behind the garage, a separate bonus area offers the potential for a studio, office, or additional bedroom. The open floor plan creates an impressive sense of volume, with seamless transitions from room to room across the
MLS #
CRLG26030390
MLS Source
California Regional MLS
Bedrooms
Ground Floor Bedroom, Primary Suite/Retreat
Kitchen
Other, Pantry
Appliances
Garbage Disposal, Other, Oven Range - Electric
Dining Room
Formal Dining Room, Other
Family Room
Other
Fireplace
Family Room, Gas Burning, Living Room
Laundry
Hookup - Gas Dryer, Other
Cooling
Central Forced Air
Heating
Forced Air, Gas
Roof
Composition
Foundation
Combination, Raised, Slab
Pool
Fenced, Gunite, In Ground, Pool - Yes
Garage/Parking
Garage, Other, Garage: 2 Car(s)
Elementary District
Newport-Mesa Unified
High School District
Newport-Mesa Unified
HOA Fee
$0
395 Meadow Ln is a Single Family Residence in Newport Beach, CA 92660. This 2,269 square foot property sits on a 8,800 Sq Ft Lot and features 3 bedrooms & 3 full bathrooms. It is currently priced at $2,800,000 and was built in 1962. This address can also be written as 395 Meadow Ln, Newport Beach, CA 92660.
©2026 California Regional MLS. All rights reserved. All data, including all measurements and calculations of area, is obtained from various sources and has not been, and will not be, verified by broker or MLS. All information should be independently reviewed and verified for accuracy. Properties may or may not be listed by the office/agent presenting the information. Information provided is for personal, non-commercial use by the viewer and may not be redistributed without explicit authorization from California Regional MLS.
Presently MLSListings.com displays Active, Contingent, Pending, and Recently Sold listings. Recently Sold listings are properties which were sold within the last three years. After that period listings are no longer displayed in MLSListings.com. Pending listings are properties under contract and no longer available for sale. Contingent listings are properties where there is an accepted offer, and seller may be seeking back-up offers. Active listings are available for sale.
This listing information is up-to-date as of March 31, 2026. For the most current information, please contact Matt Perry, (949) 233-8161