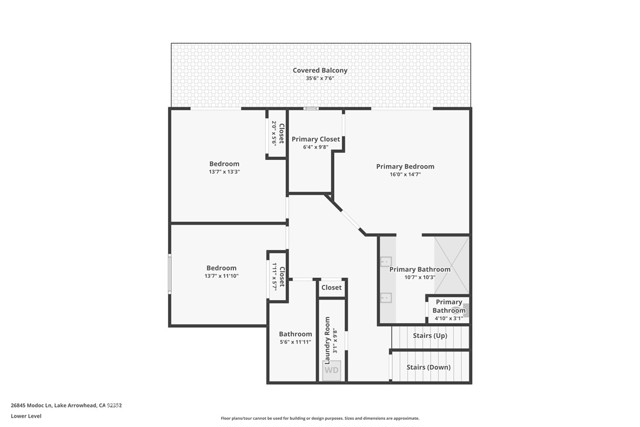
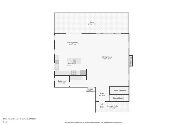
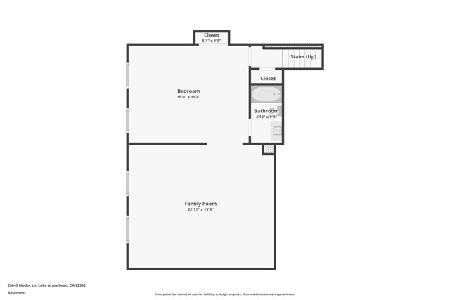
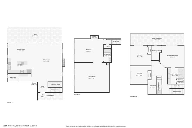
Designed for those who value craftsmanship, setting, and quiet distinction, this contemporary mountain lodge offers a refined take on Lake Arrowhead living. Set amid towering pines with full lake rights, the home balances architectural presence with a deep connection to its surroundings—ideal as both a full-time residence and a sophisticated retreat. The main living level is defined by volume and light, with soaring ceilings, expansive windows, and an open layout that frames the forest beyond while remaining grounded in warmth and scale. Thoughtful finishes and custom details throughout reflect a level of care that appeals to buyers who recognize quality without needing it announced. The primary suite is a true sanctuary, featuring a private deck positioned to capture sweeping panoramic views stretching from the Lake Arrowhead Country Club Golf Course to the Pinnacles—an iconic summit familiar to local hikers. Morning light, evening skies, and the subtle presence of nature define the experience. Below, the sound of a nearby seasonal waterfall drifting down from Brentwood Drive adds a rare and calming dimension, flowing into the canyon and onward toward the San Bernardino National Forest. Multiple outdoor spaces extend the living areas, offering natural settings for quiet
MLS #
CRIG26014613
MLS Source
California Regional MLS
Days on Site
10
Bedrooms
Ground Floor Bedroom, Primary Suite/Retreat
Appliances
Dishwasher, Garbage Disposal, Microwave, Other, Oven - Gas, Dryer, Washer
Dining Room
Breakfast Bar, Dining "L", Other
Family Room
Other
Fireplace
Living Room
Flooring
Laminate
Laundry
Hookup - Gas Dryer, Other
Cooling
Ceiling Fan, Central Forced Air
Heating
Central Forced Air
Roof
Composition
Pool
None
Garage/Parking
Garage, Gate/Door Opener, Side By Side, Garage: 2 Car(s)
Elementary District
Rim of the World Unified
High School District
Rim of the World Unified
HOA Fee
$0
26845 Modoc Ln is a Single Family Residence in Lake Arrowhead, CA 92352. This 3,040 square foot property sits on a 9,600 Sq Ft Lot and features 4 bedrooms & 3 full and 1 partial bathrooms. It is currently priced at $885,000 and was built in 2017. This address can also be written as 26845 Modoc Ln, Lake Arrowhead, CA 92352.
©2026 California Regional MLS. All rights reserved. All data, including all measurements and calculations of area, is obtained from various sources and has not been, and will not be, verified by broker or MLS. All information should be independently reviewed and verified for accuracy. Properties may or may not be listed by the office/agent presenting the information. Information provided is for personal, non-commercial use by the viewer and may not be redistributed without explicit authorization from California Regional MLS.
Presently MLSListings.com displays Active, Contingent, Pending, and Recently Sold listings. Recently Sold listings are properties which were sold within the last three years. After that period listings are no longer displayed in MLSListings.com. Pending listings are properties under contract and no longer available for sale. Contingent listings are properties where there is an accepted offer, and seller may be seeking back-up offers. Active listings are available for sale.
This listing information is up-to-date as of January 22, 2026. For the most current information, please contact THERESA GRANT, (909) 442-1345