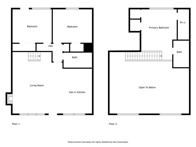
Here it sits, your quintessential "A-Frame" located in Lake Arrowhead with Lake Rights in a coveted neighborhood. built in 1964 this is the epitome of A-Frames, located in a cul-de-sac on a gradual downslope, near level lot, with lots of parking and close to the Tavern Bay Beach Club. With only one step up to the front door upon entering you'll be wowed by the soaring vaulted ceilings, captivating open space and flood of natural light. It almost feels effortless to glide through this space. On the main floor you'll find the living room, renovated kitchen, dining space, 2 bedrooms a main floor bath, and access to the back deck. Upstairs is a an open loft "primary suite" bedroom with full bath, secret nook, and the laundry/storage closet. The outside space is highly usable and you'll find little areas to sit and rest allowing you to take in the towering pine and oak trees. There is even a small shed out back that is currently bing used as an art space. Some of the renovations include, dual pain windows, front hardiebacker siding, light fixtures, paint and more. Home is equipped with central AC and comes furnished, minus sellers exclusions. This is a highly active STR, Don't let this one slip out of your hands.
MLS #
CRIG25278258
MLS Source
California Regional MLS
Days on Site
21
Bedrooms
Ground Floor Bedroom
Kitchen
Other
Appliances
Dishwasher, Microwave, Other, Oven - Gas, Oven Range - Gas, Refrigerator
Dining Room
In Kitchen
Fireplace
Living Room
Laundry
In Closet, Other
Cooling
Central Forced Air
Heating
Central Forced Air
Roof
Composition
Pool
None
Garage/Parking
Other, Garage: 0 Car(s)
Elementary District
Rim of the World Unified
High School District
Rim of the World Unified
HOA Fee
$0
987 Tirol Ln is a Single Family Residence in Lake Arrowhead, CA 92352. This 1,344 square foot property sits on a 9,440 Sq Ft Lot and features 3 bedrooms & 2 full bathrooms. It is currently priced at $735,000 and was built in 1964. This address can also be written as 987 Tirol Ln, Lake Arrowhead, CA 92352.
©2026 California Regional MLS. All rights reserved. All data, including all measurements and calculations of area, is obtained from various sources and has not been, and will not be, verified by broker or MLS. All information should be independently reviewed and verified for accuracy. Properties may or may not be listed by the office/agent presenting the information. Information provided is for personal, non-commercial use by the viewer and may not be redistributed without explicit authorization from California Regional MLS.
Presently MLSListings.com displays Active, Contingent, Pending, and Recently Sold listings. Recently Sold listings are properties which were sold within the last three years. After that period listings are no longer displayed in MLSListings.com. Pending listings are properties under contract and no longer available for sale. Contingent listings are properties where there is an accepted offer, and seller may be seeking back-up offers. Active listings are available for sale.
This listing information is up-to-date as of December 20, 2025. For the most current information, please contact Michelle Calkins