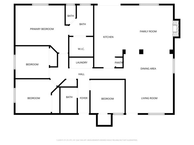
This move-in ready 4-bedroom, 2-bath home offers comfort, efficiency, and thoughtful upgrades throughout. The open floor plan creates a bright, inviting living space ideal for both everyday living and entertaining. The primary suite features a private ensuite bathroom and walk-in closet, while the additional bedrooms provide flexibility for family, guests, or a home office. Inside laundry is conveniently located in a hallway closet. The kitchen includes a dishwasher, gas stove, and a functional layout that flows seamlessly into the main living areas. Major upgrades completed in 2022 include new energy-efficient windows, a new back sliding door, and fully paid-off solar panels with a 22-year warranty — PAID SOLAR means immediate energy savings and long-term efficiency from day one. The 3-car garage provides direct access to both the home and backyard and is equipped with a 240V Level 2 EV charging outlet, allowing you to conveniently charge your electric vehicle overnight right from home. Step outside to enjoy a spacious covered patio, perfect for relaxing evenings or hosting gatherings year-round. The dedicated dog run offers a practical and secure space for pets. Central air and heat ensure comfort in every season. Inside, durable laminate flooring flows throughout the main livi
MLS #
CRCV26038171
MLS Source
California Regional MLS
Days on Site
2
Bedrooms
Ground Floor Bedroom, Primary Suite/Retreat
Appliances
Dishwasher, Microwave, Oven Range - Gas
Dining Room
Breakfast Bar, Formal Dining Room
Family Room
Other
Fireplace
Family Room, Gas Burning
Flooring
Laminate
Laundry
In Closet
Cooling
Ceiling Fan, Central Forced Air
Heating
Central Forced Air, Fireplace, Solar
Roof
Tile
Foundation
Slab
Pool
None
Garage/Parking
Other, Garage: 3 Car(s)
Elementary District
Adelanto Elementary
HOA Fee
$0
11537 11537 Winter Place is a Single Family Residence in Adelanto, CA 92301. This 1,647 square foot property sits on a 8,325 Sq Ft Lot and features 4 bedrooms & 2 full bathrooms. It is currently priced at $429,000 and was built in 1997. This address can also be written as 11537 11537 Winter Place, Adelanto, CA 92301.
©2026 California Regional MLS. All rights reserved. All data, including all measurements and calculations of area, is obtained from various sources and has not been, and will not be, verified by broker or MLS. All information should be independently reviewed and verified for accuracy. Properties may or may not be listed by the office/agent presenting the information. Information provided is for personal, non-commercial use by the viewer and may not be redistributed without explicit authorization from California Regional MLS.
Presently MLSListings.com displays Active, Contingent, Pending, and Recently Sold listings. Recently Sold listings are properties which were sold within the last three years. After that period listings are no longer displayed in MLSListings.com. Pending listings are properties under contract and no longer available for sale. Contingent listings are properties where there is an accepted offer, and seller may be seeking back-up offers. Active listings are available for sale.
This listing information is up-to-date as of February 22, 2026. For the most current information, please contact Victoria Maliszewski