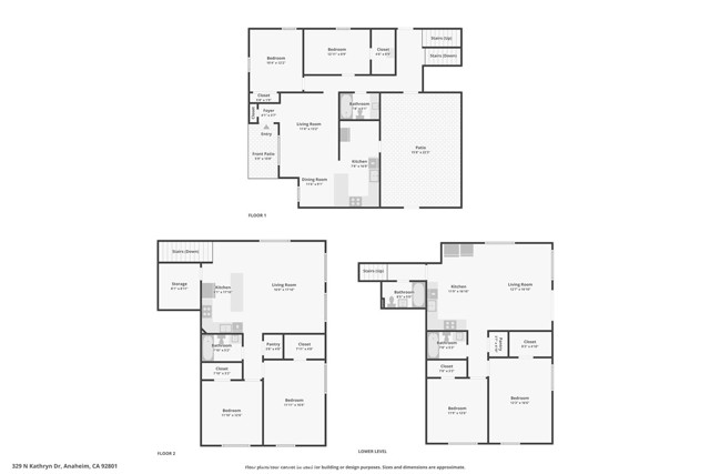
Welcome to 329 Kathryn Drive in Anaheim, a rare and versatile property designed for extended families, savvy investors, or anyone seeking flexible living under one roof. Ideally positioned just behind the 8th hole of Dad Miller Golf Course, this expansive residence offers space, privacy, and long-term potential. With approximately 6 bedrooms and 4 bathrooms, the home is thoughtfully arranged into three distinct living quarters: Front Wing: 2 bedrooms, 1 bathroom, full kitchen, and living area, ideal for in-laws, guests, or rental income. Rear Wing: Another 2-bedroom layout with kitchen and living space, plus access to a shared full bathroom in the common area. Upper Level: 2 bedrooms, 1 bathroom, wet bar, and elevated golf course views, a perfect private retreat, office suite, or additional income space. Significant additions completed in 2010 transformed this property into a TRUE MULTI-FUNCTIONAL residence. Whether you’re housing multiple generations, offsetting your mortgage with rental income, or creating separate work-from-home quarters. The backyard invites possibility. A spacious gazebo awaits your personal touch in addition to a flex patio space, with a separate entrance, for large family gatherings. The generous lot offers ample parking for up to 17 vehicles and RV
MLS #
CRCV26027510
MLS Source
California Regional MLS
Days on Site
4
Bedrooms
Ground Floor Bedroom, Other
Appliances
Refrigerator
Fireplace
None
Laundry
Hookup - Gas Dryer, In Garage
Cooling
Central Forced Air
Heating
Central Forced Air
Pool
None
Garage/Parking
Garage, Other, RV Access, Garage: 2 Car(s)
High School District
Anaheim Union High
HOA Fee
$0
329 N Kathryn is a Single Family Residence in Anaheim, CA 92801. This 3,152 square foot property sits on a 10,120 Sq Ft Lot and features 6 bedrooms & 3 full and 1 partial bathrooms. It is currently priced at $1,500,000 and was built in 1952. This address can also be written as 329 N Kathryn, Anaheim, CA 92801.
©2026 California Regional MLS. All rights reserved. All data, including all measurements and calculations of area, is obtained from various sources and has not been, and will not be, verified by broker or MLS. All information should be independently reviewed and verified for accuracy. Properties may or may not be listed by the office/agent presenting the information. Information provided is for personal, non-commercial use by the viewer and may not be redistributed without explicit authorization from California Regional MLS.
Presently MLSListings.com displays Active, Contingent, Pending, and Recently Sold listings. Recently Sold listings are properties which were sold within the last three years. After that period listings are no longer displayed in MLSListings.com. Pending listings are properties under contract and no longer available for sale. Contingent listings are properties where there is an accepted offer, and seller may be seeking back-up offers. Active listings are available for sale.
This listing information is up-to-date as of February 22, 2026. For the most current information, please contact Judith Beserra