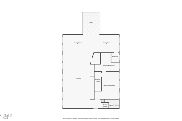
Structurally engineered and custom-built for strength, longevity, and flexibility, this exceptional home offers 2,700+/- sq. ft. of living space plus a 1,870+/- sq ft. finished workshop/garage on 22+/- private, usable acres surrounded by majestic redwoods and a year-round creek. Designed with a reverse floor plan to maximize light and views, the upper level features vaulted ceilings, exposed beams, skylights, rich hickory floors, and a spacious deck overlooking the forested landscape. The chef's kitchen is the centerpiece of this home with premium Viking appliances, an oversized 18' island, double ovens, a farmhouse sink, 10ft tall custom cabinetry, and a walk-in pantry--ideal for cooking for large gatherings, and entertaining. The primary bedroom is light-filled with a full bathroom and a walk-in closet. Downstairs includes two bedrooms, a full bath, a laundry room, and direct access to the expansive workshop, ideal for hobbies, vehicles, a home business, studio, gym, or future living expansion. The acreage offers trails through redwood groves, a year-round creek, open usable areas, multiple RV hookups with a bathhouse, and a high-producing well. RR-5 zoning, with potential RR-2, allows lot splits, additional homes, or ADU opportunities (buyer to verify), creating both lifestyle
MLS #
CRC1-11221
MLS Source
California Regional MLS
Days on Site
66
Bedrooms
Ground Floor Bedroom, Primary Suite/Retreat
Kitchen
Other, Pantry
Appliances
Dishwasher, Hood Over Range, Other, Oven - Double, Oven - Self Cleaning, Refrigerator
Dining Room
Breakfast Bar, Formal Dining Room, In Kitchen
Fireplace
None
Laundry
Other
Cooling
Ceiling Fan, None
Heating
Central Forced Air, Propane
Roof
Metal
Foundation
Concrete Perimeter, Slab
Pool
None
Style
Custom
Garage/Parking
Garage: 1 Car(s)
Sewer
Septic Tank
Water
Well
Zoning
RR5(2)
19400 Dorffi Rd is a Single Family Residence in Fort Bragg, CA 95437. This 2,716 square foot property sits on a 22 Acres Lot and features 3 bedrooms & 2 full and 1 partial bathrooms. It is currently priced at $1,625,000 and was built in 2022. This address can also be written as 19400 Dorffi Rd, Fort Bragg, CA 95437.
©2026 California Regional MLS. All rights reserved. All data, including all measurements and calculations of area, is obtained from various sources and has not been, and will not be, verified by broker or MLS. All information should be independently reviewed and verified for accuracy. Properties may or may not be listed by the office/agent presenting the information. Information provided is for personal, non-commercial use by the viewer and may not be redistributed without explicit authorization from California Regional MLS.
Presently MLSListings.com displays Active, Contingent, Pending, and Recently Sold listings. Recently Sold listings are properties which were sold within the last three years. After that period listings are no longer displayed in MLSListings.com. Pending listings are properties under contract and no longer available for sale. Contingent listings are properties where there is an accepted offer, and seller may be seeking back-up offers. Active listings are available for sale.
This listing information is up-to-date as of February 11, 2026. For the most current information, please contact Kira Meade, (707) 357-2194