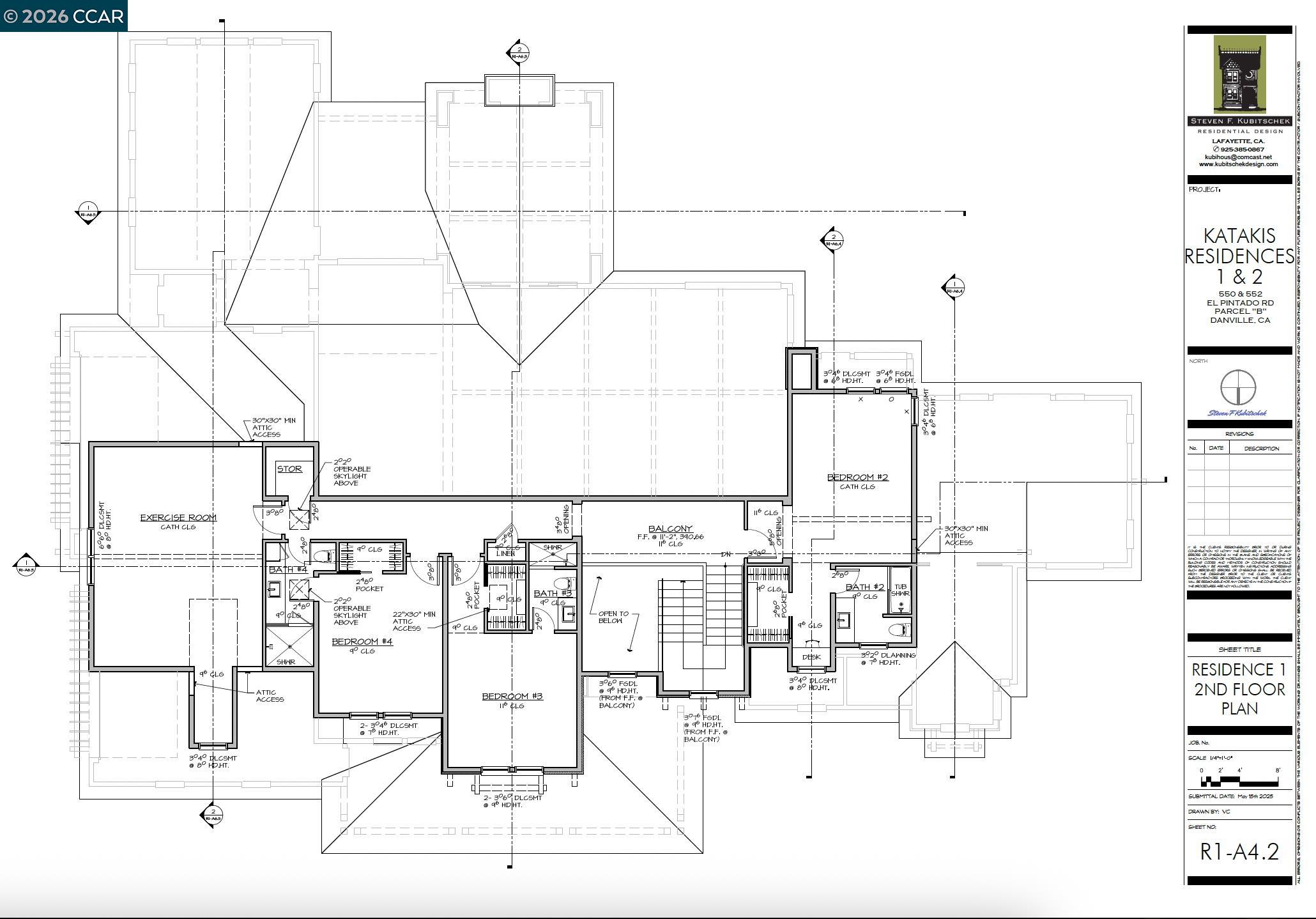
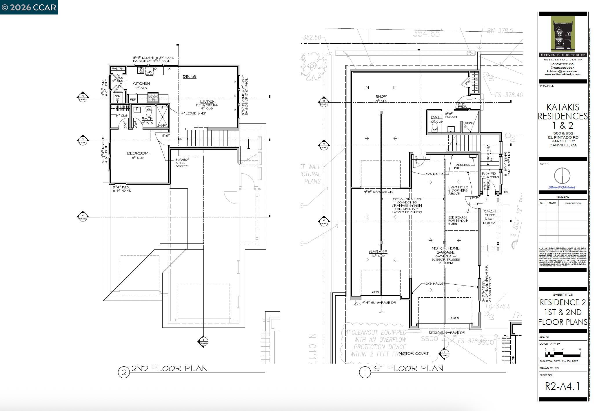
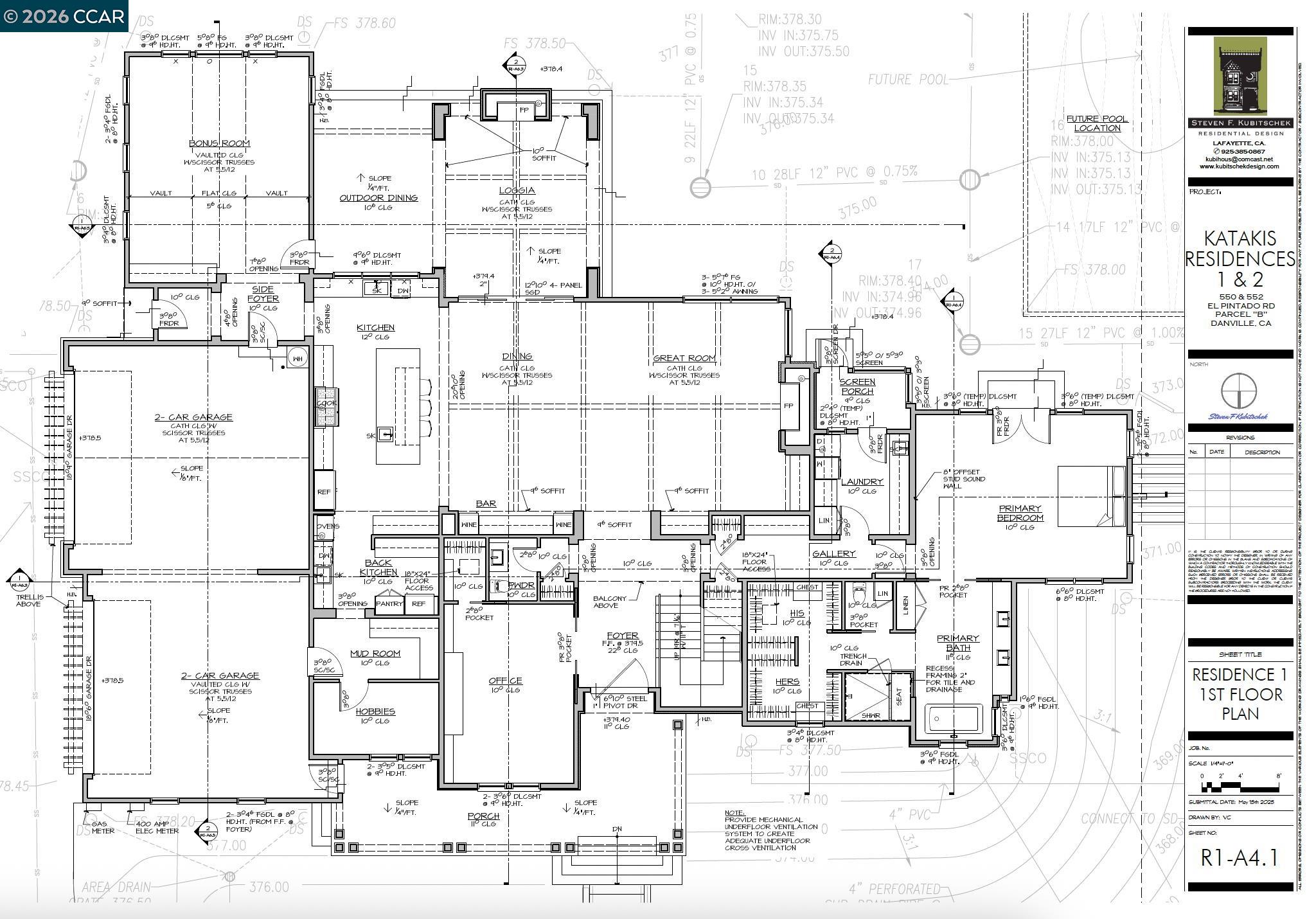
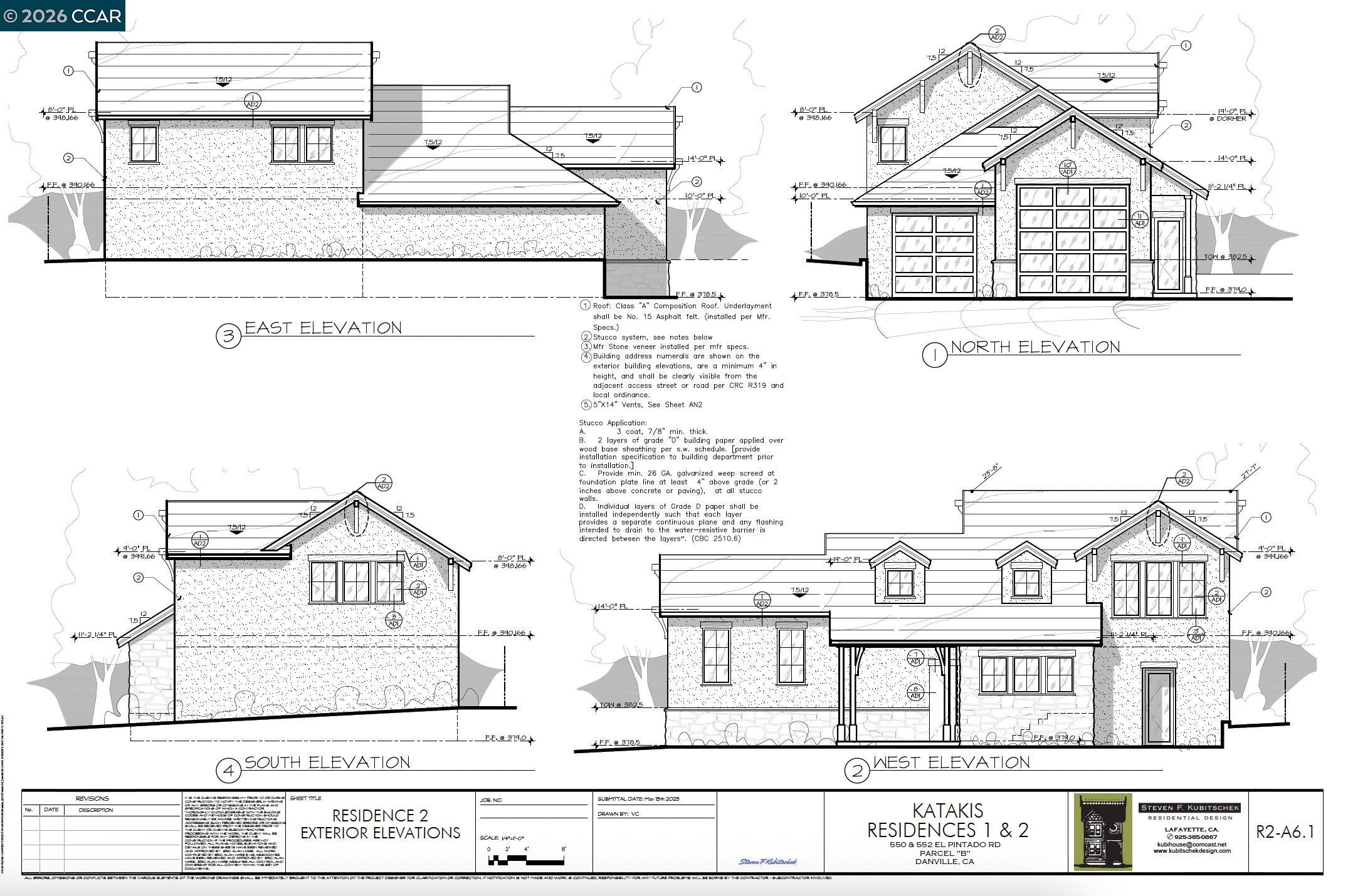
Build your custom estate in one of Danville’s most coveted settings. Located on prestigious El Pintado Loop, this rare ±¾+ acre parcel offers a private approach via a secluded drive and a beautifully positioned, nearly level homesite ideal for luxury living. Included in the sale are thoughtfully designed plans by renowned architect Steven Kubitschek for an approximately 5,500-square-foot custom residence plus a detached ADU, creating an exceptional opportunity to streamline the building process while delivering architectural distinction. The current owners envisioned this as their forever home and invested significant time and intention into creating a truly custom design. With plans complete and approvals secured, circumstances have shifted, offering a new family the chance to bring this vision to life. Surrounded by mature landscape and set for privacy, the lot provides a serene backdrop with ample space for outdoor living, resort-style amenities, and expansive entertaining areas. A unique offering combining premier location, privacy, and ready-to-build design in one of Danville’s most desirable enclaves.
MLS #
CC41125530
MLS Source
Contra Costa Association of Realtors
Days on Site
12
Development Status
Approved Building Plan, Other - Call Listing Agent, Preliminary Map, Site Plan
Lot Description
Corners Marked, Other
Utilities
None
Water
None
Zoning
R20
550 El Pintado is in Danville, CA 94526. This Land is currently priced at $1,595,000. This address can also be written as 550 El Pintado, Danville, CA 94526.
©2026 Contra Costa Association of Realtors. All rights reserved. All data, including all measurements and calculations of area, is obtained from various sources and has not been, and will not be, verified by broker or MLS. All information should be independently reviewed and verified for accuracy. Properties may or may not be listed by the office/agent presenting the information. Information provided is for personal, non-commercial use by the viewer and may not be redistributed without explicit authorization from Contra Costa Association of Realtors.
Presently MLSListings.com displays Active, Contingent, Pending, and Recently Sold listings. Recently Sold listings are properties which were sold within the last three years. After that period listings are no longer displayed in MLSListings.com. Pending listings are properties under contract and no longer available for sale. Contingent listings are properties where there is an accepted offer, and seller may be seeking back-up offers. Active listings are available for sale.
This listing information is up-to-date as of March 13, 2026. For the most current information, please contact Taso Tsakos, (925) 785-5419