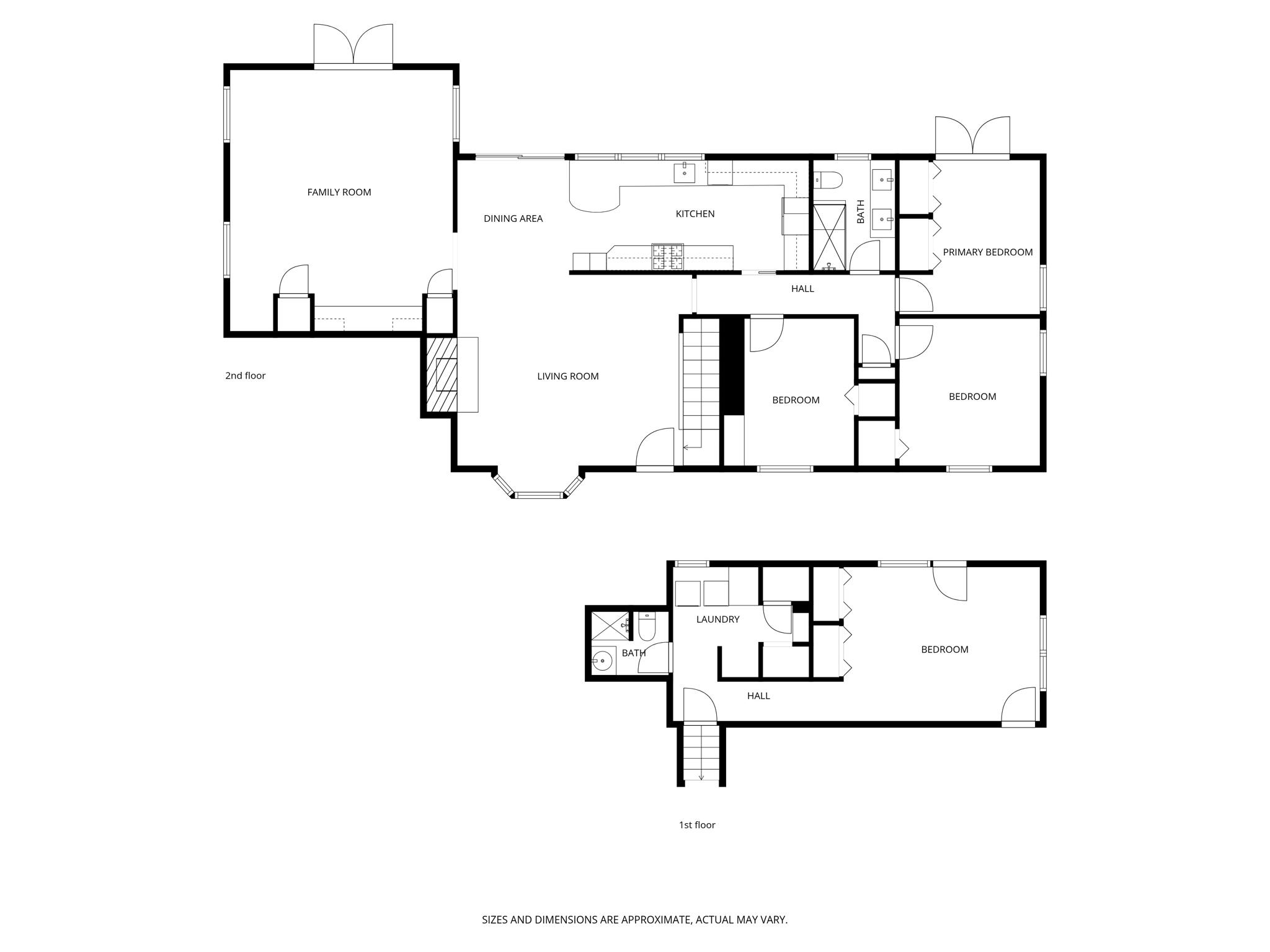
Quintessential Lafayette cottage-style elegance—generously scaled and beautifully refined. This captivating Burton Valley residence blends timeless architectural charm with thoughtful modern updates, creating a home that feels both inviting and elevated. The main level features gracious public rooms bathed in natural light, highlighted by rich hardwood floors and an effortless flow ideal for both everyday living and sophisticated entertaining. The remodeled kitchen is both stylish and functional, offering quality finishes and a seamless connection to the living spaces, while the separate family room impresses with dramatic open-beam ceilings and an airy, relaxed ambiance. Three well-appointed bedrooms and a tastefully remodeled bath complete this level with comfort and style.The lower level offers a spacious and versatile bedroom retreat—perfect for a private home office, guest suite, fitness studio, or easily convertible into a luxurious primary suite with spa-like potential. Outside, the grounds are equally compelling, w/ abundant yard space, a large newer deck for al fresco dining, and a flat lawn framed by a tranquil, sylvan backdrop for exceptional privacy and serenity. Well situated near the Trail and just moments from vibrant downtown Lafayette.
MLS #
CC41120444
MLS Source
Contra Costa Association of Realtors
Days on Site
22
Bathrooms
Double Sinks, Tile, Updated Bath(s), Window
Kitchen
Breakfast Bar, Countertop - Stone, Eat In Kitchen, Updated
Appliances
Dishwasher, Garbage Disposal, Microwave, Oven Range, Refrigerator, Dryer, Washer
Family Room
Separate Family Room
Fireplace
Insert, Living Room
Flooring
Carpet - Wall to Wall, Hardwood, Tile
Cooling
Central -1 Zone
Heating
Forced Air
Roof
Composition
Foundation
Slab, Crawl Space
Pool
None, Pool - No
Style
Ranch
Garage/Parking
Attached Garage, Garage, Garage: 2 Car(s)
Sewer
Public Sewer
Water
Public
3326 Walnut Lane is a Single Family Residence in Lafayette, CA 94549. This 1,943 square foot property sits on a 0.62 Acres Lot and features 4 bedrooms & 2 full bathrooms. It is currently priced at $1,595,000 and was built in 1950. This address can also be written as 3326 Walnut Lane, Lafayette, CA 94549.
©2026 Contra Costa Association of Realtors. All rights reserved. All data, including all measurements and calculations of area, is obtained from various sources and has not been, and will not be, verified by broker or MLS. All information should be independently reviewed and verified for accuracy. Properties may or may not be listed by the office/agent presenting the information. Information provided is for personal, non-commercial use by the viewer and may not be redistributed without explicit authorization from Contra Costa Association of Realtors.
Presently MLSListings.com displays Active, Contingent, Pending, and Recently Sold listings. Recently Sold listings are properties which were sold within the last three years. After that period listings are no longer displayed in MLSListings.com. Pending listings are properties under contract and no longer available for sale. Contingent listings are properties where there is an accepted offer, and seller may be seeking back-up offers. Active listings are available for sale.
This listing information is up-to-date as of January 20, 2026. For the most current information, please contact Kelly Crawford, (925) 998-5599