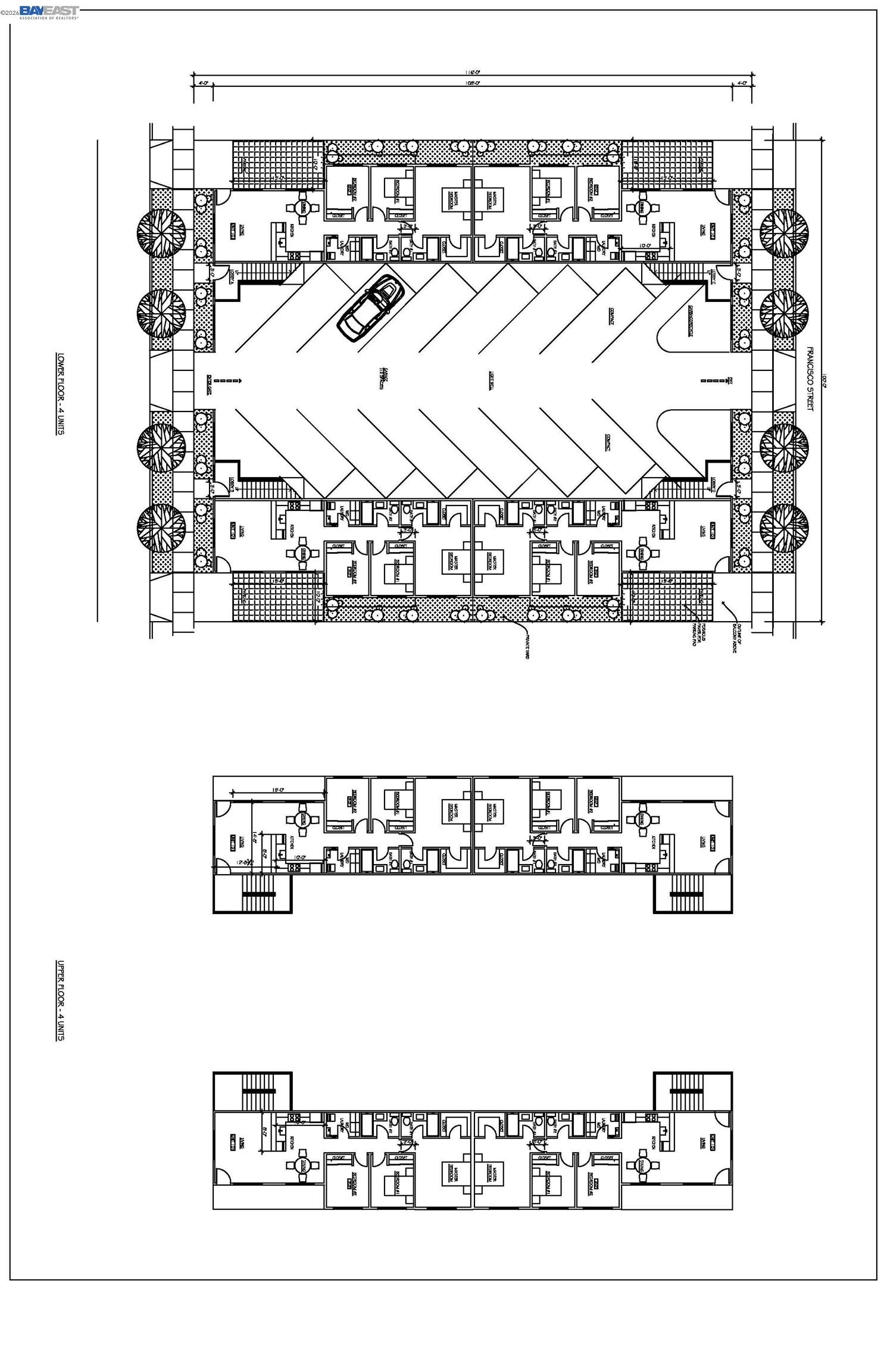
Prime high-density development opportunity with strong multifamily potential which is reported to allow up to 16 res units (buyer to verify). The owner/architect has suggested three options: a four-story, 13-unit apartment building with a ground-floor commercial space; eight three-story townhouses each with an ADU and an eight-unit condo concept with three-bedroom units. (See site plans in disclosures). Walking distance to B Street BART, providing excellent commuter access throughout the Bay Area, making it highly attractive to renters & condo buyers. Positioned near revitalizing Downtown Hayward, the site benefits from new mixed-use projects, restaurants, retail, and cultural amenities that continue to drive rental demand and long-term appreciation. Convenient access to I-880, I-580,&Mission Blvd (Hwy 238) ensures seamless connectivity to Silicon Valley, Oakland, and San Francisco. Near Cal State East Bay, a key enrollment driver supporting consistent housing demand. Hayward encourages transit-oriented, higher-density development in its downtown corridor. Buyers should investigate potential city or county incentives and housing programs (buyer to verify). A rare infill opportunity in a supply-constrained, transit-oriented location—ideal for maximizing long-term value & return.
MLS #
BE41124936
MLS Source
Bay East
Days on Site
18
Development Status
Site Plan
Lot Description
Corners Marked - No, Grade - Level, Regular
Sewer
Public Sewer
Zoning
HDR
Listing Agent
Michael Heavin
Pacific Land Brokers
License #: 00587874
Phone: (510) 538-7500
Co-Listing Agent
John L Morra
License #: 01884598
Phone: (510) 200-4449
22836 Watkins St is in Hayward, CA 94541. This Land is currently priced at $1,200,000. This address can also be written as 22836 Watkins St, Hayward, CA 94541.
©2026 Bay East. All rights reserved. All data, including all measurements and calculations of area, is obtained from various sources and has not been, and will not be, verified by broker or MLS. All information should be independently reviewed and verified for accuracy. Properties may or may not be listed by the office/agent presenting the information. Information provided is for personal, non-commercial use by the viewer and may not be redistributed without explicit authorization from Bay East.
Presently MLSListings.com displays Active, Contingent, Pending, and Recently Sold listings. Recently Sold listings are properties which were sold within the last three years. After that period listings are no longer displayed in MLSListings.com. Pending listings are properties under contract and no longer available for sale. Contingent listings are properties where there is an accepted offer, and seller may be seeking back-up offers. Active listings are available for sale.
This listing information is up-to-date as of March 04, 2026. For the most current information, please contact Michael Heavin, (510) 538-7500