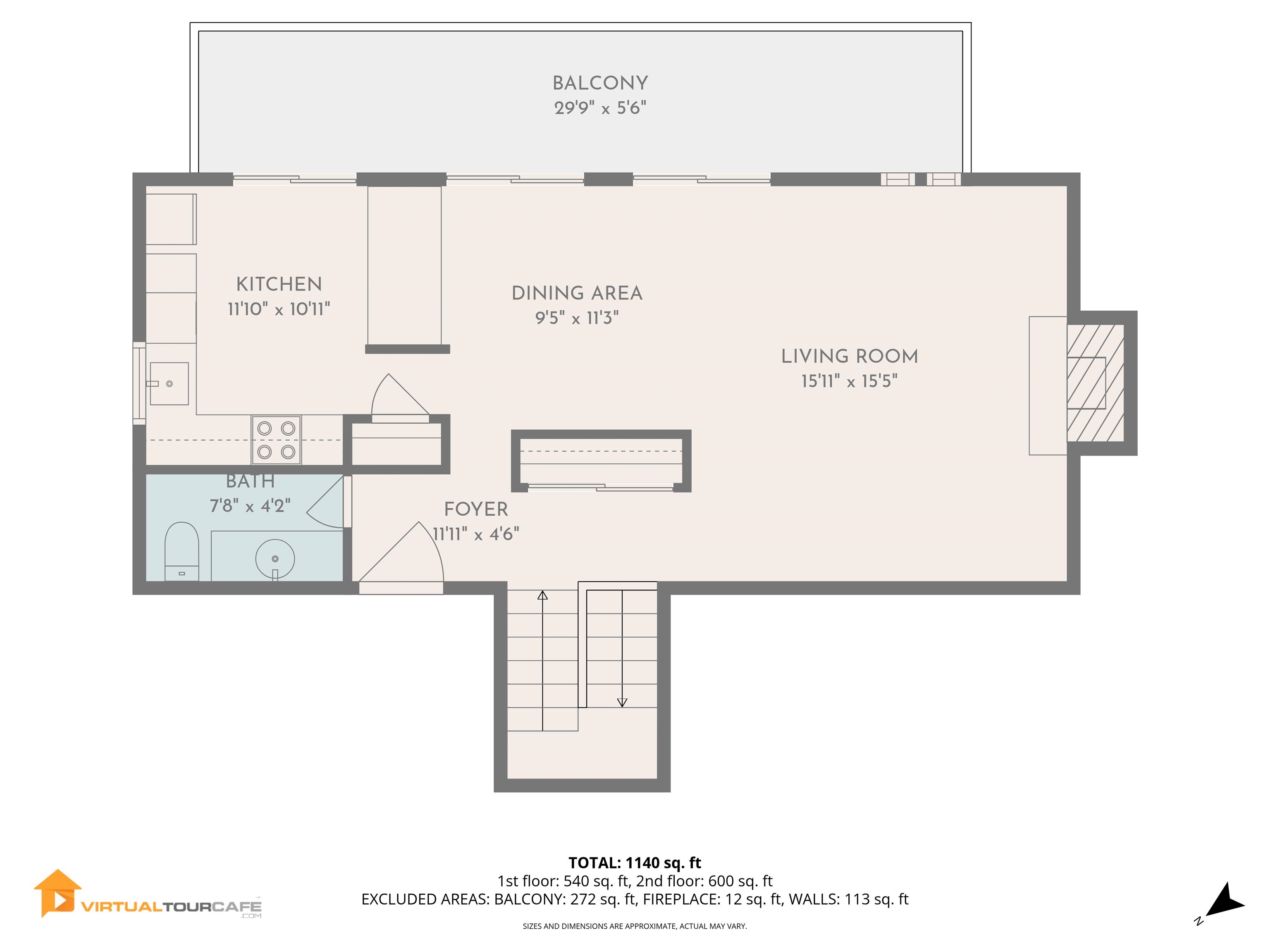
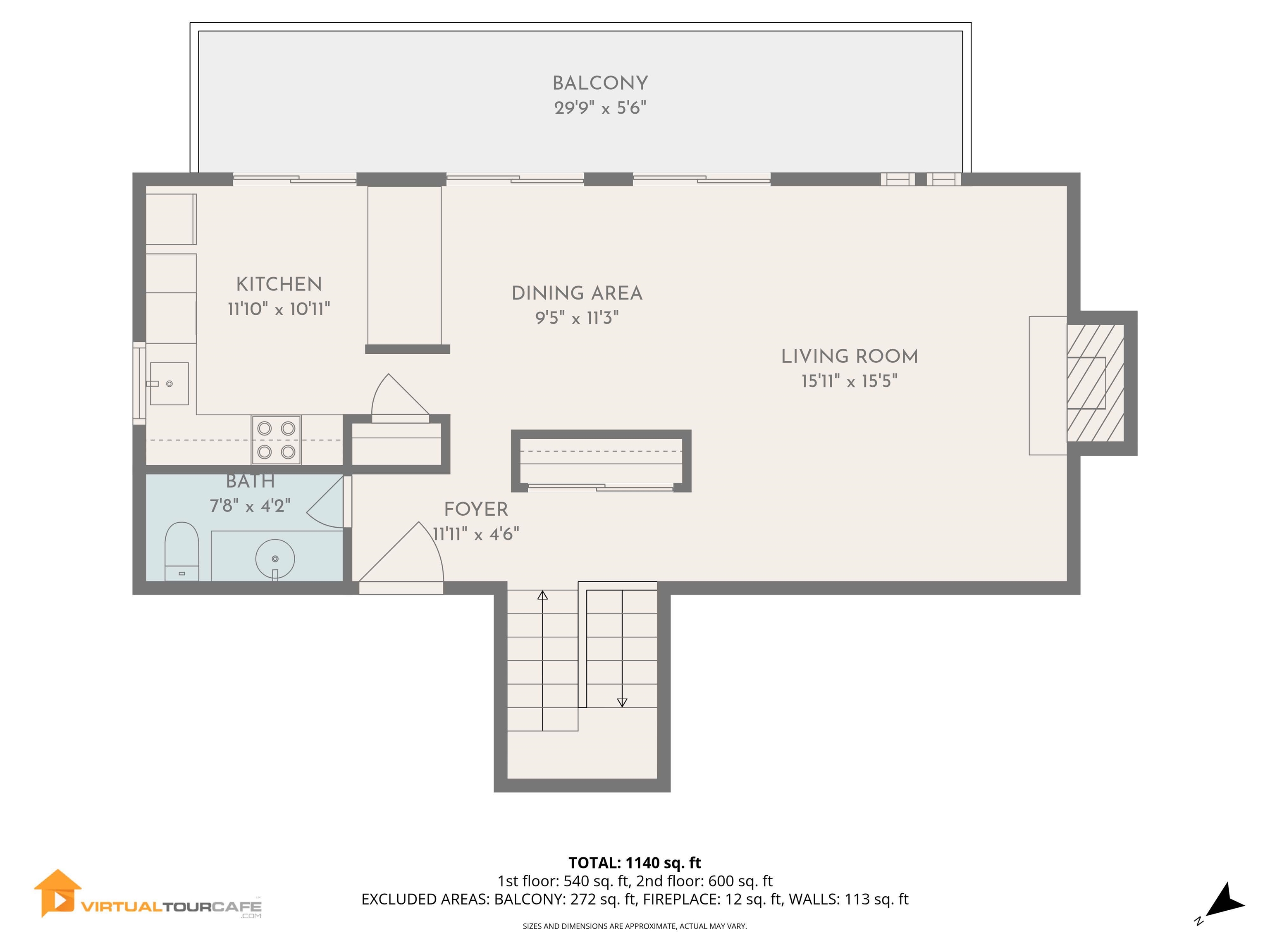
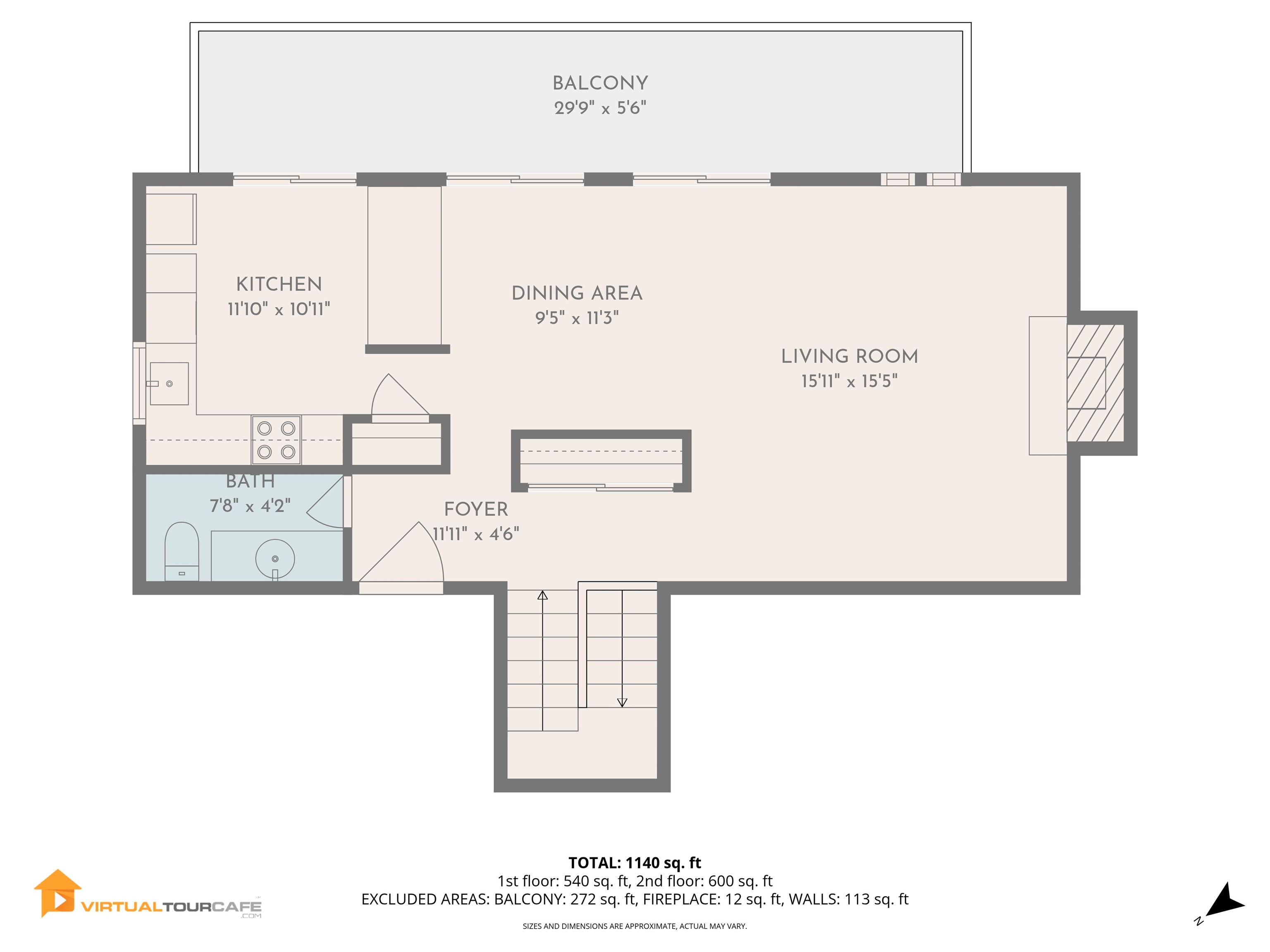
Excellent value home in the Piedmont Pines District of the Oakland hills Discover this traditional Piedmont Pines home located in the prestigious Oakland Hills. Built in 1974, this comfortable two-story two bedroom/1.5 bath is listed at 1,164 sqft on a 14,268 sqft. lot. The exterior and interior are reminiscent of the 1970's Tahoe architectural influence throughout Montclair. There are two rear decks providing a tranquil setting overlooking tall redwoods and pines. The home offers charm of an older home and the layout of the bedrooms have stunning views. Entry is into the main living area of the living room, dining area, kitchen and half bath. The decks and new patio doors bring in a huge amount of natural light. The lower level has amble closet space, laundry, full bath, and two large bedrooms. There are double pane windows and patio doors throughout. Another plus is the foundation was retrofitted in 2004 and detached 2 car garage and 2 car deck garage too.
MLS #
BE41119976
MLS Source
Bay East
Days on Site
5
Kitchen
220 Volt Outlet, Breakfast Bar, Countertop - Laminate
Appliances
Dishwasher, Garbage Disposal, Oven Range, Refrigerator, Dryer, Washer
Dining Room
Dining Area
Fireplace
Family Room, Gas Starter
Flooring
Carpet - Wall to Wall, Linoleum, Tile
Laundry
220 Volt Outlet, In Closet
Cooling
None
Heating
Forced Air
Roof
Composition
Pool
None, Pool - No
Style
Contemporary
Garage/Parking
Detached, Garage, Gate/Door Opener, Garage: 2 Car(s)
Sewer
Public Sewer
Water
Public
5982 Ascot Dr is a Single Family Residence in Oakland, CA 94611. This 1,164 square foot property sits on a 0.33 Acres Lot and features 2 bedrooms & 1 full and 1 partial bathrooms. It is currently priced at $1,024,000 and was built in 1973. This address can also be written as 5982 Ascot Dr, Oakland, CA 94611.
©2026 Bay East. All rights reserved. All data, including all measurements and calculations of area, is obtained from various sources and has not been, and will not be, verified by broker or MLS. All information should be independently reviewed and verified for accuracy. Properties may or may not be listed by the office/agent presenting the information. Information provided is for personal, non-commercial use by the viewer and may not be redistributed without explicit authorization from Bay East.
Presently MLSListings.com displays Active, Contingent, Pending, and Recently Sold listings. Recently Sold listings are properties which were sold within the last three years. After that period listings are no longer displayed in MLSListings.com. Pending listings are properties under contract and no longer available for sale. Contingent listings are properties where there is an accepted offer, and seller may be seeking back-up offers. Active listings are available for sale.
This listing information is up-to-date as of January 05, 2026. For the most current information, please contact Lynne Ancien-Ronen, (925) 786-3765