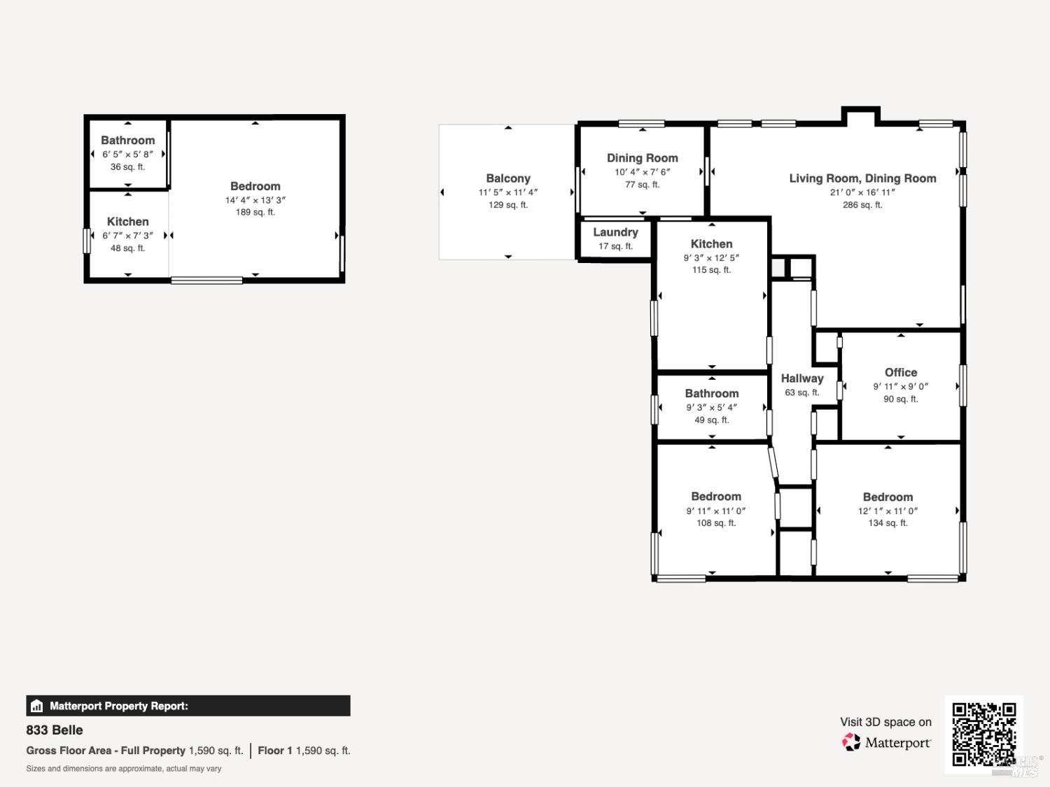
Welcome to 833 Belle Avenue, a beautifully renovated single-level Craftsman home in the Dominican area of San Rafael + legally permitted detached studio with full kitchen, laundry, AC & private outdoor space. This rare offering includes a three-bedroom in the main home and a fully permitted detached studio, making it an ideal opportunity for homeowners and investors alike. Turnkey & Income-Generating: Turnkey and delivered vacant. Detached legal studio offers flexibility for rental income, a home office, or a guest retreat. Close proximity to Dominic University presents great long term tenant poolas well. Stylish Interiors: Open floor plan, granite countertops, softwood flooring, and a cozy fireplace create a warm and inviting atmosphere. Modern Comforts: Solar, Central heating & air conditioning (studio only), in-home laundry for both units), hardwood floors throughout, and an updated kitchen with a gas range, oven, dishwasher, and refrigerator. Outdoor Oasis: An expansive patio, hot tub, and large storage unit provide a perfect setting for relaxation and entertainment. Prime Location: Nestled in the sought-after Dominican neighborhood, enjoy easy access to top-rated schools, parks, dining, and Highway 101.
MLS #
BA326011264
MLS Source
Bay Area Real Estate Information Services, Inc.
Days on Site
1
Bedrooms
Primary Suite/Retreat
Kitchen
Countertop - Granite
Appliances
Dishwasher, Garbage Disposal, Hood Over Range, Oven - Gas, Dryer, Washer
Fireplace
Family Room
Flooring
Tile, Wood
Laundry
220 Volt Outlet, In Closet
Cooling
Central Forced Air
Heating
Central Forced Air, Solar
Roof
Composition
Foundation
Concrete Perimeter
Pool
Pool - No, Spa/Hot Tub
Style
Bungalow
Garage/Parking
No Garage, Garage: 0 Car(s)
Sewer
Public Sewer
Water
Public
| # Buildings | # Leased Units | # Total Units |
|---|---|---|
| 2 | – | – |
833 Belle Ave is a Residential in San Rafael, CA 94901. This 1,192 square foot property sits on a 5,828 Sq Ft Lot and features 3 bedrooms & 1 full bathrooms. It is currently priced at $1,150,000 and was built in 1942. This address can also be written as 833 Belle Ave, San Rafael, CA 94901.
©2026 Bay Area Real Estate Information Services, Inc. All rights reserved. All data, including all measurements and calculations of area, is obtained from various sources and has not been, and will not be, verified by broker or MLS. All information should be independently reviewed and verified for accuracy. Properties may or may not be listed by the office/agent presenting the information. Information provided is for personal, non-commercial use by the viewer and may not be redistributed without explicit authorization from Bay Area Real Estate Information Services, Inc.
Presently MLSListings.com displays Active, Contingent, Pending, and Recently Sold listings. Recently Sold listings are properties which were sold within the last three years. After that period listings are no longer displayed in MLSListings.com. Pending listings are properties under contract and no longer available for sale. Contingent listings are properties where there is an accepted offer, and seller may be seeking back-up offers. Active listings are available for sale.
This listing information is up-to-date as of March 11, 2026. For the most current information, please contact Steven Crane, (415) 847-1224